6 Pickering Street, Leeds, West Yorkshire, LS12 2QG

- PROPERTY TYPE
Block of Apartments
- SIZE
Ask agent
- TENUREDescribes how you own a property. There are different types of tenure - freehold, leasehold, and commonhold.Read more about tenure in our glossary page.
Ask agent
Key features
- TO BE SOLD AT AUCTION March/ April 2026.
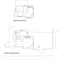
- Detailed Planning Permission for nine apartments, car park and landscaping, with extension and alterations
- Planning application Ref: 23/05696/FU
- Vacant possession.
- Enquiries, please speak with Rob Jenkins .
Description
Prime residential development site. Full planning permission granted. Comprising nine apartments, car park, and landscaping, with extension and alterations. Vacant possession
ACCOMMODATION:
Prime residential development site. Full planning permission granted. Comprising nine apartments, car park, and landscaping, with extension and alterations. Vacant possession
Planning permission is in place for nine apartments, car park and landscaping, with extension and alterations.
Planning application Ref: 23/05696/FU
Further details and associated planning documents can be accessed via the Leeds Council's planning portal and the auction legal pack. Ref: 23/05696/FU
LOCATION:
Leeds is a city in West Yorkshire, England. It is the largest settlement in Yorkshire and, which is the second most populous district in the United Kingdom. It is built around the River Aire and is in the eastern foothills of the Pennies.
TENURE:
Freehold
For enquiries, please speak with Rob Jenkins .
AUCTION DATE:
Connect Realtime® Bidding commences at 12pm with closing bids at 1pm, Auction Date: To Be Confirmed.
The Lot is for sale via Traditional Auction. This is a timed auction, which requires both parties to complete the transaction within the completion date as per the auction legal pack. The buyer, is required to register, with Connect UK Land Auctions, in order to participate and will be required to go through, identification verification process. The auction Legal Pack, is available by request. You are required to complete your own due diligence prior to bidding. The Lot is subject to an undisclosed Reserve Price. The Reserve Price and Starting Bid being subject to change.
UNCONDITIONAL LOT:
Auction Fees apply, upon the fall of the gavel, as per the auction legal pack. The highest bidder, will also pay a deposit of 5% (minimum £5,000) of the hammer price and contracts are exchanged. The purchaser is legally bound to buy and the vendor is legally bound to sell the Property/Lot. The auction conditions require a full legal completion 90 days following the day of auction (unless otherwise requested, delayed completion available).
DISCLAIMER:
*Connect UK Auctions does not warrant or accept any responsibility for the accuracy or completeness of the property descriptions or related information provided here and they do not constitute property particulars. All displayed property boundaries use data provided by Land Registry and is assumed to be correct and updated regularly. However for the avoidance of doubt all displayed property boundaries are indicative and for marketing purposes only.
- COUNCIL TAXA payment made to your local authority in order to pay for local services like schools, libraries, and refuse collection. The amount you pay depends on the value of the property.Read more about council Tax in our glossary page.
- Ask agent
- PARKINGDetails of how and where vehicles can be parked, and any associated costs.Read more about parking in our glossary page.
- Yes
- GARDENA property has access to an outdoor space, which could be private or shared.
- Ask agent
- ACCESSIBILITYHow a property has been adapted to meet the needs of vulnerable or disabled individuals.Read more about accessibility in our glossary page.
- Ask agent
Energy performance certificate - ask agent
6 Pickering Street, Leeds, West Yorkshire, LS12 2QG
Add an important place to see how long it'd take to get there from our property listings.
__mins driving to your place
Get an instant, personalised result:
- Show sellers you’re serious
- Secure viewings faster with agents
- No impact on your credit score
Affordability
Notes
Staying secure when looking for property
Ensure you're up to date with our latest advice on how to avoid fraud or scams when looking for property online.
Visit our security centre to find out moreDisclaimer - Property reference BZR-73157780. The information displayed about this property comprises a property advertisement. Rightmove.co.uk makes no warranty as to the accuracy or completeness of the advertisement or any linked or associated information, and Rightmove has no control over the content. This property advertisement does not constitute property particulars. The information is provided and maintained by Connect-UK, Head Office - Crawley. Please contact the selling agent or developer directly to obtain any information which may be available under the terms of The Energy Performance of Buildings (Certificates and Inspections) (England and Wales) Regulations 2007 or the Home Report if in relation to a residential property in Scotland.
Auction Fees: The purchase of this property may include associated fees not listed here, as it is to be sold via auction. To find out more about the fees associated with this property please call Connect-UK, Head Office - Crawley on 01202 145416.
*Guide Price: An indication of a seller's minimum expectation at auction and given as a Guide Price or a range of Guide Prices. This is not necessarily the figure a property will sell for and is subject to change prior to the auction.
Reserve Price: Each auction property will be subject to a Reserve Price below which the property cannot be sold at auction. Normally the Reserve Price will be set within the range of Guide Prices or no more than 10% above a single Guide Price.
*This is the average speed from the provider with the fastest broadband package available at this postcode. The average speed displayed is based on the download speeds of at least 50% of customers at peak time (8pm to 10pm). Fibre/cable services at the postcode are subject to availability and may differ between properties within a postcode. Speeds can be affected by a range of technical and environmental factors. The speed at the property may be lower than that listed above. You can check the estimated speed and confirm availability to a property prior to purchasing on the broadband provider's website. Providers may increase charges. The information is provided and maintained by Decision Technologies Limited. **This is indicative only and based on a 2-person household with multiple devices and simultaneous usage. Broadband performance is affected by multiple factors including number of occupants and devices, simultaneous usage, router range etc. For more information speak to your broadband provider.
Map data ©OpenStreetMap contributors.





