
The Grange, London SE25

- PROPERTY TYPE
Flat
- BEDROOMS
3
- BATHROOMS
1
- SIZE
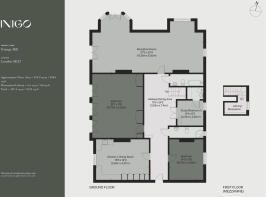
2,125 sq ft
197 sq m
Description
Setting the Scene
Built in the early 19th century, The Grange is thought to be one of the oldest surviving mansions in the area. Its symmetrical three-storey design with lower wings is characteristic of the late Georgian style, although, unusually, its main entrance (today the entrance to the apartment) was positioned on the side of the hill to maximise the building’s views to the west.
In 1853, the house was occupied by the Wiggs, a merchant trading family. It was later bought by Josiah Ritchie, managing director of the Royal Aquarium. His son, Major Ritchie, won three Olympic medals for tennis in the 1908 London games. It is thought that he would have trained in the grounds of The Grange, which previously extended further up the hill. The building was sensitively converted into apartments in 1919 and retains many of its original features, including grand fireplaces and curved window frames.
The Grand Tour
A smart, black-painted front door flanked by white stuccoed columns forms the private entrance to the apartment. Inside, a vast entrance hall with soaring ceilings traced by ornate cornicing gives the first indication of this home’s grand proportions.
At one end lies a voluminous double reception room washed in 'Hopper' by Little Greene. A beautiful bay window set into curved frames fills the space with light, while tall windows to one side capture leafy garden views. Each sitting area has an original marble fireplace and reinstated ceiling roses.
The large kitchen has dark-stained floorboards and floor-to-ceiling French doors that open to a Juliet balcony. Walls and cabinetry have been painted in 'Obsidian Green' by Little Greene, and there is a forest-green Rangemaster oven.
An original staircase with a curved handrail and delicate balusters ascends to a mezzanine, which would have once led to the upper floors of the house. The space is currently used as a peaceful library.
The expansive principal bedroom is lined with a series of French doors on one side. Fitted storage provides ample room for clothes. Walls here are washed in 'Grosvenor Square' from Mylands, and there is a cast-iron fireplace on one side.
A second double bedroom has a tall casement window with views toward the garden. There is also a bathroom, a shower room, and a neat WC from the study/third bedroom, which is tucked behind blue-painted double doors underneath the staircase.
The Great Outdoors
A peaceful garden is shared with one other apartment. It has a delightful atmosphere, with a large pond, established plants including roses and lavender, and a playhouse.
An off-street parking space has an EV charging point. There is also use of a shared garage.
Out and About
The Grange occupies an elevated position in South Norwood, with views across the city. The park and woodlands of Grangewood Park are a few minutes’ walk from the apartment. South Norwood Lake and Grounds is only slightly further afield.
The Crystal Palace triangle is around a 20-minute walk – or a seven-minute cycle – away, known for its award-winning restaurants and bars, thriving independent boutiques, and an Everyman cinema. Crystal Palace Park is home to an award-winning farmers’ market, open every Sunday with a variety of stalls selling seasonal produce and tasty street food.
There are plenty of state and private, primary and secondary schools within easy reach of the house. Norwood Junction is a 25-minute walk (or an eight-minute cycle) away, with Windrush services to Dalston and Highbury and Islington via Shoreditch High Street and Whitechapel; it also runs direct trains to London Bridge (with a journey time of under 15 minutes) and to Victoria.
Tenure: Share of Freehold / Lease length: Approx. 970 years remaining / Service Charge: Approx. £2,040 per year (includes buildings insurance, sinking fund, and maintenance of the building) / Ground Rent: N/A / Council Tax Band: D
- COUNCIL TAXA payment made to your local authority in order to pay for local services like schools, libraries, and refuse collection. The amount you pay depends on the value of the property.Read more about council Tax in our glossary page.
- Band: D
- PARKINGDetails of how and where vehicles can be parked, and any associated costs.Read more about parking in our glossary page.
- Yes
- GARDENA property has access to an outdoor space, which could be private or shared.
- Yes
- ACCESSIBILITYHow a property has been adapted to meet the needs of vulnerable or disabled individuals.Read more about accessibility in our glossary page.
- Ask agent
Energy performance certificate - ask agent
The Grange, London SE25
Add an important place to see how long it'd take to get there from our property listings.
__mins driving to your place
Get an instant, personalised result:
- Show sellers you’re serious
- Secure viewings faster with agents
- No impact on your credit score



Affordability
Notes
Staying secure when looking for property
Ensure you're up to date with our latest advice on how to avoid fraud or scams when looking for property online.
Visit our security centre to find out moreDisclaimer - Property reference TMH82808. The information displayed about this property comprises a property advertisement. Rightmove.co.uk makes no warranty as to the accuracy or completeness of the advertisement or any linked or associated information, and Rightmove has no control over the content. This property advertisement does not constitute property particulars. The information is provided and maintained by The Modern House, London. Please contact the selling agent or developer directly to obtain any information which may be available under the terms of The Energy Performance of Buildings (Certificates and Inspections) (England and Wales) Regulations 2007 or the Home Report if in relation to a residential property in Scotland.
*This is the average speed from the provider with the fastest broadband package available at this postcode. The average speed displayed is based on the download speeds of at least 50% of customers at peak time (8pm to 10pm). Fibre/cable services at the postcode are subject to availability and may differ between properties within a postcode. Speeds can be affected by a range of technical and environmental factors. The speed at the property may be lower than that listed above. You can check the estimated speed and confirm availability to a property prior to purchasing on the broadband provider's website. Providers may increase charges. The information is provided and maintained by Decision Technologies Limited. **This is indicative only and based on a 2-person household with multiple devices and simultaneous usage. Broadband performance is affected by multiple factors including number of occupants and devices, simultaneous usage, router range etc. For more information speak to your broadband provider.
Map data ©OpenStreetMap contributors.





