
Common Road, Gorleston

- PROPERTY TYPE
Terraced
- BEDROOMS
2
- BATHROOMS
1
- SIZE
Ask agent
- TENUREDescribes how you own a property. There are different types of tenure - freehold, leasehold, and commonhold.Read more about tenure in our glossary page.
Freehold
Key features
- CHAIN FREE
- 2 Double Beds Off Landing
- Modern throughout
- Enclosed rear garden
- Gas Central Heating
- Upvc Double Glazing
- Popular Gorleston location
Description
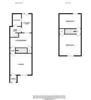
The accommodation begins with a welcoming lounge, leading through to a kitchen/dining room ideal for everyday living and entertaining. A practical lean-to provides additional space and features doors opening directly onto the rear garden, creating a natural flow between indoor and outdoor living. The ground floor is completed by a family bathroom.
Upstairs, the property offers two generous double bedrooms, both accessed from the landing, providing comfortable and versatile living space.
Externally, the home benefits from an enclosed rear garden, perfect for relaxing, gardening, or outdoor dining. Further advantages include UPVC double glazing and gas central heating, ensuring comfort and efficiency all year round.
With its desirable location, practical layout, and chain-free status, this property is not to be missed. Arrange your viewing today to fully appreciate everything this Gorleston home has to offer.
Outside Front
Small front garden enclosed with brick wall, metal gate giving access, paving leading up to
Porch
Upvc double glazed door to front giving access, further glazed door to
Lounge
11'6" x 12'2" (3.53m x 3.73m)
Upvc double glazed window to front aspect, wood effect flooring, TV point, ceiling light, ceiling coving, artex ceiling, radiator, door to
Lobby
Stairs to first floor, further door to
Kitchen / Diner
10'7" x 12'4" (3.25m x 3.76m)
Range of wall and base storage units and drawers, worktops over, double glazed window to rear aspect, gas hob and oven, stainless steel sink and drainer with mixer tap, wood laminate flooring, under stairs storage cupboard, radiator, coved ceiling, door to
Rear Lobby Area
Storage cupboard, doors off to
Utility/Boot Room
12'4" x 6'3" (3.76m x 1.93m)
Brick boot room with wood effect flooring, storage cupboards, boiler, upvc door to rear garden.
Bathroom
Panelled bath with wall mounted electric shower, shower attachment and shower screen, extractor fan, radiator, low level w.c., pedestal wash hand basin with mixer taps, part tiled walls, tiled flooring, opaque double glazed window to side aspect.
First Floor Landing
Doors off to
Bedroom One
11'8" x 12'2" (3.56m x 3.71m)
Fitted carpet, built-in wardrobes, double glazed window to front aspect, radiator, coved ceiling.
Bedroom Two
10'7" x 12'2" (3.25m x 3.73m)
Fitted carpet, double glazed window to rear aspect, radiator, coved ceiling.
Outside Rear
Low maintenance rear garden, paved area, Astroturf area, raised flower and shrub border, enclosed with timber fencing.
Disclaimer
Howards Estate Agents also offer a professional, ARLA accredited Lettings and Management Service. If you are considering renting your property in order to purchase, are looking at buy to let or would like a free review of your current portfolio then please call the Lettings Branch Manager on the number shown above.
Howards Estate Agents is the seller's agent for this property. Your conveyancer is legally responsible for ensuring any purchase agreement fully protects your position. We make detailed enquiries of the seller to ensure the information provided is as accurate as possible. Please inform us if you become aware of any information being inaccurate.
Brochures
Material InformationBrochure- COUNCIL TAXA payment made to your local authority in order to pay for local services like schools, libraries, and refuse collection. The amount you pay depends on the value of the property.Read more about council Tax in our glossary page.
- Band: A
- PARKINGDetails of how and where vehicles can be parked, and any associated costs.Read more about parking in our glossary page.
- Ask agent
- GARDENA property has access to an outdoor space, which could be private or shared.
- Yes
- ACCESSIBILITYHow a property has been adapted to meet the needs of vulnerable or disabled individuals.Read more about accessibility in our glossary page.
- Ask agent
Common Road, Gorleston
Add an important place to see how long it'd take to get there from our property listings.
__mins driving to your place
Get an instant, personalised result:
- Show sellers you’re serious
- Secure viewings faster with agents
- No impact on your credit score
Affordability
Notes
Staying secure when looking for property
Ensure you're up to date with our latest advice on how to avoid fraud or scams when looking for property online.
Visit our security centre to find out moreDisclaimer - Property reference 0382_HOW038206774. The information displayed about this property comprises a property advertisement. Rightmove.co.uk makes no warranty as to the accuracy or completeness of the advertisement or any linked or associated information, and Rightmove has no control over the content. This property advertisement does not constitute property particulars. The information is provided and maintained by Howards, Gorleston. Please contact the selling agent or developer directly to obtain any information which may be available under the terms of The Energy Performance of Buildings (Certificates and Inspections) (England and Wales) Regulations 2007 or the Home Report if in relation to a residential property in Scotland.
*This is the average speed from the provider with the fastest broadband package available at this postcode. The average speed displayed is based on the download speeds of at least 50% of customers at peak time (8pm to 10pm). Fibre/cable services at the postcode are subject to availability and may differ between properties within a postcode. Speeds can be affected by a range of technical and environmental factors. The speed at the property may be lower than that listed above. You can check the estimated speed and confirm availability to a property prior to purchasing on the broadband provider's website. Providers may increase charges. The information is provided and maintained by Decision Technologies Limited. **This is indicative only and based on a 2-person household with multiple devices and simultaneous usage. Broadband performance is affected by multiple factors including number of occupants and devices, simultaneous usage, router range etc. For more information speak to your broadband provider.
Map data ©OpenStreetMap contributors.





