
Buckingham Road, Hockley, SS5

- PROPERTY TYPE
Detached
- BEDROOMS
5
- BATHROOMS
3
- SIZE
Ask agent
- TENUREDescribes how you own a property. There are different types of tenure - freehold, leasehold, and commonhold.Read more about tenure in our glossary page.
Freehold
Key features
- Detached family home in a sought-after Hockley location
- Stunning interior with spacious and versatile accommodation throughout
- Desirable open-plan kitchen/breakfast room with utility room to the side
- Multiple reception rooms ideal for family living, entertaining or working from home
- Five great sized bedrooms with en-suites to bedrooms one and four
- Professionally landscaped west-facing rear garden with large outbuilding providing additional living space
- This property measures approximately 1,826 square feet.
- Excellent school catchment location with Hockley Primary School and Greensward Academy nearby
Description
Tenure: Freehold
Council Tax Band: E
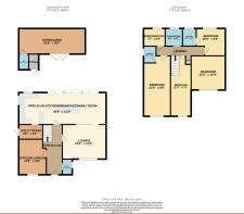
Room Measurements
Ground floor
Open plan kitchen / breakfast / family room — 30'8" x 11'3"
Utility room — 8'5" x 5'2"
Office / playroom — 12'6" x 9'8"
Lounge — 15'5" x 12'2"
Outbuilding — 23'5" x 9'0"
First floor
Bedroom / office — 7'7" x 6'3"
Bathroom — 6'3" x 6'1"
Bedroom — 10'3" x 9'8"
Bedroom — 12'0" x 12'0"
Bedroom — 21'3" x 9'6"
Bedroom — 21'3" x 7'3"
Ground Floor
The accommodation begins with a welcoming entrance hall which immediately sets the tone for the rest of the home, offering a bright and elegant first impression. To the front, there is a spacious lounge, ideal for relaxing at the end of the day, whilst an additional reception room provides flexibility to be used as a playroom, dining room, snug or home office depending on your needs. A ground floor cloakroom adds practicality for busy family life.
The real heart of the home is the impressive kitchen/breakfast room. This is a superb open-plan space with a large central island and breakfast bar, sleek fitted cabinetry, quality integrated appliances and an excellent flow through to the rear, making it ideal for both day-to-day family living and entertaining guests. Bi-folding doors draw in plenty of natural light and create a seamless connection to the garden, whilst the separate utility room to the side keeps the main living area clean and uncluttered.
First Floor
Upstairs, the property continues to deliver generous accommodation with five well-sized bedrooms. The principal bedroom benefits from its own en-suite, creating a comfortable main suite, whilst bedroom four also enjoys en-suite facilities, making it perfect for guests or older children. The remaining bedrooms are served by a contemporary family bathroom, all presented in keeping with the high standard seen throughout the rest of the house.
Exterior
Externally, this home is equally impressive. To the front, a large block paved driveway provides ample off-street parking for several vehicles, giving the property a strong sense of presence as you arrive. To the rear, the professionally landscaped west-facing garden has been thoughtfully designed to offer a low-maintenance yet highly enjoyable outside space, with paved seating areas and artificial lawn combining practicality with style.
A standout feature is the substantial outbuilding, which offers fantastic versatility and could work brilliantly as an external lounge, games room, home gym, studio or office. With its own WC and additional storage, it adds genuine lifestyle value and enhances the overall appeal of the home for buyers looking for more than just the main house itself.
Location
Buckingham Road enjoys a highly desirable position within Hockley, perfectly suited to buyers who value both convenience and lifestyle. Just a short walk from Hockley Station, the property is ideal for commuters needing direct access into London Liverpool Street, whilst Hockley High Street is moments away and offers a charming mix of independent shops, local cafés, restaurants and useful everyday amenities. The area has a warm, community-led feel that continues to attract families and professionals alike, with everything needed for day-to-day living close at hand. For those who appreciate green open space, Hockley Woods is nearby and provides a beautiful natural backdrop for morning walks, weekend adventures and time spent outdoors. Combined with its popular residential setting and excellent local amenities, this location offers the very best of connected family living.
School Catchments
This home is particularly well suited to families, with excellent schooling options nearby. Hockley Primary School is located just moments up the road, offering real day-to-day convenience, while Greensward Academy is less than a mile away, ideal for those with children of secondary school age.
- COUNCIL TAXA payment made to your local authority in order to pay for local services like schools, libraries, and refuse collection. The amount you pay depends on the value of the property.Read more about council Tax in our glossary page.
- Ask agent
- PARKINGDetails of how and where vehicles can be parked, and any associated costs.Read more about parking in our glossary page.
- Yes
- GARDENA property has access to an outdoor space, which could be private or shared.
- Yes
- ACCESSIBILITYHow a property has been adapted to meet the needs of vulnerable or disabled individuals.Read more about accessibility in our glossary page.
- Ask agent
Energy performance certificate - ask agent
Buckingham Road, Hockley, SS5
Add an important place to see how long it'd take to get there from our property listings.
__mins driving to your place
Get an instant, personalised result:
- Show sellers you’re serious
- Secure viewings faster with agents
- No impact on your credit score
Affordability
Notes
Staying secure when looking for property
Ensure you're up to date with our latest advice on how to avoid fraud or scams when looking for property online.
Visit our security centre to find out moreDisclaimer - Property reference RX756001. The information displayed about this property comprises a property advertisement. Rightmove.co.uk makes no warranty as to the accuracy or completeness of the advertisement or any linked or associated information, and Rightmove has no control over the content. This property advertisement does not constitute property particulars. The information is provided and maintained by Gilbert & Rose, Leigh-on-sea. Please contact the selling agent or developer directly to obtain any information which may be available under the terms of The Energy Performance of Buildings (Certificates and Inspections) (England and Wales) Regulations 2007 or the Home Report if in relation to a residential property in Scotland.
*This is the average speed from the provider with the fastest broadband package available at this postcode. The average speed displayed is based on the download speeds of at least 50% of customers at peak time (8pm to 10pm). Fibre/cable services at the postcode are subject to availability and may differ between properties within a postcode. Speeds can be affected by a range of technical and environmental factors. The speed at the property may be lower than that listed above. You can check the estimated speed and confirm availability to a property prior to purchasing on the broadband provider's website. Providers may increase charges. The information is provided and maintained by Decision Technologies Limited. **This is indicative only and based on a 2-person household with multiple devices and simultaneous usage. Broadband performance is affected by multiple factors including number of occupants and devices, simultaneous usage, router range etc. For more information speak to your broadband provider.
Map data ©OpenStreetMap contributors.






