
Development Opportunity at West End Farm, Marston Magna, BA22 8BN
- PROPERTY TYPE
Land
- SIZE
Ask agent
Key features
- Agent Code: 1798 or 5500
- Application Number: 25/01428/FUL
- Development plot extending to approx. 2.8 acres
- Full planning permission for barn conversion
- Five-bedroom detached home design
- Stunning far-reaching countryside views
- Impressive open-plan kitchen, dining & living space
- Indoor swimming pool complex
- Detached three bay garage/store with ample parking
- Sought-after semi-rural Somerset location
Description
Situated in a desirable semi-rural position, the plot enjoys far-reaching views over adjoining farmland and the wider Somerset landscape, offering a peaceful and picturesque setting for a truly individual home.
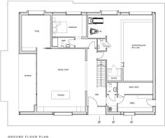
Full planning consent (25/01428/FUL) has been granted for the creation of a substantial five-bedroom detached residence, thoughtfully designed to combine the character of a traditional barn with striking contemporary open-plan living. The proposed accommodation centres around an impressive open-plan kitchen, dining and living space, ideal for modern lifestyles and entertaining, with large openings designed to maximise natural light and frame the surrounding countryside.
A particular feature of the design is the inclusion of an indoor swimming pool complex, creating a luxurious leisure space for year-round use. In addition, the scheme includes a detached triple bay garage/store.
Externally, the plans incorporate a terrace area positioned to take full advantage of the outlook, ideal for outdoor dining and relaxation within the generous grounds. Extending to approximately 2.8 acres, the plot offers excellent scope for landscaping and outdoor living, making this a rare opportunity for self-builders or developers to create a bespoke home in an attractive rural setting.
Discussions with the local planning officer indicate there is potential flexibility for amendments, subject to the necessary consents. This offers purchasers an excellent opportunity to adapt or redesign the scheme to suit their own preferences with the existing permission providing a strong and valuable fallback.
Services: The site is not connected to mains services but are near by and quotes for water and electricity have been obtained - these are available upon request. Private drainage is to be installed via a water treatment plant located within the plot and this will be the responsibility of the purchaser/developer. Fibre Broadband is connected to the neighbouring property and this runs within the boundary of the plot.
Conditions: The land is sold subject to and with the benefit of all existing rights of way, whether public or private, including any wayleaves, easements, covenants, restrictions and obligations. Prospective purchasers are advised to refer to the official plans for full details. Please also note that neighbouring properties will benefit from an initial right of way and access over the private driveway. In addition, a public footpath runs along the eastern boundary and continues up the driveway.
Agents Note: Please be aware that the CGI images shown are representations and are for illustrative purposes only. They provide an idea of the potential finished design but final specifications, materials, and finishes may vary.
Development Opportunity at West End Farm, Marston Magna, BA22 8BN
NEAREST STATIONS
Distances are straight line measurements from the centre of the postcode- Yeovil Pen Mill Station4.1 miles
- Sherborne Station5.1 miles
Notes
Disclaimer - Property reference TND-38071347. The information displayed about this property comprises a property advertisement. Rightmove.co.uk makes no warranty as to the accuracy or completeness of the advertisement or any linked or associated information, and Rightmove has no control over the content. This property advertisement does not constitute property particulars. The information is provided and maintained by Nest Associates Ltd, South West. Please contact the selling agent or developer directly to obtain any information which may be available under the terms of The Energy Performance of Buildings (Certificates and Inspections) (England and Wales) Regulations 2007 or the Home Report if in relation to a residential property in Scotland.
Map data ©OpenStreetMap contributors.








