
Patterson Close, Great Yarmouth

- PROPERTY TYPE
Terraced
- BEDROOMS
3
- SIZE
Ask agent
- TENUREDescribes how you own a property. There are different types of tenure - freehold, leasehold, and commonhold.Read more about tenure in our glossary page.
Freehold
Key features
- 3 bedroom terrace house
- Close to Great Yarmouth town centre
- Modern kitchen
- Gas central heating
- Shower room
- Ideal first time buyer/investment property
- Communal parking
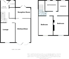
Description
Kitchen
20' 1'' x 10' 10'' (6.12m x 3.30m)
Entering through a door to the front and with UPVC double glazed windows either side to the entrance allowing natural light to flood the room, tiled flooring, a range of matching and wall and base unit with roll top work surfaces over, tiled splashbacks, 1.5 stainless steel sink and drainer unit with mixer tap, integrated oven with five ring gas hob and extractor over, space and plumbing for a washing machine and standard fridge-freezer, LED inset downlighting, power points and space for free standing furniture.
Lounge
11' 11'' x 9' 1'' (3.63m x 2.77m)
Modern lounge fitted with carpet flooring, double glazed window to the front aspect, radiator, power points, television point and space for free standing furniture.
Rear Hallway
13' 5'' x 9' 6'' (4.09m x 2.89m)
UPVC door with privacy glass leading into the rear of the property with a double glazed privacy window to the side, tiled flooring throughout, door leading into a cloakroom, storage cupboard with further doors into the kitchen and reception room and stairs leading to the first floor.
Reception Room
10' 10'' x 5' 5'' (3.30m x 1.65m)
A further reception room fitted with carpet flooring, uPVC French doors opening a decking area to the rear garden, power points, radiator, television point, gas boiler and space for free standing furniture.
Cloakroom
4' 5'' x 3' 5'' (1.35m x 1.04m)
Cloakroom with a low level WC, hand wash basin and double glazed privacy window to the rear aspect.
First Floor Landing
Carpeted first floor landing with doors leading into all rooms and access to the loft via a hatch.
Bedroom 1
12' 1'' x 10' 1'' (3.68m x 3.07m)
The largest double bedroom fitted with carpet flooring, double glazed window to the front aspect, radiator and power points throughout.
Bedroom 2
12' 1'' x 9' 2'' (3.68m x 2.79m)
A second double bedroom fitted with carpet flooring, double glazed window to the front aspect, radiator and additional power points.
Bedroom 3
8' 5'' x 7' 10'' (2.56m x 2.39m)
Single bedroom to the rear with fitted carpet flooring, double glazed window, radiator and power points.
Shower Room
9' 2'' x 5' 3'' (2.79m x 1.60m)
A wet room style shower room fitted with vinyl flooring, two double glazed privacy windows, extractor fan, part tiled walls, low level WC, hand wash basin with vanity unit and a rainfall style shower with a drainage system below.
Outside
Low level brick wall with a gate entering into a paved garden with bushes to the front and entrance into the property via a conservatory style door to the front.
An easily maintainable garden to the rear comprising of a range of timber decking and paving, perfect for outdoor living furniture with a storage shed and communal parking to the rear.
Council Tax
Band B
Tenure
Freehold
Services
Gas, mains water, electricity and drainage.
Viewings
Strictly prior to appointment through Darby & Liffen Ltd.
AGENTS NOTE
Whilst every care is taken when preparing details, DARBY & LIFFEN LTD, do not carry out any tests on any domestic appliances, which include Gas appliances & Electrical appliances. This means confirmation cannot be given as to whether or not they are in working condition. Measurements are always intended to be accurate but they must be taken as approximate only. Every care has been taken to provide true descriptions, however, no guarantee can be given as to their accuracy, nor do they constitute any part of an offer or contract.
Outside
An easily maintainable garden to the rear comprising of a range of timber decking and paving, perfect for outdoor living furniture with a storage shed and communal parking to the rear.
Brochures
Full Details- COUNCIL TAXA payment made to your local authority in order to pay for local services like schools, libraries, and refuse collection. The amount you pay depends on the value of the property.Read more about council Tax in our glossary page.
- Band: B
- PARKINGDetails of how and where vehicles can be parked, and any associated costs.Read more about parking in our glossary page.
- Yes
- GARDENA property has access to an outdoor space, which could be private or shared.
- Yes
- ACCESSIBILITYHow a property has been adapted to meet the needs of vulnerable or disabled individuals.Read more about accessibility in our glossary page.
- Ask agent
Patterson Close, Great Yarmouth
Add an important place to see how long it'd take to get there from our property listings.
__mins driving to your place
Get an instant, personalised result:
- Show sellers you’re serious
- Secure viewings faster with agents
- No impact on your credit score
Affordability
Notes
Staying secure when looking for property
Ensure you're up to date with our latest advice on how to avoid fraud or scams when looking for property online.
Visit our security centre to find out moreDisclaimer - Property reference 11609964. The information displayed about this property comprises a property advertisement. Rightmove.co.uk makes no warranty as to the accuracy or completeness of the advertisement or any linked or associated information, and Rightmove has no control over the content. This property advertisement does not constitute property particulars. The information is provided and maintained by Darby & Liffen, Gorleston On Sea. Please contact the selling agent or developer directly to obtain any information which may be available under the terms of The Energy Performance of Buildings (Certificates and Inspections) (England and Wales) Regulations 2007 or the Home Report if in relation to a residential property in Scotland.
*This is the average speed from the provider with the fastest broadband package available at this postcode. The average speed displayed is based on the download speeds of at least 50% of customers at peak time (8pm to 10pm). Fibre/cable services at the postcode are subject to availability and may differ between properties within a postcode. Speeds can be affected by a range of technical and environmental factors. The speed at the property may be lower than that listed above. You can check the estimated speed and confirm availability to a property prior to purchasing on the broadband provider's website. Providers may increase charges. The information is provided and maintained by Decision Technologies Limited. **This is indicative only and based on a 2-person household with multiple devices and simultaneous usage. Broadband performance is affected by multiple factors including number of occupants and devices, simultaneous usage, router range etc. For more information speak to your broadband provider.
Map data ©OpenStreetMap contributors.






