
Mackintosh Place, Cardiff, CF24

Letting details
- Let available date:
- 01/07/2026
- Deposit:
- £3,288A deposit provides security for a landlord against damage, or unpaid rent by a tenant.Read more about deposit in our glossary page.
- Min. Tenancy:
- 12 months How long the landlord offers to let the property for.Read more about tenancy length in our glossary page.
- Furnish type:
- Furnished
- Council Tax:
- Ask agent
- PROPERTY TYPE
Terraced
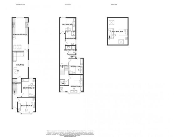
- BEDROOMS
6
- BATHROOMS
3
- SIZE
Ask agent
Key features
- Student Accomodation
- Fully Furnished
- Close to Cardiff University
- Excellent transport links
- Six Double Bedrooms
- Kitchen-Diner
- Garden
- Dining Room
- Furnished
- Fridge Freezer
Description
FIRST MANOR PROPERTY are proud to offer this spacious 6 double bedroom, Fully furnished, student accommodation.
Located in a sought-after student location and within walking distance of Cardiff University or Met, the Student Union, Cardiff City and near all the shops and amenities of Albany Road and Wellfield Road, viewing is highly recommended. With everything you need right on your doorstep, this property offers the ideal base for both study and leisure, making it a top pick for any discerning student seeking comfort and convenience.
The property is particularly well-suited for students enrolled at Cardiff University as well as those attending the Heath hospital. The University Hospital of Wales is located within walking distance, making this an excellent choice for medical students.
Conveniently situated within walking distance of Queens Street Station and Cardiff Central Station, residents benefit from excellent rail and bus connections. This ensures easy access to Cardiff City Centre and its wide array of shops, restaurants, and entertainment options.
Features
- Microwave
- Full Double Glazing
- Oven/Hob
- Gas Central Heating Combi Boiler
- Double Bedrooms
- COUNCIL TAXA payment made to your local authority in order to pay for local services like schools, libraries, and refuse collection. The amount you pay depends on the value of the property.Read more about council Tax in our glossary page.
- Band: E
- PARKINGDetails of how and where vehicles can be parked, and any associated costs.Read more about parking in our glossary page.
- Ask agent
- GARDENA property has access to an outdoor space, which could be private or shared.
- Yes
- ACCESSIBILITYHow a property has been adapted to meet the needs of vulnerable or disabled individuals.Read more about accessibility in our glossary page.
- Ask agent
Mackintosh Place, Cardiff, CF24
Add an important place to see how long it'd take to get there from our property listings.
__mins driving to your place
Notes
Staying secure when looking for property
Ensure you're up to date with our latest advice on how to avoid fraud or scams when looking for property online.
Visit our security centre to find out moreDisclaimer - Property reference 147MAC. The information displayed about this property comprises a property advertisement. Rightmove.co.uk makes no warranty as to the accuracy or completeness of the advertisement or any linked or associated information, and Rightmove has no control over the content. This property advertisement does not constitute property particulars. The information is provided and maintained by First Manor Property, Cardiff. Please contact the selling agent or developer directly to obtain any information which may be available under the terms of The Energy Performance of Buildings (Certificates and Inspections) (England and Wales) Regulations 2007 or the Home Report if in relation to a residential property in Scotland.
*This is the average speed from the provider with the fastest broadband package available at this postcode. The average speed displayed is based on the download speeds of at least 50% of customers at peak time (8pm to 10pm). Fibre/cable services at the postcode are subject to availability and may differ between properties within a postcode. Speeds can be affected by a range of technical and environmental factors. The speed at the property may be lower than that listed above. You can check the estimated speed and confirm availability to a property prior to purchasing on the broadband provider's website. Providers may increase charges. The information is provided and maintained by Decision Technologies Limited. **This is indicative only and based on a 2-person household with multiple devices and simultaneous usage. Broadband performance is affected by multiple factors including number of occupants and devices, simultaneous usage, router range etc. For more information speak to your broadband provider.
Map data ©OpenStreetMap contributors.





