The Street, Borden, Sittingbourne
Letting details
- Let available date:
- Ask agent
- PROPERTY TYPE
Commercial Property
- SIZE
Ask agent
Description
The unit benefits from a 4.8 m x 3.45 m roller shutter door providing access to the external yard, together with concrete flooring and electric lighting throughout. The internal layout offers clear working space, with approximately 3.7 m between central support columns, allowing flexible configuration for storage, racking, or operational use.
The unit also benefits from a 12.46 m² office, providing valuable administrative accommodation. The wider site is fenced and gated, accessed via a track from Pond Farm Road, offering security and excellent connectivity to Sittingbourne, the A2, M2 (Junction 6), and the wider Kent road network.
Location - Street Farm is situated just off Pond Farm Road in Borden, near Sittingbourne, providing convenient access to the A2, M2 (Junction 6), and the wider Kent road network. The property lies in a rural yet accessible location, approximately 3 miles north of Sittingbourne town centre, with nearby rail connections available at Sittingbourne Station, offering regular services to London and the Kent coast.
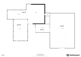
Description - Unit D is a substantial steel portal frame building forming part of the Street Farm Barns at Borden, offering large-scale, flexible accommodation suitable for storage, workshop, or light industrial use. The unit provides a strong, functional specification and generous internal space, well suited to a range of commercial occupiers.
The unit benefits from a 4.8 m x 3.45 m roller shutter door providing access to the external yard, together with concrete flooring and single and three-phase electricity and lighting throughout. The internal layout offers clear working space, with approximately 3.7 m between central support columns, allowing flexible configuration for storage, racking, or operational use.
The unit also benefits from a 12.46 m² office, providing valuable administrative accommodation. The wider site is fenced and gated, accessed via a track from Pond Farm Road, offering security and excellent connectivity to Sittingbourne, the A2, M2 (Junction 6), and the wider Kent road network.
Accommodation - Unit D - 749 m² (8,068 ft²)
Steel portal frame building with concrete flooring and electric lighting. The unit features a 4.8m x 3.45m roller shutter door providing access to the external yard. The space between central support columns is approximately 3.7m, allowing flexible internal layout options. Additionally, Unit D benefits from a 12.46m² office contained within the unit. Unit D is suitable for storage, workshop, or light industrial use, and benefits from internal access from Unit C.
Service Charge - The tenant will pay on demand a fair proportion of the communal running costs of the site.
Business Rates - For further information, contact Nick Prior at Swale Borough Council.
Tenancy - Full repairing and Insuring Tenancy offered subject to the 'contracting out' of S.24-S.28 of the security of tenure provisions of the Landlord and Tenant Act 1954.
Terms - Unit D: Rent: £64,500 plus VAT per annum
Deposit: £16,125
Landlord's Agreement Fee: £500.00 plus VAT
Available From: 1 March 2026
Term: 5 years +
Legal Costs: Landlord and Tenant to pay their own respective legal costs
Brochures
The Street, Borden, SittingbourneBrochureThe Street, Borden, Sittingbourne
NEAREST STATIONS
Distances are straight line measurements from the centre of the postcode- Sittingbourne Station1.5 miles
- Newington Station1.9 miles
- Kemsley Station2.4 miles


Notes
Disclaimer - Property reference 34501001. The information displayed about this property comprises a property advertisement. Rightmove.co.uk makes no warranty as to the accuracy or completeness of the advertisement or any linked or associated information, and Rightmove has no control over the content. This property advertisement does not constitute property particulars. The information is provided and maintained by George Webb Finn LLP, Sittingbourne. Please contact the selling agent or developer directly to obtain any information which may be available under the terms of The Energy Performance of Buildings (Certificates and Inspections) (England and Wales) Regulations 2007 or the Home Report if in relation to a residential property in Scotland.
Map data ©OpenStreetMap contributors.





