Portland Road, Clarendon Park, Leicester

- PROPERTY TYPE
Terraced
- BEDROOMS
3
- BATHROOMS
1
- SIZE
1,776 sq ft
165 sq m
- TENUREDescribes how you own a property. There are different types of tenure - freehold, leasehold, and commonhold.Read more about tenure in our glossary page.
Freehold
Key features
- Spacious Three Storey Villa
- Gas Central Heating, Part Double Glazing
- Two Reception Rooms
- Fitted Dining Kitchen
- Sun Lounge
- Ground Floor WC
- Three Bedrooms Over Two Further Floors
- Rear Courtyard Style Garden
Description
Situated on Portland Road within the heart of Clarendon Park, this three-storey Victorian terraced villa offers generous and flexible accommodation across three floors, along with a blend of period features and modern additions.
The property is well positioned for access to the popular Queens Road shopping parade, which provides a range of everyday amenities including independent shops, cafés, bars and restaurants.
The accommodation begins with an entrance hall featuring original Minton tiled flooring, leading to two reception rooms. The front reception benefits from a bay window, while the rear reception provides access to the garden. To the rear of the property is an open plan fitted dining kitchen, complete with a range of wall and base units, solid granite work surfaces, integrated appliances and space for additional appliances. This space flows through to a sun lounge with bi-folding doors opening onto the rear garden, creating a practical layout for day-to-day living.
The first floor offers two double bedrooms and a family bathroom fitted with a freestanding cast iron ball and claw bath, separate shower cubicle, wash hand basin and WC. The second floor provides a further bedroom with built-in storage.
Externally, the property benefits from a front forecourt and a low-maintenance courtyard-style rear garden with paved seating area, mature planting, and gated side access.
The property is located within reach of local schooling, Leicester City Centre, the University of Leicester, Leicester Royal Infirmary and Leicester General Hospital, as well as nearby green spaces including Victoria Park.
EPC Rating: D
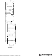
Entrance Hall
Via glazed front door, with original Minton tiled floor, dado rail, stairs to first floor, radiator.
Reception Room One
4.46m x 3.72m
With double glazed bay window to the front elevation, wood effect floor, chimney breast, ceiling coving, TV point, cable connection, telephone point, radiator.
Reception Room Two
3.74m x 3.64m
With windows and door to the rear garden, wood effect floor, chimney breast with feature fireplace, surround and hearth, ceiling coving, picture rail, TV point, radiator.
Open Plan Fitted Dining Kitchen
5.93m x 3.66m
With double glazed bay window to the side elevation, double glazed skylight, spotlights, part tiled walls, tiled floor, a range of oak wall and base with solid granite work surface and breakfast bar, inset five ring gas hob with extractor hood, integrated double oven, plumbing for washing machine, space for tumble dryer, plumbing for dishwasher, space and plumbing for American-style fridge freezer, radiator.
Sun Lounge
3.62m x 3m
With double glazed skylight window, two double glazed windows to the side elevation, double glazed bi-folding doors, ceramic tiled floor, under-floor heating.
Ground Floor WC
With window to the side elevation, ceramic tiled floor, low-level WC, wash hand basin, part tiled walls.
First Floor Landing
With stairs to second floor.
Bedroom One
4.51m x 3.75m
With double glazed bay window to the front elevation, further sash window to the front elevation, spotlights, chimney breast with feature fireplace, surround and hearth, picture rail, TV point, radiator.
Bedroom Two
3.73m x 3.64m
With sash window to the rear elevation, wood effect floor, chimney breast with feature fireplace, surround and hearth, radiator.
Bathroom
With obscured glass window to the rear elevation, tiled floor, part tiled walls, freestanding ball and claw cast iron bath with mixer shower tap, separate shower cubicle, traditional pull chain WC, wash hand basin, open access to a storage area with the boiler and window to the side elevation, radiator.
Second Floor
With ample built-in storage, door to bedroom three.
Bedroom Three
3.36m x 2.74m
With window to the front elevation, oak effect laminate floor, chimney breast, radiator.
Front Garden
Front forecourt with paved pathway to the front door.
Rear Garden
A low maintenance rear courtyard style garden with paved patio area, mature flowerbeds, garden shed, walled perimeter, gated access to the side alley.
Parking - Permit
Permit Parking Zones
The property is within a controlled parking zone. Buyers should make their own enquiries with the local council regarding permit availability and associated costs.
Disclaimer
Measurements are taken electronically and are for guidance only — not to be relied upon as exact. Services, appliances, and fittings have not been tested. Buyers must satisfy themselves through inspection. Floor plans are not to scale and are for layout guidance only. Knightsbridge Estate Agents make no warranties regarding the property. By law, we must carry out anti-money laundering checks for buyers and sellers. These are handled on our behalf by Kotini. A £70 fee (incl. VAT) charge applies. This must be paid before we can publish your property (for vendors) or issue a memorandum of sale (for buyers). The fee is non-refundable and paid directly to Lifetime Legal. We receive a portion of this fee for facilitating the checks.
Brochures
Key Facts for BuyersProperty Brochure- COUNCIL TAXA payment made to your local authority in order to pay for local services like schools, libraries, and refuse collection. The amount you pay depends on the value of the property.Read more about council Tax in our glossary page.
- Band: D
- PARKINGDetails of how and where vehicles can be parked, and any associated costs.Read more about parking in our glossary page.
- Permit
- GARDENA property has access to an outdoor space, which could be private or shared.
- Front garden,Rear garden
- ACCESSIBILITYHow a property has been adapted to meet the needs of vulnerable or disabled individuals.Read more about accessibility in our glossary page.
- Ask agent
Energy performance certificate - ask agent
Portland Road, Clarendon Park, Leicester
Add an important place to see how long it'd take to get there from our property listings.
__mins driving to your place
Get an instant, personalised result:
- Show sellers you’re serious
- Secure viewings faster with agents
- No impact on your credit score



Affordability
Notes
Staying secure when looking for property
Ensure you're up to date with our latest advice on how to avoid fraud or scams when looking for property online.
Visit our security centre to find out moreDisclaimer - Property reference d53ee4d3-1525-443b-876d-19d112d915ad. The information displayed about this property comprises a property advertisement. Rightmove.co.uk makes no warranty as to the accuracy or completeness of the advertisement or any linked or associated information, and Rightmove has no control over the content. This property advertisement does not constitute property particulars. The information is provided and maintained by Knightsbridge Estate Agents & Valuers, Leicester. Please contact the selling agent or developer directly to obtain any information which may be available under the terms of The Energy Performance of Buildings (Certificates and Inspections) (England and Wales) Regulations 2007 or the Home Report if in relation to a residential property in Scotland.
*This is the average speed from the provider with the fastest broadband package available at this postcode. The average speed displayed is based on the download speeds of at least 50% of customers at peak time (8pm to 10pm). Fibre/cable services at the postcode are subject to availability and may differ between properties within a postcode. Speeds can be affected by a range of technical and environmental factors. The speed at the property may be lower than that listed above. You can check the estimated speed and confirm availability to a property prior to purchasing on the broadband provider's website. Providers may increase charges. The information is provided and maintained by Decision Technologies Limited. **This is indicative only and based on a 2-person household with multiple devices and simultaneous usage. Broadband performance is affected by multiple factors including number of occupants and devices, simultaneous usage, router range etc. For more information speak to your broadband provider.
Map data ©OpenStreetMap contributors.





