Residential Development Land, 38 Moss House Road, Blackpool, Lancashire, FY4
- SIZE AVAILABLE
4,929 sq ft
458 sq m
- SECTOR
Commercial development for sale
Key features
- RESIDENTIAL RE-DEVELOPMENT LAND
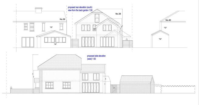
- PLANNING PERMISSION PREVIOUSLY GRANTED FOR THE ERECTION OF A SINGLE PRIVATE DWELLING HOUSE FOLLOWING DEMOLITION OF EXISTING BARN
- PLANNING REF: 20/0250
- PLOT SIZE APPROX 4,929 SQ FT / 458 SQ. M
- ESTABLISHED RESIDENTIAL LOCATION
- CLOSE TO THE KENSINGTON HOMES DEVELOPMENT
Description
- Approx 4,929 sq ft / 458 sq m
- Planning permission previously granted for the erection of a single private dwelling house following demolition of existing barn
- Planning reference: 20/0250
- Located on Moss House Road, Blackpool
- Provides ease of access onto Progress Way which connects onto the M55
- Close to local shops/amenities
All enquiries welcome and invited.
Brochures
Residential Development Land, 38 Moss House Road, Blackpool, Lancashire, FY4
NEAREST STATIONS
Distances are straight line measurements from the centre of the postcode- Squires Gate Station1.4 miles
- Blackpool Pleasure Beach Station1.5 miles
- Blackpool South Station1.6 miles
Notes
Disclaimer - Property reference 7526FH. The information displayed about this property comprises a property advertisement. Rightmove.co.uk makes no warranty as to the accuracy or completeness of the advertisement or any linked or associated information, and Rightmove has no control over the content. This property advertisement does not constitute property particulars. The information is provided and maintained by Duxburys Property Consultants Limited, Lancashire. Please contact the selling agent or developer directly to obtain any information which may be available under the terms of The Energy Performance of Buildings (Certificates and Inspections) (England and Wales) Regulations 2007 or the Home Report if in relation to a residential property in Scotland.
Map data ©OpenStreetMap contributors.





