
Pine Ridge, Lyme Regis
- PROPERTY TYPE
Plot
- BEDROOMS
5
- BATHROOMS
3
- SIZE
Ask agent
Key features
- Planning permission for five bedroom detached house
- Garage and parking
Description
The Plot - This plot presents an unusual opportunity to purchase a plot that has planning permission for a substantial five bedroom detached house situated in an elevated position in Lyme Regis. The plot lies on the edge of the Monmouth Park development.
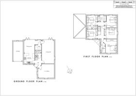
The proposed property briefly comprises of a kitchen/dining room, utility, living room, office and cloakroom to the ground floor, and five double bedrooms, two with ensuite shower rooms, and a family bathroom to the first floor along with parking and an attached garage.
Planning application number: P/FUL/2021/00704.
Situation - Monmouth Park is a stunning collection of traditionally designed homes built to a superior standard with spacious accommodation in the popular coastal town of Lyme Regis. A short drive or a fifteen-minute walk will take you into the centre of Lyme Regis, a picturesque town noted for its attractive period buildings, the famous centuries-old Cobb and harbour. In the town is an excellent selection of facilities including many independent shops and a number of restaurants and hotels, together with various museums. Moments from the high street is the charming award-winning sandy beach which is ideal for families. The harbour is popular with anglers and those keen on deep sea fishing trips, and the sailing and power boat clubs are also nearby. The market town of Axminster, approximately 6 miles distant, provides a good range of day to day amenities, as well as a vibrant market every Thursday and a mainline train service to London Waterloo.
Services - It is understood that there will be ready connections on site for electricity, mains drainage, water, gas and telephone/broadband.
Directions - What3Words///welfare.daredevil.brink
Brochures
BrochurePine Ridge, Lyme Regis
NEAREST STATIONS
Distances are straight line measurements from the centre of the postcode- Axminster Station4.4 miles
Notes
Disclaimer - Property reference 34558497. The information displayed about this property comprises a property advertisement. Rightmove.co.uk makes no warranty as to the accuracy or completeness of the advertisement or any linked or associated information, and Rightmove has no control over the content. This property advertisement does not constitute property particulars. The information is provided and maintained by Symonds & Sampson, Bridport. Please contact the selling agent or developer directly to obtain any information which may be available under the terms of The Energy Performance of Buildings (Certificates and Inspections) (England and Wales) Regulations 2007 or the Home Report if in relation to a residential property in Scotland.
Map data ©OpenStreetMap contributors.










