Globe Wharf, 205 Rotherhithe Street, London, SE16 5XX

- PROPERTY TYPE
Flat
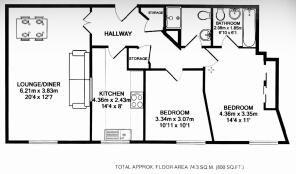
- BEDROOMS
2
- BATHROOMS
2
- SIZE
800 sq ft
74 sq m
Key features
- Central heating
- Dishwasher
- Double glazed
- Parking
- Washing machine
- White goods
- Cable/Satellite
- Broadband/ADSL
Description
Wonderful opportunity to purchase this very spacious two bedroom two bathroom warehouse apartment in the prestigious Grade 2 listed Globe Wharf Riverside warehouse conversion at a very competitive price.
You may see this property advertised with other agents but you will be able to negotiate the best possible deal directly here.
The apartment has exposed brickwork, pillars and period features throughout.
Great River views from the living room, kitchen and both bedrooms.
The Master bedroom also has double doors opening to a Juliette Balcony with river view. One of only three flats with a Juliette Balcony on this elevation.
The Second bedroom is generously sized and easily large enough for a double bed as seen in the pictures
Two bathrooms, en-suite to the master bedroom with full size bath and separate shower room off the hallway and ideal for family or guests.
Good size fully equipped separate kitchen with fridge freezer, washer dryer, full size dishwasher, fan oven, gas hob and built in microwave.
Gas central heating with mega flow indirect cylinder and immersion heater back up. Smart meters and fast broadband.
Ideal for owner occupier or investors and the property is fully licenced with the local authority for rental until 2029.
Use of gymnasium and leisure facilities swimming pool with jacuzzi included.
Allocated secure underground parking space in the Globe Wharf parking area in the adjacent King & Queen Wharf.
Just a short walk away from Rotherhithe Overground and Canada Water Jubilee line.
Local shops and restaurants are directly outside for all your essentials and larger supermarkets and other shops and facilities are close by at Surrey Quays and Canada Water,
If you would like a walk around video please just contact us and this can be sent via WhatsApp or email.
- COUNCIL TAXA payment made to your local authority in order to pay for local services like schools, libraries, and refuse collection. The amount you pay depends on the value of the property.Read more about council Tax in our glossary page.
- Ask agent
- PARKINGDetails of how and where vehicles can be parked, and any associated costs.Read more about parking in our glossary page.
- Yes
- GARDENA property has access to an outdoor space, which could be private or shared.
- Ask agent
- ACCESSIBILITYHow a property has been adapted to meet the needs of vulnerable or disabled individuals.Read more about accessibility in our glossary page.
- Ask agent
Energy performance certificate - ask agent
Globe Wharf, 205 Rotherhithe Street, London, SE16 5XX
Add an important place to see how long it'd take to get there from our property listings.
__mins driving to your place
Get an instant, personalised result:
- Show sellers you’re serious
- Secure viewings faster with agents
- No impact on your credit score
Affordability
Notes
Staying secure when looking for property
Ensure you're up to date with our latest advice on how to avoid fraud or scams when looking for property online.
Visit our security centre to find out moreDisclaimer - Property reference 51062. The information displayed about this property comprises a property advertisement. Rightmove.co.uk makes no warranty as to the accuracy or completeness of the advertisement or any linked or associated information, and Rightmove has no control over the content. This property advertisement does not constitute property particulars. The information is provided and maintained by Visum, Nationwide. Please contact the selling agent or developer directly to obtain any information which may be available under the terms of The Energy Performance of Buildings (Certificates and Inspections) (England and Wales) Regulations 2007 or the Home Report if in relation to a residential property in Scotland.
*This is the average speed from the provider with the fastest broadband package available at this postcode. The average speed displayed is based on the download speeds of at least 50% of customers at peak time (8pm to 10pm). Fibre/cable services at the postcode are subject to availability and may differ between properties within a postcode. Speeds can be affected by a range of technical and environmental factors. The speed at the property may be lower than that listed above. You can check the estimated speed and confirm availability to a property prior to purchasing on the broadband provider's website. Providers may increase charges. The information is provided and maintained by Decision Technologies Limited. **This is indicative only and based on a 2-person household with multiple devices and simultaneous usage. Broadband performance is affected by multiple factors including number of occupants and devices, simultaneous usage, router range etc. For more information speak to your broadband provider.
Map data ©OpenStreetMap contributors.





