
Royal Gardens, Froghall Road, Cheadle, Stoke-on-Trent, Staffordshire, ST10 1TF

- PROPERTY TYPE
Detached
- BEDROOMS
3
- SIZE
Ask developer
- TENUREDescribes how you own a property. There are different types of tenure - freehold, leasehold, and commonhold.Read more about tenure in our glossary page.
Freehold
Key features
- Open plan kitchen/dining room
- Utility room
- Spacious living room with French doors to garden
- Downstairs WC
- En suite to bedroom one
- Family bathroom
- Storage space
- Energy efficient
Description
A thoughtfully-designed three-bedroom family home with much to offer, the Barndale has a bright and modern open plan kitchen/dining room leading to a handy utility room. The spacious living room has French doors leading into the garden. The inner hallway, downstairs WC and cupboards take care of everyday storage. Plus there’s an en suite to bedroom one and a family bathroom.
Additional Information
- Tenure: Freehold
- Council tax band: Not made available by local authority until post-occupation
Parking - Driveway
Room Dimensions
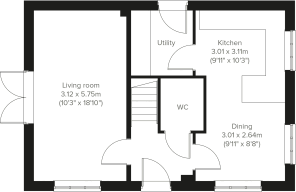
- Kitchen - 3.01 x 3.11 metre
- Dining - 3.01 x 2.64 metre
- Living room - 3.12 x 5.75 metre
- Bedroom 1 - 2.88 x 3.75 metre
- Bedroom 2 - 4.19 x 2.96 metre
- Bedroom 3 - 3.14 x 2.7 metre
- COUNCIL TAXA payment made to your local authority in order to pay for local services like schools, libraries, and refuse collection. The amount you pay depends on the value of the property.Read more about council Tax in our glossary page.
- Ask developer
- PARKINGDetails of how and where vehicles can be parked, and any associated costs.Read more about parking in our glossary page.
- Yes
- GARDENA property has access to an outdoor space, which could be private or shared.
- Yes
- ACCESSIBILITYHow a property has been adapted to meet the needs of vulnerable or disabled individuals.Read more about accessibility in our glossary page.
- Ask developer
Energy performance certificate - ask developer
Royal Gardens, Froghall Road, Cheadle, Stoke-on-Trent, Staffordshire, ST10 1TF
Add an important place to see how long it'd take to get there from our property listings.
__mins driving to your place
Get an instant, personalised result:
- Show sellers you’re serious
- Secure viewings faster with agents
- No impact on your credit score
About the development
Development features
- Choice of 2, 3 and 4 bedroom homes
- Thoughtfully designed community with plenty of nature
- Excellent local schools and everyday amenities
- Great links to Stoke-on-Trent and beyond
About Persimmon Homes
Welcome to Royal Gardens – the best of countryside living with everyday convenience
Discover our exciting one, two, three and four-bedroom energy-efficient new homes in Cheadle, Staffordshire. Located on the edge of town and on the border of the Peak District National Park, Royal Gardens offers a relaxed way of life with scenic surroundings on your doorstep, strong transport links and everything you need close to home.
New homes in Cheadle
Royal Gardens has been designed to bring nature to you. You’ll enjoy wide open spaces, lovely walking routes and views over Cecilly Brook, perfect for fresh air, family time and peaceful moments.
Safe, well-lit footpaths, natural play areas and thoughtful planting throughout the development make the whole community feel established, welcoming and easy to explore on foot.
With wildflower meadows, natural play areas and easy access to the surrounding countryside, Royal Gardens is a place where you can live well and feel connected to nature.
All the essentials close by and further afield in Stoke-on-Trent
Cheadle’s bustling high street is home to independent shops, cafés and a popular fish & chip shop – while Morrisons and Asda are both under a mile away. You’ll also find a local leisure centre, plus a wider range of shops and entertainment in nearby Stoke-on-Trent, just 20 minutes by car.
Explore the great outdoors
Besides all the fantastic nature right outside your door, Royal Gardens is perfectly placed to enjoy the natural beauty of the Peak District. Explore canal walks and riverside trails in Churnet Valley, visit Hawksmoor Ancient Woodland or take in the views at Consall Nature Park. And for family fun, Alton Towers Resort is just six miles away.
Schools for every stage
Families will benefit from good local schools, all within two miles of the development. These include Cheadle Pre-School, St Giles Catholic Primary, Bishops Rawle C of E Primary, The Cheadle Academy and Painsley Catholic College – offering quality education from nursery through to sixth form. Families will be delighted to hear that there are plans to build a new school on site, too.
Ready to make your move?
To explore our new houses for sale in Cheadle and start your new build journey, speak to one of our sales advisors.
This development offers the following schemes:
- New Build Boost
- Part Exchange your home
- Home Change
- Armed Forces, Key Workers & NHS Discount Scheme
- Bank of Mum and Dad
- Early Bird Scheme
Schemes are available on selected plots only, subject to status, terms and conditions apply. Contact the development for latest information.
Affordability
Notes
Staying secure when looking for property
Ensure you're up to date with our latest advice on how to avoid fraud or scams when looking for property online.
Visit our security centre to find out moreDisclaimer - Property reference 3_126. The information displayed about this property comprises a property advertisement. Rightmove.co.uk makes no warranty as to the accuracy or completeness of the advertisement or any linked or associated information, and Rightmove has no control over the content. This property advertisement does not constitute property particulars. The information is provided and maintained by Persimmon Homes. Please contact the selling agent or developer directly to obtain any information which may be available under the terms of The Energy Performance of Buildings (Certificates and Inspections) (England and Wales) Regulations 2007 or the Home Report if in relation to a residential property in Scotland.
*This is the average speed from the provider with the fastest broadband package available at this postcode. The average speed displayed is based on the download speeds of at least 50% of customers at peak time (8pm to 10pm). Fibre/cable services at the postcode are subject to availability and may differ between properties within a postcode. Speeds can be affected by a range of technical and environmental factors. The speed at the property may be lower than that listed above. You can check the estimated speed and confirm availability to a property prior to purchasing on the broadband provider's website. Providers may increase charges. The information is provided and maintained by Decision Technologies Limited. **This is indicative only and based on a 2-person household with multiple devices and simultaneous usage. Broadband performance is affected by multiple factors including number of occupants and devices, simultaneous usage, router range etc. For more information speak to your broadband provider.
Map data ©OpenStreetMap contributors.






