Plots, 27 & 28 Willowturf Court, Bryncethin, Bridgend, Mid Glamorgan, CF32 9PH
- PROPERTY TYPE
Land
- SIZE
Ask agent
Key features
- Building plot
- Lapsed planning for 2 apartments
- Established development
- Residential area
Description
ONLINE AUCTION from 14th APRIL - 16th APRIL 2026
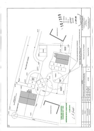
Situated on an established development, this plot had Full Planning Permission (now lapsed) to build two apartments. The plot is situated within a cul de sac of houses and sits behind a parking area.
Bryncethin is a small village in the County Borough of Bridgend, South Wales, located just north of Junction 36 of the M4 Motorway and approximately 3 miles north of the county town of Bridgend. Bryncethin is surrounded by the villages of Aberkenfig, Sarn, Tondu, Ynysawdre, and Abergarw, Brynmenyn the last of which stands at the confluence of the River Garw (Afon Garw) with the larger River Ogmore (Ogmore River).
Note The Vendor is also selling a building plot opposite with lapsed planning for a pair of semi-detached houses. See Lot no. 81
Lapsed Planning Planning permission has previously been granted for 2 Apartments (4/6/2010)
Planning ref: P/10/3098/Ful
Local authority Bridgend County Council
Tenure:
Advised Freehold - to be verified by solicitor
Tenancies:
To be sold with vacant possession
Brochures
Legal DocumentsPlots, 27 & 28 Willowturf Court, Bryncethin, Bridgend, Mid Glamorgan, CF32 9PH
NEAREST STATIONS
Distances are straight line measurements from the centre of the postcode- Sarn Station0.5 miles
- Tondu Station0.6 miles
- Wildmill Station1.6 miles
Notes
Disclaimer - Property reference 338146. The information displayed about this property comprises a property advertisement. Rightmove.co.uk makes no warranty as to the accuracy or completeness of the advertisement or any linked or associated information, and Rightmove has no control over the content. This property advertisement does not constitute property particulars. The information is provided and maintained by Paul Fosh Auctions, Newport. Please contact the selling agent or developer directly to obtain any information which may be available under the terms of The Energy Performance of Buildings (Certificates and Inspections) (England and Wales) Regulations 2007 or the Home Report if in relation to a residential property in Scotland.
Auction Fees: The purchase of this property may include associated fees not listed here, as it is to be sold via auction. To find out more about the fees associated with this property please call Paul Fosh Auctions, Newport on 01633 603042.
*Guide Price: An indication of a seller's minimum expectation at auction and given as a Guide Price or a range of Guide Prices. This is not necessarily the figure a property will sell for and is subject to change prior to the auction.
Reserve Price: Each auction property will be subject to a Reserve Price below which the property cannot be sold at auction. Normally the Reserve Price will be set within the range of Guide Prices or no more than 10% above a single Guide Price.
Map data ©OpenStreetMap contributors.




