Violet Grove, Northwich, CW8

- PROPERTY TYPE
Terraced
- BEDROOMS
2
- BATHROOMS
1
- SIZE
614 sq ft
57 sq m
Key features
- 40% Shared Ownership
- Mid Mews Property
- Hallway & WC
- Kitchen
- Lounge
- Two Bedrooms
- Bathroom
- Enclosed Rear Garden
- Off Road Parking
Description
***40% SHARED OWNERSHIP*** VINCENT JAMES ESTATE AGENTS are pleased to bring to the market this superbly presented MID MEWS property located in WINNINGTON! The accommodation includes: Hallway, Kitchen and Lounge to the ground floor and TWO BEDROOMS and BATHROOM to the first floor. Externally there is an enclosed garden to the rear elevation and off road parking for two cars to the front elevation. Call us now to book your viewing!
EPC Rating: B
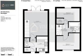
Hallway
Accessed via front entrance door. Storage cupboard. Doors to WC and Lounge. Opening to the Kitchen.
WC
Low level WC and wash hand basin.
Kitchen
Fitted with a range of wall, drawer and base units with worksurfaces above. Inset sink. Inset sink. Space for Fridge Freezer and Washing Machine. Inset oven, hob and hood. Double glazed window to the front elevation.
Lounge / Dining Room
Double glazed French doors to the rear elevation. Stairs to the first floor.
Landing
Doors to bedrooms and bathroom.
Master Bedroom
Double glazed window to the front elevation. Radiator.
Bedroom Two
Double glazed window to the rear elevation. Radiator. Storage Cupboard.
Bathroom
Low level WC, wash hand basin, panelled bath with shower above. Part tiled walls.
Rear Garden
Enclosed rear garden.
Parking - Driveway
Driveway to the front elevation
- COUNCIL TAXA payment made to your local authority in order to pay for local services like schools, libraries, and refuse collection. The amount you pay depends on the value of the property.Read more about council Tax in our glossary page.
- Band: B
- PARKINGDetails of how and where vehicles can be parked, and any associated costs.Read more about parking in our glossary page.
- Driveway
- GARDENA property has access to an outdoor space, which could be private or shared.
- Rear garden
- ACCESSIBILITYHow a property has been adapted to meet the needs of vulnerable or disabled individuals.Read more about accessibility in our glossary page.
- Ask agent
Energy performance certificate - ask agent
Violet Grove, Northwich, CW8
Add an important place to see how long it'd take to get there from our property listings.
__mins driving to your place
Get an instant, personalised result:
- Show sellers you’re serious
- Secure viewings faster with agents
- No impact on your credit score

Affordability
Notes
Staying secure when looking for property
Ensure you're up to date with our latest advice on how to avoid fraud or scams when looking for property online.
Visit our security centre to find out moreDisclaimer - Property reference f944aaa8-0760-4ddf-8a31-edd30482e05f. The information displayed about this property comprises a property advertisement. Rightmove.co.uk makes no warranty as to the accuracy or completeness of the advertisement or any linked or associated information, and Rightmove has no control over the content. This property advertisement does not constitute property particulars. The information is provided and maintained by Vincent James Estate Agents, Northwich. Please contact the selling agent or developer directly to obtain any information which may be available under the terms of The Energy Performance of Buildings (Certificates and Inspections) (England and Wales) Regulations 2007 or the Home Report if in relation to a residential property in Scotland.
*This is the average speed from the provider with the fastest broadband package available at this postcode. The average speed displayed is based on the download speeds of at least 50% of customers at peak time (8pm to 10pm). Fibre/cable services at the postcode are subject to availability and may differ between properties within a postcode. Speeds can be affected by a range of technical and environmental factors. The speed at the property may be lower than that listed above. You can check the estimated speed and confirm availability to a property prior to purchasing on the broadband provider's website. Providers may increase charges. The information is provided and maintained by Decision Technologies Limited. **This is indicative only and based on a 2-person household with multiple devices and simultaneous usage. Broadband performance is affected by multiple factors including number of occupants and devices, simultaneous usage, router range etc. For more information speak to your broadband provider.
Map data ©OpenStreetMap contributors.




