Woodhurst Grove, Bexhill

Letting details
- Let available date:
- 17/04/2026
- Deposit:
- £1,609A deposit provides security for a landlord against damage, or unpaid rent by a tenant.Read more about deposit in our glossary page.
- Min. Tenancy:
- Ask agent How long the landlord offers to let the property for.Read more about tenancy length in our glossary page.
- Let type:
- Long term
- Furnish type:
- Unfurnished
- Council Tax:
- Ask agent
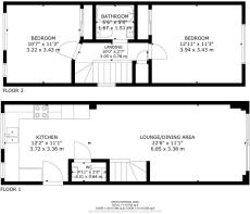
- PROPERTY TYPE
End of Terrace
- BEDROOMS
2
- BATHROOMS
1
- SIZE
753 sq ft
70 sq m
Key features
- *COMING SOON*
- Uninterrupted Views Across Marsh Land and Across to the Sea
- Contemporary Kitchens with Integrated Appliances
- Excellent Road, Bus & Rail Links
- Two Spacious Double Bedrooms
- Flexible, Open Plan Living Spaces with Full Width Glazed Sliding Doors
- Private Off Street Parking & Communal Visitors Spaces
- Private Development Pond
- High Specification Finish
Description
Two Bedroom Homes - This home features a contemporary open plan layout and spacious bedrooms.
You will find a high end designer kitchen with high quality integrated appliances with extended warranties. We have also included extras such as ambient downlighters and under-unit lighting, brushed chrome sockets, a corner carousel unit, cutlery draws and dedicated pan drawers.
Beyond, the open plan living space there is dimmable lighting and benefits from full width glazed sliding doors which span almost the entire with of the property, providing an inside outside feel, beautifully linking the spacious interior with the paved terrace and landscaped garden.
An under stairs cupboard providing valuable added storage space and a cloakroom completes the ground floor.
Venture upstairs and you will find the sharp, contemporary styling and high-end finish continues. This home boasts two spacious double bedrooms, either side of the family bathroom.
For ultimate luxury in the bathroom and cloakrooms, our enhanced specification includes crisp white sanitary ware, high end chrome fittings, heated towel rails, hooks, shaver sockets, porcelain tiling, mirrors and vanity units too.
We have taken the same care and attention to the exteriors, which combines brickwork, render and vertical tiling, along with detailed stonework. The property also comes complete with a lawned garden, patio, shed, tap and power point. There is also an allocated parking space, as well as ample communal visitors’ spaces.
About Woodhurst Grove - Welcome to Woodhurst Grove, a small collection of 2, 3 & 4 bedroom homes near Cooden in East Sussex. Set back from the A259 and enjoying expansive views across open countryside to the sea, as a location it doesn't get better.
Our new homes here combine great road links and the amenities of Little Common village, Cooden and Bexhill, with an idyllic, semi-rural spot to support a relaxed lifestyle. You will find an impressive list of fittings and features included in the price too.
Energy efficiency has been considered too, with the installation of air source heating and hot water systems in every home to save money. In the landscaping of the development we have added a raft of measures to encourage and support wildlife within the grounds.
Woodhurst Grove enjoys a slightly elevated position just off the A259, which backs onto open fields providing uninterrupted views to the coast. The homes are also ideally positioned for the surrounding road links and local bus service, whilst Cooden Beach train station is just 5 minutes' drive away.
You'll find all the essentials on your doorstep in Little Common, from a Doctor's Surgery to a Tesco Express, local newsagent and popular butchers. Continue along the A259 and within 8 minutes you're in Bexhill with it's wider range of stores, cafes and restaurants.
For families, it's good to know that the area is well served by schools. There are two primary schools along with Bexhill Academy secondary school. The town is also home to St. Richard's catholic College, Bexhill College, King Offa Primary Academy and All Saints C of E Primary School.
Brochures
Woodhurst Grove, Bexhill- COUNCIL TAXA payment made to your local authority in order to pay for local services like schools, libraries, and refuse collection. The amount you pay depends on the value of the property.Read more about council Tax in our glossary page.
- Band: C
- PARKINGDetails of how and where vehicles can be parked, and any associated costs.Read more about parking in our glossary page.
- Off street
- GARDENA property has access to an outdoor space, which could be private or shared.
- Yes
- ACCESSIBILITYHow a property has been adapted to meet the needs of vulnerable or disabled individuals.Read more about accessibility in our glossary page.
- Ask agent
Woodhurst Grove, Bexhill
Add an important place to see how long it'd take to get there from our property listings.
__mins driving to your place
Notes
Staying secure when looking for property
Ensure you're up to date with our latest advice on how to avoid fraud or scams when looking for property online.
Visit our security centre to find out moreDisclaimer - Property reference 34499082. The information displayed about this property comprises a property advertisement. Rightmove.co.uk makes no warranty as to the accuracy or completeness of the advertisement or any linked or associated information, and Rightmove has no control over the content. This property advertisement does not constitute property particulars. The information is provided and maintained by Park Lane Group, St. Leonards-On-Sea. Please contact the selling agent or developer directly to obtain any information which may be available under the terms of The Energy Performance of Buildings (Certificates and Inspections) (England and Wales) Regulations 2007 or the Home Report if in relation to a residential property in Scotland.
*This is the average speed from the provider with the fastest broadband package available at this postcode. The average speed displayed is based on the download speeds of at least 50% of customers at peak time (8pm to 10pm). Fibre/cable services at the postcode are subject to availability and may differ between properties within a postcode. Speeds can be affected by a range of technical and environmental factors. The speed at the property may be lower than that listed above. You can check the estimated speed and confirm availability to a property prior to purchasing on the broadband provider's website. Providers may increase charges. The information is provided and maintained by Decision Technologies Limited. **This is indicative only and based on a 2-person household with multiple devices and simultaneous usage. Broadband performance is affected by multiple factors including number of occupants and devices, simultaneous usage, router range etc. For more information speak to your broadband provider.
Map data ©OpenStreetMap contributors.




