Church Hill, Loughton

- PROPERTY TYPE
Detached
- BEDROOMS
4
- BATHROOMS
3
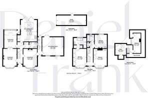
- SIZE
2,754 sq ft
256 sq m
- TENUREDescribes how you own a property. There are different types of tenure - freehold, leasehold, and commonhold.Read more about tenure in our glossary page.
Freehold
Key features
- Three-storey extended Edwardian family home.
- Blend of period charm and modern living throughout.
- Private driveway and tandem garage.
- Four bedrooms plus additional office/study space.
- Spacious living room and formal dining room with bay windows.
- Bright family room overlooking the rear garden.
- Modern shaker kitchen.
- Utility room, shower room and additional cinema/entertainment room.
- Principal bedroom with fitted wardrobes and en-suite.
- Rear garden with patio, lawn and large garden shed.
Description
Set back from the road, the property is approached via steps leading to the front door, with a separate driveway providing off-street parking and access to a tandem garage. Internally, the home retains a wealth of period features including fireplaces, wood-panelled doors, picture and dado rails, coved ceilings, and decorative lighting roses, all adding to its charm and character.
Upon entering, the welcoming hallway provides access to both the formal dining room and living room. The dining room is bright and spacious, benefiting from a large bay window, while the sitting room also features a bay window, stone fireplace, built-in bookcases, and elegant multi-pane French doors leading through to the light-filled family room.
The family room boasts a feature brick wall, partially glazed ceiling, and a wall of windows overlooking the rear garden, creating an airy and versatile living area. The modern shaker-style kitchen/breakfast room is fitted with a Rangemaster cooker, black marble worktops, and a butler sink. The breakfast area is enhanced by a lantern-style skylight and sliding glazed doors opening directly onto the garden. A utility room and shower room are conveniently located off the kitchen.
Additional ground floor accommodation includes a boot room accessed from both the dining room and external doors, leading through to a cinema room, offering excellent entertainment space.
To the first floor, the principal bedroom features fitted wardrobes, a bay window, and a spacious en-suite bathroom. There are two further double bedrooms, one benefitting from fitted wardrobes and a bay window, alongside a family bathroom and separate cloakroom.
The second floor provides a further single bedroom, with convenient eaves storage, and a well-proportioned office space, ideal for home working or study.
Externally, the rear garden is beautifully arranged with a large patio area, lawn, and a substantial garden shed for practical use.
WHY LOUGHTON?
Loughton is a highly desirable area, known for its vibrant community and convenient amenities. At the heart of the town is the bustling High Road, which caters to all your daily needs with supermarkets like M&S Food Hall and Sainsbury's, as well as a variety of popular cafes, coffee shops, and restaurants. Highlights include the renowned Gail's Bakery and The Ginger Pig, along with several charming pubs.
For those seeking an active lifestyle, Loughton offers excellent recreational facilities. The Loughton Cricket Club, Bowling Club, and the newly renovated Loughton Leisure Centre that includes a swimming pool, are all located just off the High Road. Additionally, the area is home to a selection of highly regarded private and state schools, ensuring quality education options.
Nature enthusiasts will appreciate the proximity to the stunning Epping Forest, perfect for cycling, running, or leisurely Sunday strolls. Plus, with Loughton Central Line Station nearby, residents enjoy seamless access to The City and West End, making it an ideal location for commuters.
Important notice: These particulars have been prepared in good faith and do not form part of any offer or contract. All interested parties must verify for themselves the accuracy of the information provided. Any measurements, areas or distances are approximate. Photographs, plans and text are for guidance only and should not be relied upon. We have not performed a structural survey on this property, and it should not be assumed that the property has all necessary planning, building regulations or other consents. We have not tested any services, equipment, or facilities. Purchasers must satisfy themselves with suitable investigations prior to purchase.
Brochures
Brochure.pdf- COUNCIL TAXA payment made to your local authority in order to pay for local services like schools, libraries, and refuse collection. The amount you pay depends on the value of the property.Read more about council Tax in our glossary page.
- Band: G
- PARKINGDetails of how and where vehicles can be parked, and any associated costs.Read more about parking in our glossary page.
- Driveway
- GARDENA property has access to an outdoor space, which could be private or shared.
- Yes
- ACCESSIBILITYHow a property has been adapted to meet the needs of vulnerable or disabled individuals.Read more about accessibility in our glossary page.
- Ask agent
Church Hill, Loughton
Add an important place to see how long it'd take to get there from our property listings.
__mins driving to your place
Get an instant, personalised result:
- Show sellers you’re serious
- Secure viewings faster with agents
- No impact on your credit score
Affordability
Notes
Staying secure when looking for property
Ensure you're up to date with our latest advice on how to avoid fraud or scams when looking for property online.
Visit our security centre to find out moreDisclaimer - Property reference 34565275. The information displayed about this property comprises a property advertisement. Rightmove.co.uk makes no warranty as to the accuracy or completeness of the advertisement or any linked or associated information, and Rightmove has no control over the content. This property advertisement does not constitute property particulars. The information is provided and maintained by Daniel Frank Estates, West Essex. Please contact the selling agent or developer directly to obtain any information which may be available under the terms of The Energy Performance of Buildings (Certificates and Inspections) (England and Wales) Regulations 2007 or the Home Report if in relation to a residential property in Scotland.
*This is the average speed from the provider with the fastest broadband package available at this postcode. The average speed displayed is based on the download speeds of at least 50% of customers at peak time (8pm to 10pm). Fibre/cable services at the postcode are subject to availability and may differ between properties within a postcode. Speeds can be affected by a range of technical and environmental factors. The speed at the property may be lower than that listed above. You can check the estimated speed and confirm availability to a property prior to purchasing on the broadband provider's website. Providers may increase charges. The information is provided and maintained by Decision Technologies Limited. **This is indicative only and based on a 2-person household with multiple devices and simultaneous usage. Broadband performance is affected by multiple factors including number of occupants and devices, simultaneous usage, router range etc. For more information speak to your broadband provider.
Map data ©OpenStreetMap contributors.







