
8, Traie Twoaie, Ramsey

- PROPERTY TYPE
Town House
- BEDROOMS
4
- BATHROOMS
2
- SIZE
Ask agent
- TENUREDescribes how you own a property. There are different types of tenure - freehold, leasehold, and commonhold.Read more about tenure in our glossary page.
Ask agent
Key features
- Contemporary harbour-side town house with spacious accommodation over 3 levels
- Beautiful views over the harbour, Sulby river and sea beyond
- Central and convenient location
- Level walking distance to the town centre, promenade, beach and Mooragh Park
- Property benefits from the remainder of a BLP 12 year guarantee and the fixtures and fittings are finished to a high standard along with a high level of thermal efficiency
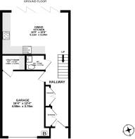
- Welcoming entrance hallway, 2 storage cupboards, ground floor cloakroom (WC), integral garage and utility room
- Stunning dining kitchen with bi-folding doors to the landscaped paved patio - ideal for alfresco dining or entertaining
- Lovely first floor living room with a further set of bi-folding doors to the balcony with amble space for table and chairs, enjoying the fabulous elevated harbour views
- 4 Bedrooms (principle with dressing room and a en-suite shower room) and a luxury family bathroom with separate bath and shower
- Block paved driveway with access to the integral garage, low maintenance landscaped courtyard style garden with patio, and artificial grass - perfect for all year round use!
Description
This contemporary harbour-side townhouse offers spacious and beautifully appointed accommodation arranged over three levels, enjoying stunning views across the harbour, the Sulby River and out to sea.
Ideally positioned in a central and convenient location, the property is within level walking distance of the town centre, promenade, beach and Mooragh Park, making it perfect for those seeking both lifestyle and accessibility.
The home benefits from the remainder of a BLP 12-year guarantee and has been finished to a high standard throughout, with quality fixtures and fittings and excellent levels of thermal efficiency.
The ground floor comprises a welcoming entrance hallway with two storage cupboards, a cloakroom (WC), integral garage and a useful utility room. To the rear is a stunning dining kitchen, complete with bi-folding doors opening onto a landscaped paved patio—ideal for alfresco dining and entertaining.
To the first floor is a lovely living room featuring a further set of bi-folding doors leading onto a balcony with ample space for outdoor seating, perfectly positioned to take in the superb elevated harbour views.
There are four bedrooms, including an impressive principal bedroom with dressing room and an en-suite shower room, along with a luxury family bathroom fitted with both a separate bath and shower.
Externally, the property benefits from a block-paved driveway providing access to the integral garage. The rear garden is designed for low maintenance and year-round enjoyment, featuring a landscaped courtyard-style layout with patio and artificial grass.
This exceptional home combines modern design, generous accommodation and an enviable waterfront setting, offering a superb lifestyle opportunity.
Inclusions All fitted floor coverings, blinds and light fittings
Appliances Oven and 4 ring hob, wine cooler, fridge, dishwasher, washing machine
Tenure Freehold
Rates Treasury tel -
Heating Gas
Windows uPVC double glazing
- COUNCIL TAXA payment made to your local authority in order to pay for local services like schools, libraries, and refuse collection. The amount you pay depends on the value of the property.Read more about council Tax in our glossary page.
- Ask agent
- PARKINGDetails of how and where vehicles can be parked, and any associated costs.Read more about parking in our glossary page.
- Yes
- GARDENA property has access to an outdoor space, which could be private or shared.
- Yes
- ACCESSIBILITYHow a property has been adapted to meet the needs of vulnerable or disabled individuals.Read more about accessibility in our glossary page.
- Ask agent
Energy performance certificate - ask agent
8, Traie Twoaie, Ramsey
Add an important place to see how long it'd take to get there from our property listings.
__mins driving to your place
Get an instant, personalised result:
- Show sellers you’re serious
- Secure viewings faster with agents
- No impact on your credit score
Affordability
Notes
Staying secure when looking for property
Ensure you're up to date with our latest advice on how to avoid fraud or scams when looking for property online.
Visit our security centre to find out moreDisclaimer - Property reference 7197. The information displayed about this property comprises a property advertisement. Rightmove.co.uk makes no warranty as to the accuracy or completeness of the advertisement or any linked or associated information, and Rightmove has no control over the content. This property advertisement does not constitute property particulars. The information is provided and maintained by Garforth Gray, Isle of Man. Please contact the selling agent or developer directly to obtain any information which may be available under the terms of The Energy Performance of Buildings (Certificates and Inspections) (England and Wales) Regulations 2007 or the Home Report if in relation to a residential property in Scotland.
*This is the average speed from the provider with the fastest broadband package available at this postcode. The average speed displayed is based on the download speeds of at least 50% of customers at peak time (8pm to 10pm). Fibre/cable services at the postcode are subject to availability and may differ between properties within a postcode. Speeds can be affected by a range of technical and environmental factors. The speed at the property may be lower than that listed above. You can check the estimated speed and confirm availability to a property prior to purchasing on the broadband provider's website. Providers may increase charges. The information is provided and maintained by Decision Technologies Limited. **This is indicative only and based on a 2-person household with multiple devices and simultaneous usage. Broadband performance is affected by multiple factors including number of occupants and devices, simultaneous usage, router range etc. For more information speak to your broadband provider.
Map data ©OpenStreetMap contributors.






