
Mansell Road, Shoreham by Sea

- PROPERTY TYPE
Semi-Detached
- BEDROOMS
3
- BATHROOMS
1
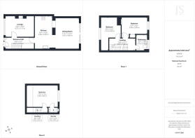
- SIZE
1,094 sq ft
102 sq m
- TENUREDescribes how you own a property. There are different types of tenure - freehold, leasehold, and commonhold.Read more about tenure in our glossary page.
Freehold
Key features
- Three Double Bedrooms
- Semi Detached Family Home
- West Facing Lounge
- Open Plan Kitchen/Dining Room
- Contemporary Kitchen
- Family Bathroom
- Dual Aspect Main Bedroom With Ensuite
- Off Road Parking
- Sun Trap Rear Garden
- Good School Catchment Area
Description
We are delighted to offer for sale this spacious and extended three double bedroom semi detached family home in this popular residential area.
SPACIOUS ENTRANCE HALL West aspect. Comprising obscure pvcu double glazed window, contemporary wall mounted radiator, herringbone flooring, understairs storage cupboard, recessed lighting.
SPACIOUS LOUNGE West aspect. Comprising pvcu double glazed window, carpeted flooring, recessed lighting, feature log burner with tiled hearth, surround sound speaker system, contemporary wall mounted radiator.
OPEN PLAN MODERN FITTED KITCHEN / DINING ROOM East aspect.
FIRST FLOOR LANDING Recessed lighting, carpeted flooring, stairs to second floor landing.
BEDROOM TWO West aspect. Comprising pvcu double glazed window, radiator, recessed lighting, fitted wardrobes with hanging rails and shelving, loft hatch access to eaves storage.
BEDROOM THREE East aspect. Comprising pvcu double glazed window, contemporary wall mounted radiator, laminate flooring, recessed lighting, fitted cupboard, open storage with shelving.
FAMILY BATHROOM East aspect. Comprising obscure pvcu double glazed window, tiled flooring, low flush wc, pedestal hand wash basin, tiled walls, ladder style heated towel rail, panel enclosed bath with integrated shower attachment over, recessed lighting, extractor fan.
SECOND FLOOR LANDING Velux window, recessed lighting, carpeted flooring.
DUAL ASPECT BEDROOM ONE East and West aspect. Comprising pvcu double glazed window, contemporary wall mounted radiator, carpeted flooring, fitted wardrobes with hanging rails and shelving, door through to:
ENSUITE Comprising fully tiled walls, low flush wc, hand wash basin with mixer tap, extractor fan.
FEATURE REAR GARDEN Tiled patio area with steps up onto large lawned area with raised sleep beds, having various shrub and plant borders leading to raised decked area with seating and storage benefitting from being fence enclosed. Outside power points, outside tap, two wall mounted lights, gate through to side access.
FRONT GARDEN Block paved affording off-road parking for multiple vehicles.
- COUNCIL TAXA payment made to your local authority in order to pay for local services like schools, libraries, and refuse collection. The amount you pay depends on the value of the property.Read more about council Tax in our glossary page.
- Band: B
- PARKINGDetails of how and where vehicles can be parked, and any associated costs.Read more about parking in our glossary page.
- Off street
- GARDENA property has access to an outdoor space, which could be private or shared.
- Yes
- ACCESSIBILITYHow a property has been adapted to meet the needs of vulnerable or disabled individuals.Read more about accessibility in our glossary page.
- Ask agent
Energy performance certificate - ask agent
Mansell Road, Shoreham by Sea
Add an important place to see how long it'd take to get there from our property listings.
__mins driving to your place
Get an instant, personalised result:
- Show sellers you’re serious
- Secure viewings faster with agents
- No impact on your credit score



Affordability
Notes
Staying secure when looking for property
Ensure you're up to date with our latest advice on how to avoid fraud or scams when looking for property online.
Visit our security centre to find out moreDisclaimer - Property reference S1669810. The information displayed about this property comprises a property advertisement. Rightmove.co.uk makes no warranty as to the accuracy or completeness of the advertisement or any linked or associated information, and Rightmove has no control over the content. This property advertisement does not constitute property particulars. The information is provided and maintained by Jacobs Steel, Shoreham-By-Sea. Please contact the selling agent or developer directly to obtain any information which may be available under the terms of The Energy Performance of Buildings (Certificates and Inspections) (England and Wales) Regulations 2007 or the Home Report if in relation to a residential property in Scotland.
*This is the average speed from the provider with the fastest broadband package available at this postcode. The average speed displayed is based on the download speeds of at least 50% of customers at peak time (8pm to 10pm). Fibre/cable services at the postcode are subject to availability and may differ between properties within a postcode. Speeds can be affected by a range of technical and environmental factors. The speed at the property may be lower than that listed above. You can check the estimated speed and confirm availability to a property prior to purchasing on the broadband provider's website. Providers may increase charges. The information is provided and maintained by Decision Technologies Limited. **This is indicative only and based on a 2-person household with multiple devices and simultaneous usage. Broadband performance is affected by multiple factors including number of occupants and devices, simultaneous usage, router range etc. For more information speak to your broadband provider.
Map data ©OpenStreetMap contributors.






