
Gough Road, Sandgate, Folkestone, CT20

- PROPERTY TYPE
Town House
- BEDROOMS
4
- BATHROOMS
2
- SIZE
Ask agent
- TENUREDescribes how you own a property. There are different types of tenure - freehold, leasehold, and commonhold.Read more about tenure in our glossary page.
Freehold
Key features
- Elegant four-bedroom townhouse arranged over four beautifully designed floors
- Prime coastal setting just moments from Sandgate Beach
- Spacious first-floor lounge filled with natural light, ideal for relaxing and entertaining
- Kitchen/dining room with direct access to a private balcony
- Sea Views
- Stunning principal suite featuring en-suite shower room and private balcony
- Three further well-proportioned bedrooms offering versatile living space
- Integral garage plus off-road parking for added convenience
- Located close to highly regarded local schools
- Excellent transport links via Folkestone West Station, ideal for commuters
Description
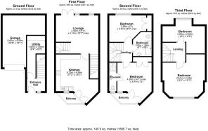
FOR SALE WITH BURNAP + ABEL... SEA VIEWS!!! Set just moments from the shoreline, Seascape, Gough Road presents an exceptional opportunity to enjoy refined coastal living in the heart of Sandgate. This beautifully arranged four-bedroom townhouse combines contemporary comfort with elegant design, offering versatile accommodation across four thoughtfully planned floors. Upon entering the ground floor, you are welcomed by a practical utility room, ideal for everyday convenience, alongside the integral garage and staircase leading to the main living areas. The first floor forms the heart of the home, where a spacious and light-filled lounge provides the perfect setting for relaxation. To the front, a kitchen/dining area is designed for both entertaining and family life, with direct access to a private balcony—perfect for enjoying morning coffee or evening sea air. On the second floor, the principal bedroom suite offers a peaceful retreat, complete with its own en-suite shower room and private balcony. A further generously sized bedroom and a well-appointed family bathroom complete this level. The third floor provides two additional bedrooms, ideal for growing families, guests, or home office use, offering flexibility to suit modern lifestyles. Externally, the property benefits from a private rear courtyard, creating a low-maintenance outdoor space for dining or relaxation. A garage and off-road parking add further practicality. Perfectly positioned just a stone’s throw from Sandgate Beach, this home also enjoys close proximity to highly regarded local schools and excellent transport links, including Folkestone West Station, making it ideal for both commuters and families alike. This is a rare opportunity to acquire a stylish coastal home in a sought-after location, where modern living meets seaside charm.
Entrance Hall
Utility Room
Lounge
15' 1" x 13' 7" (4.60m x 4.14m)
Kitchen/Dining Room
17' 2" x 15' 1" (5.23m x 4.60m)
Balcony 1
Second Floor Landing
Bedroom One
14' 1" x 12' 0" (4.29m x 3.66m)
En-Suite
Balcony 2
Family Bathroom
8' 7" x 6' 6" (2.62m x 1.98m)
Bedroom Two
13' 0" x 9' 5" (3.96m x 2.87m)
Third Floor Landing
Bedroom Three
15' 1" x 15' 1" (4.60m x 4.60m)
Bedroom Four
15' 1" x 9' 9" (4.60m x 2.97m)
Garage
18' 6" x 15' 1" (5.64m x 4.60m)
Off Road Parking
Rear Courtyard
- COUNCIL TAXA payment made to your local authority in order to pay for local services like schools, libraries, and refuse collection. The amount you pay depends on the value of the property.Read more about council Tax in our glossary page.
- Ask agent
- PARKINGDetails of how and where vehicles can be parked, and any associated costs.Read more about parking in our glossary page.
- Yes
- GARDENA property has access to an outdoor space, which could be private or shared.
- Ask agent
- ACCESSIBILITYHow a property has been adapted to meet the needs of vulnerable or disabled individuals.Read more about accessibility in our glossary page.
- Ask agent
Energy performance certificate - ask agent
Gough Road, Sandgate, Folkestone, CT20
Add an important place to see how long it'd take to get there from our property listings.
__mins driving to your place
Get an instant, personalised result:
- Show sellers you’re serious
- Secure viewings faster with agents
- No impact on your credit score
Affordability
Notes
Staying secure when looking for property
Ensure you're up to date with our latest advice on how to avoid fraud or scams when looking for property online.
Visit our security centre to find out moreDisclaimer - Property reference 30115070. The information displayed about this property comprises a property advertisement. Rightmove.co.uk makes no warranty as to the accuracy or completeness of the advertisement or any linked or associated information, and Rightmove has no control over the content. This property advertisement does not constitute property particulars. The information is provided and maintained by Burnap & Abel, Folkestone. Please contact the selling agent or developer directly to obtain any information which may be available under the terms of The Energy Performance of Buildings (Certificates and Inspections) (England and Wales) Regulations 2007 or the Home Report if in relation to a residential property in Scotland.
*This is the average speed from the provider with the fastest broadband package available at this postcode. The average speed displayed is based on the download speeds of at least 50% of customers at peak time (8pm to 10pm). Fibre/cable services at the postcode are subject to availability and may differ between properties within a postcode. Speeds can be affected by a range of technical and environmental factors. The speed at the property may be lower than that listed above. You can check the estimated speed and confirm availability to a property prior to purchasing on the broadband provider's website. Providers may increase charges. The information is provided and maintained by Decision Technologies Limited. **This is indicative only and based on a 2-person household with multiple devices and simultaneous usage. Broadband performance is affected by multiple factors including number of occupants and devices, simultaneous usage, router range etc. For more information speak to your broadband provider.
Map data ©OpenStreetMap contributors.





