
Richard Moon Street, Crewe

- PROPERTY TYPE
End of Terrace
- BEDROOMS
2
- BATHROOMS
1
- SIZE
Ask agent
- TENUREDescribes how you own a property. There are different types of tenure - freehold, leasehold, and commonhold.Read more about tenure in our glossary page.
Freehold
Description
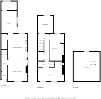
Situated in a popular residential location, close to Crewe town centre, this spacious and well presented two bedroom end of terrace home has the added benefits of a loft room, garage and no upward chain. Comprising in brief, reception hall, lounge /dining room, kitchen, utility room, two double bedrooms and a loft room. Viewings are highly recommended to appreciate just what this home has to offer.
Council Tax Band: A (Cheshire East)
Tenure: Freehold
Access
Approached over a Tarmacadam pathway leading to the double glazed decorative panelled entrance door giving access into the reception porch.
Reception Porch
w: 0.9m x l: 1.3m (w: 2' 11" x l: 4' 3")
Having a glazed panelled door leading into the reception hall.
Reception Hall
w: 0.95m x l: 2.82m (w: 3' 1" x l: 9' 3")
Having a single radiator, stairs rising to the first floor, wood panelled door leading into the lounge / dining room.
Lounge/diner
w: 3.33m x l: 7.82m (w: 10' 11" x l: 25' 8")
Really good sized lounge / dining room with two double glazed panelled windows to the side elevation, uPvc double glazed panelled window to the rear elevation, uPvc double glazed panelled window to the front elevation, two double panelled radiators, feature marble fire place housing a coal effect living flame gas fire, door into the understairs storage cupboard, door leading into the kitchen.
Kitchen
w: 2.58m x l: 3.8m (w: 8' 6" x l: 12' 6")
Having a uPvc double glazed panelled window to the side elevation, wood panelled door leading to the rear elevation, tiled flooring. The kitchen is fitted with a range of wall base and drawer units with granite effect roll top work surfaces over incorporating a one and a half bowl resin sink unit with mixer tap, built in four ring electric hob with extractor hood over and electric oven below, space for fridge freezer, double panelled radiator, door into the utility room.
Utility
w: 2.58m x l: 1.48m (w: 8' 6" x l: 4' 10")
Really useful utility room with a uPvc double glazed panelled window to the rear elevation, tiled flooring, single radiator, work station with space below for washer and slimline dishwasher.
FIRST FLOOR:
Landing
Having loft access point, built in storage cupboards, stairs leading to the loft room, doors to all further rooms.
Bedroom 1
w: 4.38m x l: 3.29m (w: 14' 4" x l: 10' 10")
Good sized double room with two uPvc double glazed panelled windows to the front elevation with plantation window shutters, oak effect laminate flooring, double panelled radiator.
Bedroom 2
w: 1.88m x l: 4.48m (w: 6' 2" x l: 14' 8")
A further double room with uPvc double glazed panelled window to the rear elevation, range of built in storage to include two double wardrobes with additional overhead storage cupboards, single radiator.
Bathroom
w: 2.58m x l: 2.92m (w: 8' 6" x l: 9' 7")
Good sized shower room with uPvc double glazed frosted panelled window to the rear elevation, single radiator, three piece suite comprising of a low level WC, vanity unit wash hand basin with mixer tap and storage below, walk in shower cubicle with glazed sliding door housing a mixer shower, complimentary wall tiling, built in cupboard housing the central heating boiler.
Loft room
w: 4.39m x l: 4.93m (w: 14' 5" x l: 16' 2")
Good usable space with a double glazed panelled roof window to the rear elevation, built in storage, double panelled radiator.
Externally
Rear courtyard garden with walled boundaries.
Garage
Detached single garage with up and over door to the front elevation.
Energy Performance
We await the energy performance figures.
Viewings
Viewings are strictly by appointment only, please call or email the office. Thank you.
Looking to sell?
If you are thinking of selling please call or email the office to arrange a free market appraisal. Thank you.
Brochures
Brochure- COUNCIL TAXA payment made to your local authority in order to pay for local services like schools, libraries, and refuse collection. The amount you pay depends on the value of the property.Read more about council Tax in our glossary page.
- Band: A
- PARKINGDetails of how and where vehicles can be parked, and any associated costs.Read more about parking in our glossary page.
- On street
- GARDENA property has access to an outdoor space, which could be private or shared.
- Terrace
- ACCESSIBILITYHow a property has been adapted to meet the needs of vulnerable or disabled individuals.Read more about accessibility in our glossary page.
- Ask agent
Energy performance certificate - ask agent
Richard Moon Street, Crewe
Add an important place to see how long it'd take to get there from our property listings.
__mins driving to your place
Get an instant, personalised result:
- Show sellers you’re serious
- Secure viewings faster with agents
- No impact on your credit score
Affordability
Notes
Staying secure when looking for property
Ensure you're up to date with our latest advice on how to avoid fraud or scams when looking for property online.
Visit our security centre to find out moreDisclaimer - Property reference RS0754. The information displayed about this property comprises a property advertisement. Rightmove.co.uk makes no warranty as to the accuracy or completeness of the advertisement or any linked or associated information, and Rightmove has no control over the content. This property advertisement does not constitute property particulars. The information is provided and maintained by Wheatcroft & Lloyd, Sandbach. Please contact the selling agent or developer directly to obtain any information which may be available under the terms of The Energy Performance of Buildings (Certificates and Inspections) (England and Wales) Regulations 2007 or the Home Report if in relation to a residential property in Scotland.
*This is the average speed from the provider with the fastest broadband package available at this postcode. The average speed displayed is based on the download speeds of at least 50% of customers at peak time (8pm to 10pm). Fibre/cable services at the postcode are subject to availability and may differ between properties within a postcode. Speeds can be affected by a range of technical and environmental factors. The speed at the property may be lower than that listed above. You can check the estimated speed and confirm availability to a property prior to purchasing on the broadband provider's website. Providers may increase charges. The information is provided and maintained by Decision Technologies Limited. **This is indicative only and based on a 2-person household with multiple devices and simultaneous usage. Broadband performance is affected by multiple factors including number of occupants and devices, simultaneous usage, router range etc. For more information speak to your broadband provider.
Map data ©OpenStreetMap contributors.






