Victoria Road, Ruislip

- PROPERTY TYPE
Duplex
- BEDROOMS
2
- BATHROOMS
1
- SIZE
Ask agent
Key features
- NO UPPER CHAIN
- TWO Spacious Bedrooms
- Garage
- Double glazing
- Close to station
- Convenient for A40
- Gas central heating
Description
For commuters, South Ruislip Station provides swift and convenient access to Central London via the Central line and Chiltern Railways. Motorists will also appreciate the easy access to the A40, M40 and M25.
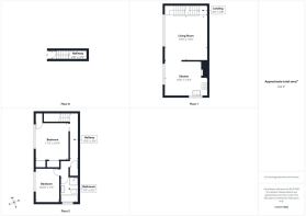
Entrance Hall - Front aspect double glazed frosted door, stairs to;
Living Room - Front aspect double glazed window, radiator, open to;
Kitchen - Front aspect double glazed window, side aspect double glazed window, part tiled walls, a range of base and eye levels units, space for oven with four electric hobs, fridge/ freezer, washing machine.
First Floor Landing - Loft hatch, doors to;
Bedroom One - Front aspect double glazed window, radiator, built in storage.
Bedroom Two - Front aspect double glazed window, double radiator.
Bathroom - Side aspect double glazed frosted window, tiled walls. panel enclosed bathtub with mixer taps and shower attachments, shower cubicle with electric shower attachment, low level w/c, wash hand basin.
Leasehold - Lease - 100 plus years
N.B. WE RECOMMEND YOUR SOLICITOR VERIFIES THIS BEFORE EXCHANGE OF CONTRACTS.
Outgoings - TBC
Council Tax - London Borough of Hillingdon - Band C - £1,818.19
N.B. WE RECOMMEND YOUR SOLICITOR VERIFIES THIS BEFORE EXCHANGE OF CONTRACTS.
Distance To Stations - South Ruislip (0.1 Miles) - Central and Overground
Ruislip Manor (1.3 Miles) - Metropolitan/Piccadilly
Brochures
Victoria Road, RuislipBrochure- COUNCIL TAXA payment made to your local authority in order to pay for local services like schools, libraries, and refuse collection. The amount you pay depends on the value of the property.Read more about council Tax in our glossary page.
- Band: C
- PARKINGDetails of how and where vehicles can be parked, and any associated costs.Read more about parking in our glossary page.
- Yes
- GARDENA property has access to an outdoor space, which could be private or shared.
- Ask agent
- ACCESSIBILITYHow a property has been adapted to meet the needs of vulnerable or disabled individuals.Read more about accessibility in our glossary page.
- Ask agent
Energy performance certificate - ask agent
Victoria Road, Ruislip
Add an important place to see how long it'd take to get there from our property listings.
__mins driving to your place
Get an instant, personalised result:
- Show sellers you’re serious
- Secure viewings faster with agents
- No impact on your credit score
Affordability
Notes
Staying secure when looking for property
Ensure you're up to date with our latest advice on how to avoid fraud or scams when looking for property online.
Visit our security centre to find out moreDisclaimer - Property reference 34568883. The information displayed about this property comprises a property advertisement. Rightmove.co.uk makes no warranty as to the accuracy or completeness of the advertisement or any linked or associated information, and Rightmove has no control over the content. This property advertisement does not constitute property particulars. The information is provided and maintained by Gibson Honey, Ruislip Manor. Please contact the selling agent or developer directly to obtain any information which may be available under the terms of The Energy Performance of Buildings (Certificates and Inspections) (England and Wales) Regulations 2007 or the Home Report if in relation to a residential property in Scotland.
*This is the average speed from the provider with the fastest broadband package available at this postcode. The average speed displayed is based on the download speeds of at least 50% of customers at peak time (8pm to 10pm). Fibre/cable services at the postcode are subject to availability and may differ between properties within a postcode. Speeds can be affected by a range of technical and environmental factors. The speed at the property may be lower than that listed above. You can check the estimated speed and confirm availability to a property prior to purchasing on the broadband provider's website. Providers may increase charges. The information is provided and maintained by Decision Technologies Limited. **This is indicative only and based on a 2-person household with multiple devices and simultaneous usage. Broadband performance is affected by multiple factors including number of occupants and devices, simultaneous usage, router range etc. For more information speak to your broadband provider.
Map data ©OpenStreetMap contributors.




