Hillend Crescent, Clarkston, Glasgow

- PROPERTY TYPE
Semi-Detached
- BEDROOMS
3
- BATHROOMS
1
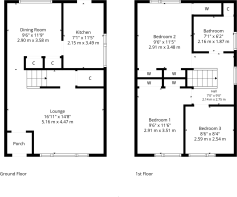
- SIZE
872 sq ft
81 sq m
- TENUREDescribes how you own a property. There are different types of tenure - freehold, leasehold, and commonhold.Read more about tenure in our glossary page.
Freehold
Key features
- Semi-Detached family home
- Three well-proportioned bedrooms
- Two reception rooms
- Private enclosed gardens
- Excellent school catchments and local amenities
- Expansive driveway parking
Description
Enjoying a fantastic location within easy reach of some of Glasgow's most highly regarded local schools, this well-maintained semi-detached villa offers excellent family accommodation arranged over a traditional two-storey layout.
Set within attractive garden grounds with large level lawn and patio area, the property benefits from a driveway to the side providing off-street parking. Ideally positioned, the home is just a short walk from Greenbank House and Gardens, as well as a range of local amenities. Clarkston's vibrant centre is nearby, offering an excellent selection of shops, restaurants, and convenient rail and road links, along with several popular golf courses in the surrounding area.
The property features gas central heating and double glazing throughout. The ground floor comprises a welcoming entrance porch, a bright principal lounge and a separate dining room with useful storage. The modern fitted kitchen is equipped with a range of base and wall-mounted units and access to the rear gardens
Upstairs, there are three well-proportioned bedrooms along with a family bathroom.
The floor plan overleaf provides a detailed illustration of this well-designed and versatile home, however we highly recommend a viewing to fully appreciate the space, flexibility, and convenient setting on offer.
ER Band C
Local Area
Clarkston is widely recognised as one of Glasgow's most prestigious south-side suburbs, renowned for its strong community spirit and exceptional appeal to families. The area seamlessly combines a welcoming, village-like atmosphere with an extensive range of local amenities, making it highly sought-after for those prioritising lifestyle, convenience, and schooling. Residents enjoy a wealth of recreational and sporting facilities, excellent shopping options, and some of the highest-performing schools in the Greater Glasgow area.
Education is a standout feature, with an impressive selection of highly regarded pre-school, primary, and secondary schools. Carolside Primary School, St Joseph's Primary School, Williamwood High School, and St Ninian's High School are particularly noted for their academic excellence, and strong community involvement, making Clarkston a prime choice for families seeking outstanding educational opportunities.
The main thoroughfare offers a vibrant yet relaxed local experience, with a mix of independent boutiques, cafés, delis, and restaurants providing variety and charm. Transport links are excellent, with convenient road connections and regular rail services from Clarkston railway station ensuring swift access to Glasgow city centre and the wider region.
This combination of excellent schooling, strong community, and superb amenities makes Clarkston one of the most desirable suburbs on Glasgow's south side.
Brochures
Web Details- COUNCIL TAXA payment made to your local authority in order to pay for local services like schools, libraries, and refuse collection. The amount you pay depends on the value of the property.Read more about council Tax in our glossary page.
- Band: E
- PARKINGDetails of how and where vehicles can be parked, and any associated costs.Read more about parking in our glossary page.
- Driveway
- GARDENA property has access to an outdoor space, which could be private or shared.
- Yes
- ACCESSIBILITYHow a property has been adapted to meet the needs of vulnerable or disabled individuals.Read more about accessibility in our glossary page.
- Ask agent
Hillend Crescent, Clarkston, Glasgow
Add an important place to see how long it'd take to get there from our property listings.
__mins driving to your place
Get an instant, personalised result:
- Show sellers you’re serious
- Secure viewings faster with agents
- No impact on your credit score
Affordability
Notes
Staying secure when looking for property
Ensure you're up to date with our latest advice on how to avoid fraud or scams when looking for property online.
Visit our security centre to find out moreDisclaimer - Property reference CC0963. The information displayed about this property comprises a property advertisement. Rightmove.co.uk makes no warranty as to the accuracy or completeness of the advertisement or any linked or associated information, and Rightmove has no control over the content. This property advertisement does not constitute property particulars. The information is provided and maintained by Corum, Clarkston. Please contact the selling agent or developer directly to obtain any information which may be available under the terms of The Energy Performance of Buildings (Certificates and Inspections) (England and Wales) Regulations 2007 or the Home Report if in relation to a residential property in Scotland.
*This is the average speed from the provider with the fastest broadband package available at this postcode. The average speed displayed is based on the download speeds of at least 50% of customers at peak time (8pm to 10pm). Fibre/cable services at the postcode are subject to availability and may differ between properties within a postcode. Speeds can be affected by a range of technical and environmental factors. The speed at the property may be lower than that listed above. You can check the estimated speed and confirm availability to a property prior to purchasing on the broadband provider's website. Providers may increase charges. The information is provided and maintained by Decision Technologies Limited. **This is indicative only and based on a 2-person household with multiple devices and simultaneous usage. Broadband performance is affected by multiple factors including number of occupants and devices, simultaneous usage, router range etc. For more information speak to your broadband provider.
Map data ©OpenStreetMap contributors.




