
Cinnamon Lane, Glastonbury, Somerset, BA6
- PROPERTY TYPE
Plot
- SIZE
Ask agent
Description
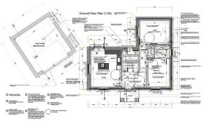
Full planning permission (application number: 2025/1297/FUL) was granted on 25th September 2025 for the Erection of a Replacement Self-Build Dwellinghouse and Garage (Replacement of existing fire damaged dwelling). Our clients have already demolished the fire damaged dwelling and have had the site cleared, with services available, ready for a purchaser to commence the build.
The proposed new build dwelling is an attractive and finely-proportioned detached house with a double garage and an office above, approaching a total of 3000 sq.ft.
Our clients have purchased 6000 engineering bricks and the required door and window seals for the build, which can be included in an agreed sale price of the building plot.
An exciting opportunity to purchase a single building plot with full planning permission granted for the erection of a spacious self-build dwelling house and a double garage with office space above (application: 2025/1297/FUL). Desirably situated in a sought-after address on the outskirts of Glastonbury and less than one mile from Millfield Prep School, this superb plot is cleared and ready for a purchaser to begin construction.
Brochures
ParticularsCinnamon Lane, Glastonbury, Somerset, BA6
NEAREST STATIONS
Distances are straight line measurements from the centre of the postcode- Castle Cary Station8.5 miles
Notes
Disclaimer - Property reference WEL260076. The information displayed about this property comprises a property advertisement. Rightmove.co.uk makes no warranty as to the accuracy or completeness of the advertisement or any linked or associated information, and Rightmove has no control over the content. This property advertisement does not constitute property particulars. The information is provided and maintained by Greenslade Taylor Hunt, Wells. Please contact the selling agent or developer directly to obtain any information which may be available under the terms of The Energy Performance of Buildings (Certificates and Inspections) (England and Wales) Regulations 2007 or the Home Report if in relation to a residential property in Scotland.
Map data ©OpenStreetMap contributors.







