8-9 Hestia House, City Walk, London, SE1 3ES
- SIZE AVAILABLE
3,803 sq ft
353 sq m
- SECTOR
Office for sale
Key features
- Self Contained Offices with Multiple Meeting Rooms
- Ideal for Owner Occupier or Investor
- Offered Across 3,803 square feet
- Ground Floor External Courtyard and Lean-to
- Moments from the Vibrant Bermondsey Street
- Air Conditioning, WCs and Shower Facilities on Both Floors
Description
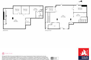
Hestia House offers contemporary office space arranged over the ground and lower ground floors in this mixed use modern development. Currently arranged as two separate self-contained offices, it can easily be adapted for use as one with air conditioning throughout.
Both floors offer largely open-plan workspace, with multiple meeting rooms, kitchen/breakout areas and WCs with one shower. The ground floor further benefits from access to an external space to the rear which would lend itself to bike stores but also landscaping to create an attractive external seating area.
Location
Located on City Walk, the southern end of Morocco Street, and moments from the vibrant Bermondsey Street and directly behind the White Cub Gallery. The area is very much an “in trend” location for commercial occupiers from creative, tech and design industries in search of offices and a vibrant social scene to appeal to talent.
A variety of cafes, bars and restaurants are on the doorstep of Hestia House to include Watch House Coffee, Fuckoffee, Gails and Comptoir alongside The Woolpack, Fleurie, The Leather Exchange and Bermondsey Corner. Destination venues such as the Vinegar Yard, Maltby Market and Borough Market are within walking distance.
London Bridge Station boasts excellent connections including a direct links to Crossrail at Farringdon Station via Thameslink, underground and overground lines.
Viewings
By appointment with Stirling Ackroyd
Energy Performance Certificates
EPCEPCBrochures
8-9 Hestia House, City Walk, London, SE1 3ES
NEAREST STATIONS
Distances are straight line measurements from the centre of the postcode- London Bridge Station0.4 miles
- Borough Station0.5 miles
- Elephant & Castle (Bakerloo) Station0.8 miles
Notes
Disclaimer - Property reference 275516-1. The information displayed about this property comprises a property advertisement. Rightmove.co.uk makes no warranty as to the accuracy or completeness of the advertisement or any linked or associated information, and Rightmove has no control over the content. This property advertisement does not constitute property particulars. The information is provided and maintained by Stirling Ackroyd, Commercial. Please contact the selling agent or developer directly to obtain any information which may be available under the terms of The Energy Performance of Buildings (Certificates and Inspections) (England and Wales) Regulations 2007 or the Home Report if in relation to a residential property in Scotland.
Map data ©OpenStreetMap contributors.






