The Globe, Burton in Kendal, LA6

- PROPERTY TYPE
Terraced
- BEDROOMS
3
- BATHROOMS
1
- SIZE
Ask agent
- TENUREDescribes how you own a property. There are different types of tenure - freehold, leasehold, and commonhold.Read more about tenure in our glossary page.
Freehold
Key features
- 3 characterful bedrooms
- Generous living room with large gas fireplace and triple aspect views
- Additional cellar rooms offer excellent potential for a workshop or generous storage, with scope to enhance access if desired
- Benefitting from a low maintenance garden and allocated parking for 1 vehicle
- Full of original features and character
- Set back from the road in a peaceful position, yet conveniently close to local amenities and transport links
Description
A delightful home tucked away in a peaceful setting, yet still just moments from local amenities. Brimming with character and original features throughout, this inviting property offers a wonderful blend of charm, comfort, and practicality. At its heart is a generous triple aspect living room, filled with natural light and centred around a cosy gas fireplace—an ideal spot for relaxing at the end of the day. The well equipped kitchen is open to the dining room, creating a warm and sociable space that works beautifully for everyday family life as well as entertaining. Upstairs, you’ll find three well proportioned bedrooms, each offering pleasant outlooks, along with a bright family bathroom. For those seeking additional flexibility, two useful cellar rooms—accessed via the dining room—provide superb versatility. Whether used for storage, a workshop, hobbies, or a dedicated home workspace, they offer valuable extra space rarely found in properties of this age. Outside, the low maintenance garden provides a private and sheltered spot to sit, unwind, or enjoy a morning coffee. Convenient parking for one vehicle is available close by, adding to the home’s practicality. The village of Burton in Kendal benefits from a village shop and post office and a well regarded local primary school, rated GOOD by Ofsted. There are close transport links to the M6 motorway, Kendal and Lancaster whilst also benefitting from the recently renovated The Royal Oak pub, tennis courts, a bowling green, the memorial hall - there is a great sense of community engagement. A regular bus service runs hourly through the village from Lancaster to Keswick.
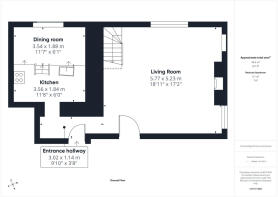
GROUND FLOOR
Entrance hallway
3'8" x 9'10" (1.14m x 3.02m)
With its warm wooden flooring running throughout, this welcoming entrance sets the tone for the home and gives a glimpse of the character to come. There’s practical space to take off and store coats, shoes, and bags, with direct access to the kitchen and dining room as well as the living room.
Kitchen
6'0" x 11'8" (1.84m x 3.56m)
A charming, cottage style kitchen featuring stylish teal base and wall units, beautifully complemented by wooden block worksurfaces. Integrated appliances include a double oven, dishwasher and a gas hob with extractor above, with additional space for a washing machine. A practical peninsula separates the kitchen from the open dining room while providing valuable extra worksurface space.
Dining Room
6'2" x 11'7" (1.88m x 3.54m)
A couple of steps lead up from the kitchen into the dining room, which offers ample space for a table to seat six comfortably, along with a quaint window seat. A cleverly disguised floor hatch is located here, providing access to the additional cellar rooms below.
Living Room
17'1" x 18'11" (5.23m x 5.77m)
A generous, characterful room filled with original features, from exposed wooden ceiling beams to charming alcoves, offering plenty of space for the whole family to gather and unwind. Bathed in natural light thanks to its triple aspect outlook, it also features a large gas stove for an added cosy touch. The wooden flooring continues seamlessly from the hallway and kitchen, enhancing the sense of flow throughout.
LOWER GROUND FLOOR
Cellar room 1
11'5" x 11'8" (3.48m x 3.57m)
A fantastic addition to the home, offering good head height along with light and power. Currently used as a workshop, it’s an ideal space for hobbies or additional storage. A window brings in natural light, and the original flagged floor adds a charming, authentic touch.
Cellar room 2
9'3" x 11'5" (2.84m x 3.50m)
With an original arched ceiling, this additional space benefits from light and power, making it ideal for storage. The original flagged floor continues through here, adding to the character and charm.
FIRST FLOOR
Bedroom 1
9'4" x 13'6" (2.86m x 4.12m)
A spacious double bedroom enjoying far reaching views over the countryside.
Bedroom 2
7'10" x 16'11" (2.41m x 5.17m)
A well proportioned double bedroom filled with natural light, enjoying dual aspect views towards the distant countryside.
Bedroom 3
6'9" x 12'7" (2.08m x 3.86m)
A good sized single bedroom with space for a bed and additional furniture, enhanced by charming wooden beam detailing.
Bathroom
4'7" x 8'4" (1.41m x 2.56m)
Featuring a bath with an overhead mains fed shower — complete with rainfall head and additional handheld attachment — this bathroom also includes a WC and a hand basin set within a vanity unit. A Velux window above the bath fills the room with natural light, while the monochrome colour scheme is complemented by a heated towel rail.
Landing
4'9" x 17'11" (1.46m x 5.47m)
A generous landing with a large cupboard housing the boiler and offering useful storage space, leading to all first floor rooms. There is a built in bookshelf located to one wall, along with an additional cupboard beside the bathroom ideal for toiletries. Two access hatches to the attic are also located here.
Externally
A low maintenance garden that provides a lovely spot to sit out and enjoy the peaceful, set back position of the property. The space is easy to look after, making it ideal for relaxing or outdoor dining without the upkeep of a larger garden. A dedicated parking space is located close by for added convenience.
Useful information
Tenure - Freehold.
Council tax band - (Westmorland and Furness Council).
Heating -
Internet - B4RN hyperfast internet.
Drainage -
What3Words - ///truth.stones.caused.
Anti-Money Laundering Regulations
In compliance with Government legislation, all purchasers are required to undergo identification checks under the Anti-Money Laundering (AML) Regulations once an offer on a property has been accepted. These checks are mandatory, and the purchase process cannot proceed until they are successfully completed. Failure to complete these checks will prevent the purchase from progressing.
A specialist third-party company / compliance partner will carry out these checks.
Cost:
- £42.00 (inc. VAT) for a single purchaser, or £36.00 (inc. VAT) per person for couple or group purchases (including contributions from gift-givers), provided all payments are made in a single transaction.
- The charge for purchases under a company name is £120.00 (inc. VAT).
The fee is non-refundable and must be paid before a Memorandum of Sale is issued. The cost includes obtaining relevant data, manual verifications, and monitoring as required.
- COUNCIL TAXA payment made to your local authority in order to pay for local services like schools, libraries, and refuse collection. The amount you pay depends on the value of the property.Read more about council Tax in our glossary page.
- Ask agent
- PARKINGDetails of how and where vehicles can be parked, and any associated costs.Read more about parking in our glossary page.
- Yes
- GARDENA property has access to an outdoor space, which could be private or shared.
- Yes
- ACCESSIBILITYHow a property has been adapted to meet the needs of vulnerable or disabled individuals.Read more about accessibility in our glossary page.
- Ask agent
The Globe, Burton in Kendal, LA6
Add an important place to see how long it'd take to get there from our property listings.
__mins driving to your place
Get an instant, personalised result:
- Show sellers you’re serious
- Secure viewings faster with agents
- No impact on your credit score
Affordability
Notes
Staying secure when looking for property
Ensure you're up to date with our latest advice on how to avoid fraud or scams when looking for property online.
Visit our security centre to find out moreDisclaimer - Property reference RX763436. The information displayed about this property comprises a property advertisement. Rightmove.co.uk makes no warranty as to the accuracy or completeness of the advertisement or any linked or associated information, and Rightmove has no control over the content. This property advertisement does not constitute property particulars. The information is provided and maintained by Waterhouse Estate Agents, Milnthorpe. Please contact the selling agent or developer directly to obtain any information which may be available under the terms of The Energy Performance of Buildings (Certificates and Inspections) (England and Wales) Regulations 2007 or the Home Report if in relation to a residential property in Scotland.
*This is the average speed from the provider with the fastest broadband package available at this postcode. The average speed displayed is based on the download speeds of at least 50% of customers at peak time (8pm to 10pm). Fibre/cable services at the postcode are subject to availability and may differ between properties within a postcode. Speeds can be affected by a range of technical and environmental factors. The speed at the property may be lower than that listed above. You can check the estimated speed and confirm availability to a property prior to purchasing on the broadband provider's website. Providers may increase charges. The information is provided and maintained by Decision Technologies Limited. **This is indicative only and based on a 2-person household with multiple devices and simultaneous usage. Broadband performance is affected by multiple factors including number of occupants and devices, simultaneous usage, router range etc. For more information speak to your broadband provider.
Map data ©OpenStreetMap contributors.





