2 Cedar Road, Paignton, Devon, TQ3 2DD
- SIZE
Ask agent
- SECTOR
Garage to lease
Lease details
- Lease available date:
- Ask agent
Key features
- Ground floor garage / workshop premises
- Previously used for vehicle repairs and MOT purposes
- Forecourt
- Reception, office, WC & mezzanine storage
- Approx. 2,526 sq ft (234.66 sq m) excluding mezzanine
- Positioned just off Torquay Road
- Suitable for automotive or light industrial occupiers
- New lease available
- Rent: £20,000 per annum
Description
Location
The property is situated on Cedar Road, which is just off Torquay Road, an arterial route linking Paignton and Torquay.
Description
The property comprises a ground floor garage/workshop premises, previously used for vehicle repairs and MOT purposes for many years.
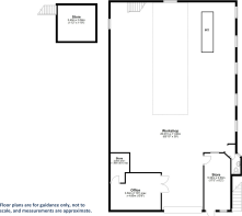
The accommodation is arranged to provide a reception area, main workshop, office, WC and mezzanine storage. The unit benefits from a high eaves workshop space and a forecourt, making it well suited to automotive or light industrial occupiers.
The total floor area is approximately 234.66 m² (2,526 sq ft), excluding the mezzanine storage. The unit has a maximum internal width of 11.71m and a maximum internal depth of 20.04m.
All measurements are approximate and provided for guidance purposes only. Interested parties are advised to satisfy themselves as to the accuracy of the information provided.
Lease
The property is available at a rent of £20,000 per annum by way of a new effective full repairing and insuring lease, with the length negotiable.
Business Rates
Rateable Value: £15,500 per annum
Energy Performance Certificate (EPC)
Rating: E (118)
Services
We understand the property benefits from mains electricity, water and drainage.
VAT
All prices and rents quoted are exclusive of VAT where applicable.
Viewing
Strictly by prior appointment with the agents Waycotts
Matty Ash or Nick Wheeldon MRICS
|
Brochures
2 Cedar Road, Paignton, Devon, TQ3 2DD
NEAREST STATIONS
Distances are straight line measurements from the centre of the postcode- Paignton Station1.0 miles
- Torquay Station1.1 miles
- Torre Station1.8 miles
Notes
Disclaimer - Property reference WAYCOTTS-5487. The information displayed about this property comprises a property advertisement. Rightmove.co.uk makes no warranty as to the accuracy or completeness of the advertisement or any linked or associated information, and Rightmove has no control over the content. This property advertisement does not constitute property particulars. The information is provided and maintained by Waycotts, Torquay. Please contact the selling agent or developer directly to obtain any information which may be available under the terms of The Energy Performance of Buildings (Certificates and Inspections) (England and Wales) Regulations 2007 or the Home Report if in relation to a residential property in Scotland.
Map data ©OpenStreetMap contributors.





