The Bell, 41 Frogmoor, High Wycombe, Buckinghamshire, HP13 5DQ
- SIZE
Ask agent
- SECTOR
Pub for sale
Description
**For Sale By Public Auction 22nd April 2026 09:30 AM To inspect the legal documents for this property go to our website to download the legal pack**
A Vacant End of Terrace Grade II Commercial Building Arranged to Provide a Ground Floor Former Public House with Six Bedrooms on the First Floor. Potential for Re-Development (Subject to Obtaining all Relevant Consents)
Tenure
Freehold
Location
The property occupies a prominent position, offering good visibility and accessibility. It is located close to a range of local shops and amenities. The nearby Chilterns Shopping Centre has planning permission for redevelopment to deliver over 300 residential units, alongside retained retail space. Buckinghamshire New University is also within close proximity. Strong transport connections are available via High Wycombe railway station.
Description
The property comprises a substantial end of terrace Grade II Listed former public house arranged over two floors. The first floor is separately accessed and has six bedrooms.
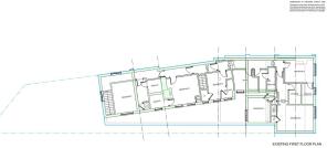
Accommodation
Ground Floor
Main Bar/Restaurant Area
Kitchen
Beer Store
Male & Female WC's
Rear access to yard
Approx. 1,607 sq ft / 149.31 sq m
First Floor
Side separate access to:
Six Bedrooms
Five En-suites (part finished)
Kitchenette
Approx. 796 sq ft / 73.98 sq m
GIA 2,403 sq ft / 223.26 sq m
Exterior
Rear parking/garden area that has a temporary structure which can be easily removed.
Note
The property is subject to VAT.
EPC Rating
Multiple
Open House Viewings:
Monday 13 April 12:00 - 12:30
Wednesday 15 April 12:00 - 12:30
Saturday 18 April 12:00 - 12:30
Monday 20 April 12:00 - 12:30
Energy Performance Certificates
EPC 1Brochures
The Bell, 41 Frogmoor, High Wycombe, Buckinghamshire, HP13 5DQ
NEAREST STATIONS
Distances are straight line measurements from the centre of the postcode- High Wycombe Station0.4 miles
- Bourne End Station4.2 miles
- Marlow Station4.2 miles
Notes
Disclaimer - Property reference 339329. The information displayed about this property comprises a property advertisement. Rightmove.co.uk makes no warranty as to the accuracy or completeness of the advertisement or any linked or associated information, and Rightmove has no control over the content. This property advertisement does not constitute property particulars. The information is provided and maintained by Auction House London, London. Please contact the selling agent or developer directly to obtain any information which may be available under the terms of The Energy Performance of Buildings (Certificates and Inspections) (England and Wales) Regulations 2007 or the Home Report if in relation to a residential property in Scotland.
Auction Fees: The purchase of this property may include associated fees not listed here, as it is to be sold via auction. To find out more about the fees associated with this property please call Auction House London, London on 020 7870 6217.
*Guide Price: An indication of a seller's minimum expectation at auction and given as a Guide Price or a range of Guide Prices. This is not necessarily the figure a property will sell for and is subject to change prior to the auction.
Reserve Price: Each auction property will be subject to a Reserve Price below which the property cannot be sold at auction. Normally the Reserve Price will be set within the range of Guide Prices or no more than 10% above a single Guide Price.
Map data ©OpenStreetMap contributors.






