
Woodstock Road, Balby, Doncaster

- PROPERTY TYPE
Semi-Detached
- BEDROOMS
3
- BATHROOMS
1
- SIZE
Ask agent
- TENUREDescribes how you own a property. There are different types of tenure - freehold, leasehold, and commonhold.Read more about tenure in our glossary page.
Freehold
Description
A LARGE 3 DOUBLE BEDROOM SEMI-DETACHED HOUSE / ATTRACTIVE POSITION WITH A MORE OPEN OUTLOOK TO THE FRONT / SPACIOUS LIVING ACCOMMODATION / LARGE OPEN PLAN DINING KITCHEN / GOOD SIZE GARDENS / GATED OFF ROAD PARKING / EARLY VIEWING RECOMMENDED //
Located on this popular roadway with a more pleasant aspect to the front, a good size 3 double bedroom semi-detached house. The property has a gas radiator central heating system, pvc double glazing and briefly comprises: An entrance hall with stairs to the first floor, spacious L-shaped lounge and dining room, open plan dining kitchen, first floor landing, 3 double bedrooms and a very large 4-piece bathroom suite. Outside there are attractive gardens and gated off road parking to the front. Well placed with access to local amenities including local shops, schools etc, plus easy access to the A1/M18 and motorway networks. Viewing is recommended to fully appreciate the size and position of this attractive house.
Accommodation - A canopy gives shelter to a composite type double glazed entrance door which leads into the property's entrance hall.
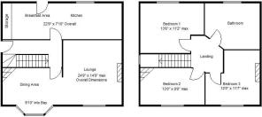
Entrance Hall - 3.81m max x 1.83m (12'6" max x 6'0") - This has a staircase to the first floor accommodation, there is a built-in understairs storage cupboard, central heating radiator, ceiling light, coving. and gives access to a large open plan L-shaped loung/dining room.
Open Plan Lounge/Dining Room - 7.54m max x 4.50m max (24'9" max x 14'9" max) - The lounge area has a broad pvc double glazed window with an outlook to the front including school playing fields in the distance. There is a feature fireplace with gas fire inset, coving, and an ornate ceiling rose. This opens directly into the dining area where there is a feature pvc double glazed bay window to the front, central heating radiator, coving and a ceiling light.
Breakfast Kitchen - 6.93m max x 2.39m (22'9" max x 7'10") - This is fitted with a range of high and low level units finished with an oak fronted cabinet door, a contrasting rolled edge work surface, a 4 ring gas hob, integrated double oven, single drainer 1½ half bowl composite type sink with a mixer tap, plumbing for an automatic washing machine and further domestic appliance recesses including room for a tall fridge/freezer. There is a tiled floor covering which continues through into the dining area.
The dining area has a broad pvc double glazed window and door giving access into the property's rear garden, a central heating radiator and a full wall of built-in cupboards which provide shelving and storage. It has a wall mounted gas fired boiler which supplies the domestic water and central heating systems.
First Floor Landing - This has an access point into the loft space and doors to the bedrooms and bathroom.
Bedroom 1 - 4.11m max x 3.40m max (13'6" max x 11'2" max) - A large double bedroom with a pvc double glazed window to the rear, a central heating radiator, coving and a ceiling light.
Bedroom 2 - 3.96m x 2.59m (13'0" x 8'6") - A good sized second double bedroom. This has a pvc double glazed window to the front, a central heating radiator, coving and a ceiling light.
Bedroom 3 - 3.66m max x 3.53m max (12'0" max x 11'7" max) - A third double bedroom, it has a pvc double glazed window to the front, a central heating radiator, coving and central ceiling light.
Bathroom - 3.35m max 3.35m max (11'0" max 11'0" max) - Very large indeed, fitted with a 4 piece suite comprising of a corner bath, separate shower enclosure, wash basin inset into a vanity unit and a low flush wc. There is tiling to the splashbacks, a central heating radiator, built-in storage and a pvc double glazed window.
Outside - The property stands on an attractive plot, it has a more open aspect to the front with school playing fields in the distance. There is a brick walled garden with ornamental lawn, shaped flower beds and borders, double gates give access to an off road parking space with a further pedestrian gate alongside.
Rear Garden - This is all enclosed, a good size, it has concrete posts and fencing to the perimeters, mainly lawned with cultivated beds and borders and a useful timber storage shed.
Agents Notes: - TENURE - Freehold.
SERVICES - All mains services are connected.
DOUBLE GLAZING - PVC double glazing, where stated. Age of units various.
HEATING - Gas radiator central heating. Age of boiler TBC.
COUNCIL TAX - Band A.
BROADBAND - Ultrafast broadband is available with download speeds of up to 1800mbps and upload speeds of up to 1000 mbps.
MOBILE COVERAGE - Coverage is available with EE, Three, 02 and Vodafone.
VIEWING - By prior telephone appointment with horton knights estate agents.
MEASUREMENTS - Please note all measurements are approximate and for guidance purposes only, with a six inch tolerance. Therefore please do NOT rely upon them for carpet measurements, furniture and the like. Similarly, the floor plan is designed as a visual reference and is NOT a scale drawing.
PROPERTY PARTICULARS - We endeavour to make our property particulars accurate and reliable, however if there is a point that is especially important to you, please contact ourselves prior to exchange of contracts, so that we may further clarify that point. We DO NOT give any warranty to the suitability of any part, including fixtures and fittings of this property, prospective buyers are kindly asked to take specific advice from their professional advisors.
OPENING HOURS - Monday - Friday 9:00 - 5:30 Saturday 9:00 - 3:00 Sunday
INDEPENDENT MORTGAGE ADVICE - With so many mortgage options to choose from, how do you know your getting the best deal? Quite simply...YOU DON'T. Talk to an expert. We offer uncomplicated impartial advice. Call us today: .
FREE VALUATIONS - If you need to sell a house then please take advantage of our FREE VALUATION service, contact our Doncaster Office for a prompt and efficient service.
Brochures
Woodstock Road, Balby, DoncasterBrochure- COUNCIL TAXA payment made to your local authority in order to pay for local services like schools, libraries, and refuse collection. The amount you pay depends on the value of the property.Read more about council Tax in our glossary page.
- Band: A
- PARKINGDetails of how and where vehicles can be parked, and any associated costs.Read more about parking in our glossary page.
- Off street
- GARDENA property has access to an outdoor space, which could be private or shared.
- Yes
- ACCESSIBILITYHow a property has been adapted to meet the needs of vulnerable or disabled individuals.Read more about accessibility in our glossary page.
- Ask agent
Energy performance certificate - ask agent
Woodstock Road, Balby, Doncaster
Add an important place to see how long it'd take to get there from our property listings.
__mins driving to your place
Get an instant, personalised result:
- Show sellers you’re serious
- Secure viewings faster with agents
- No impact on your credit score



Affordability
Notes
Staying secure when looking for property
Ensure you're up to date with our latest advice on how to avoid fraud or scams when looking for property online.
Visit our security centre to find out moreDisclaimer - Property reference 34579310. The information displayed about this property comprises a property advertisement. Rightmove.co.uk makes no warranty as to the accuracy or completeness of the advertisement or any linked or associated information, and Rightmove has no control over the content. This property advertisement does not constitute property particulars. The information is provided and maintained by Horton Knights, Doncaster. Please contact the selling agent or developer directly to obtain any information which may be available under the terms of The Energy Performance of Buildings (Certificates and Inspections) (England and Wales) Regulations 2007 or the Home Report if in relation to a residential property in Scotland.
*This is the average speed from the provider with the fastest broadband package available at this postcode. The average speed displayed is based on the download speeds of at least 50% of customers at peak time (8pm to 10pm). Fibre/cable services at the postcode are subject to availability and may differ between properties within a postcode. Speeds can be affected by a range of technical and environmental factors. The speed at the property may be lower than that listed above. You can check the estimated speed and confirm availability to a property prior to purchasing on the broadband provider's website. Providers may increase charges. The information is provided and maintained by Decision Technologies Limited. **This is indicative only and based on a 2-person household with multiple devices and simultaneous usage. Broadband performance is affected by multiple factors including number of occupants and devices, simultaneous usage, router range etc. For more information speak to your broadband provider.
Map data ©OpenStreetMap contributors.





