
Land adjacent to 1 Arbour Road, Enfield, London, EN3 7TX
- PROPERTY TYPE
Plot
- SIZE
Ask agent
Key features
- A site of approximately 2,722.19 sq ft
- Planning permission granted for a three bedroom detached house
- Planning conditions discharged (please refer to the legal pack for further information)
- Vacant
- Conveniently located for the amenities of Enfield
Description
StrapLine
Auction Sale - 21/04/2026 - To book viewings, view the legal pack and register to bid please refer to the full sales particulars on the Savills Auctions websiteOf interest to builders and developers
A site of approximately 2,722.19 sq ft with planning permission granted for a three bedroom detached house, well located for the Shopping and Recreational amenities of Enfield- Vacant
Description
A site of approximately 2,722 sq ft
Location
Located near to the junction of Arbour Road and The Ride
An extensive range of Shopping facilities can be found nearby in the centre of Enfield
Recreational amenities of Durants Park and Ponders End Park
Transport
Overound- Soutbury
National Rail- Ponders End
Planning
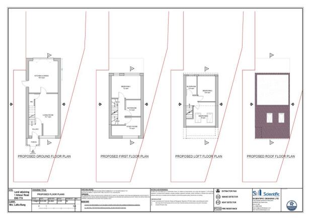
Permission (ref: 25/01415/FUL) was granted by Enfield Council on 2nd July 2025 for "Erection 2 storey detached dwelling house with habitable loft space, rear amenity space, vehicular crossover and associated hardstanding".
Proposed accommodation:
Ground Floor- Reception Room, Kitchen/Diner, WC
First Floor- Bedroom, Study, Bathroom
Loft- Two Bedrooms, Bathroom
Land adjacent to 1 Arbour Road, Enfield, London, EN3 7TX
NEAREST STATIONS
Distances are straight line measurements from the centre of the postcode- Brimsdown Station0.5 miles
- Ponders End Station0.6 miles
- Southbury Station0.7 miles
Notes
Disclaimer - Property reference 221-22220. The information displayed about this property comprises a property advertisement. Rightmove.co.uk makes no warranty as to the accuracy or completeness of the advertisement or any linked or associated information, and Rightmove has no control over the content. This property advertisement does not constitute property particulars. The information is provided and maintained by Savills Auctions, London. Please contact the selling agent or developer directly to obtain any information which may be available under the terms of The Energy Performance of Buildings (Certificates and Inspections) (England and Wales) Regulations 2007 or the Home Report if in relation to a residential property in Scotland.
Auction Fees: The purchase of this property may include associated fees not listed here, as it is to be sold via auction. To find out more about the fees associated with this property please call Savills Auctions, London on 020 3909 6715.
*Guide Price: An indication of a seller's minimum expectation at auction and given as a Guide Price or a range of Guide Prices. This is not necessarily the figure a property will sell for and is subject to change prior to the auction.
Reserve Price: Each auction property will be subject to a Reserve Price below which the property cannot be sold at auction. Normally the Reserve Price will be set within the range of Guide Prices or no more than 10% above a single Guide Price.
Map data ©OpenStreetMap contributors.





