
8, Victoria Way, Castletown

- PROPERTY TYPE
Semi-Detached
- BEDROOMS
3
- BATHROOMS
1
- SIZE
Ask agent
- TENUREDescribes how you own a property. There are different types of tenure - freehold, leasehold, and commonhold.Read more about tenure in our glossary page.
Ask agent
Key features
- Contemporary style modern three bedroom semi-detached home benefiting from a converted garage at build stage creating additional living space
- Situated within easy walking distance to the centre of the historical capital and its amenities including the Co-Op, Tesco's, restaurants, bars, Costa Coffee, harbour, swimming pool and local schools
- Picturesque walks on your doorstep across Castletown beach and out to Derbyhaven
- Constructed in 2021/22 and enjoys the remainder of a 12 year BLP warranty
- Luxury modern stylish fixtures and fittings throughout
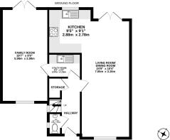
- Welcoming reception hall with a cloakroom (WC), utility room with integral access to the family room
- Impressive open plan living / dining room with a stunning ultra modern kitchen complemented by French doors to the rear garden
- 3 Double bedrooms and there is a luxury family bathroom with separate bath and shower
- Loft was configured at build stage for the provision with roof joists to create more accommodation (subject to any necessary consents)
- Attractive block paved driveway providing off road parking and access to the integral garage, large garden mainly laid to lawn with an attractive paved patio
Description
This contemporary-style modern semi-detached home was constructed in 2021/22 and benefits from the remainder of a 12-year BLP warranty. The property has been thoughtfully designed, with the garage converted at build stage to create additional living space, making it ideal for modern family living.
Situated within easy walking distance of the historic capital, the home is perfectly positioned to enjoy a wide range of amenities including shops such as Co-Op and Tesco, restaurants, bars, Costa Coffee, the harbour, swimming pool and local schools. Beautiful coastal walks are also on the doorstep, stretching across Castletown beach and out towards Derbyhaven.
The accommodation is finished to a high standard throughout, featuring luxury modern fixtures and fittings. A welcoming reception hall provides access to a cloakroom (WC) and a utility room, which in turn leads through to a versatile family room.
The heart of the home is the impressive open-plan living and dining area, incorporating a stunning ultra-modern kitchen. French doors open directly onto the rear garden, creating a bright and sociable space ideal for both everyday living and entertaining.
To the first floor are three double bedrooms, served by a luxury family bathroom complete with both a separate bath and shower.
The loft has been configured at build stage with suitable joists direction, offering excellent potential to create additional accommodation, subject to the necessary consents.
Externally, the property benefits from an attractive block-paved driveway providing off-road parking and access to the integral garage. The generous rear garden is mainly laid to lawn and complemented by an attractive paved patio area—perfect for outdoor dining and relaxation.
This superb home offers contemporary living, flexibility and a prime location within one of the Island’s most desirable areas.
Inclusions All fitted floor coverings, blinds, curtains and light fittings
Appliances Oven and 4 ring hob
Tenure Freehold
Rates Treasury tel -
Heating Gas
Windows uPVC double glazing
- COUNCIL TAXA payment made to your local authority in order to pay for local services like schools, libraries, and refuse collection. The amount you pay depends on the value of the property.Read more about council Tax in our glossary page.
- Ask agent
- PARKINGDetails of how and where vehicles can be parked, and any associated costs.Read more about parking in our glossary page.
- Yes
- GARDENA property has access to an outdoor space, which could be private or shared.
- Yes
- ACCESSIBILITYHow a property has been adapted to meet the needs of vulnerable or disabled individuals.Read more about accessibility in our glossary page.
- Ask agent
Energy performance certificate - ask agent
8, Victoria Way, Castletown
Add an important place to see how long it'd take to get there from our property listings.
__mins driving to your place
Get an instant, personalised result:
- Show sellers you’re serious
- Secure viewings faster with agents
- No impact on your credit score
Affordability
Notes
Staying secure when looking for property
Ensure you're up to date with our latest advice on how to avoid fraud or scams when looking for property online.
Visit our security centre to find out moreDisclaimer - Property reference 7205. The information displayed about this property comprises a property advertisement. Rightmove.co.uk makes no warranty as to the accuracy or completeness of the advertisement or any linked or associated information, and Rightmove has no control over the content. This property advertisement does not constitute property particulars. The information is provided and maintained by Garforth Gray, Isle of Man. Please contact the selling agent or developer directly to obtain any information which may be available under the terms of The Energy Performance of Buildings (Certificates and Inspections) (England and Wales) Regulations 2007 or the Home Report if in relation to a residential property in Scotland.
*This is the average speed from the provider with the fastest broadband package available at this postcode. The average speed displayed is based on the download speeds of at least 50% of customers at peak time (8pm to 10pm). Fibre/cable services at the postcode are subject to availability and may differ between properties within a postcode. Speeds can be affected by a range of technical and environmental factors. The speed at the property may be lower than that listed above. You can check the estimated speed and confirm availability to a property prior to purchasing on the broadband provider's website. Providers may increase charges. The information is provided and maintained by Decision Technologies Limited. **This is indicative only and based on a 2-person household with multiple devices and simultaneous usage. Broadband performance is affected by multiple factors including number of occupants and devices, simultaneous usage, router range etc. For more information speak to your broadband provider.
Map data ©OpenStreetMap contributors.






