
The Street, Aylmerton, Norwich

- PROPERTY TYPE
Detached Bungalow
- BEDROOMS
3
- BATHROOMS
1
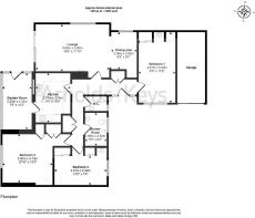
- SIZE
1,402 sq ft
130 sq m
- TENUREDescribes how you own a property. There are different types of tenure - freehold, leasehold, and commonhold.Read more about tenure in our glossary page.
Freehold
Key features
- No onward chain
- Beautifully proportioned
- Well presented
- Three bedrooms
- Garden room overlooking rear garden
- Attractive gardens
- Garage and off-road parking
- Oil fired central heating
Description
The Village of Aylmerton is set twixt the principal towns of Sheringham and Cromer and offers a well-respected Inn and local shop. The National Trust's Felbrigg Hall is just a short stroll away offering beautiful woodland walks.
An ideal home for those seeking a Village life but within easy reach of the Coast.
Entrance Porch Canopy - With part glazed door and side panels opening to:
Entrance Hall - Built in store cupboard, two radiators, two wall light points.
Lounge - A generous room with two aspects including sliding patio doors to the rear garden and a window to the side. Feature exposed brick wall with stone mantle and provision for electric stove, provision for TV, radiator. Wide archway opening to:
Dining Area - Radiator, window to side aspect.
Kitchen - Comprehensive range of wood faced base and wall cabinets with laminated work surfaces and tiled splashbacks. Inset electric hob with filter hood above, integrated electric oven, inset stainless steel sink unit, provision for washing machine, window and part glazed door to:
Garden Room - With full width UPVC windows and door opening to rear garden. Tiled floor, fitted storage cupboards.
Bedroom 1 - Window to front aspect, radiator, fitted wardrobe cupboard, vanity washbasin with cupboards beneath, tiled shower enclosure with electric shower.
Bedroom 2 - Triple built in wardrobe cupboard with store cupboards above, radiator, window to rear aspect.
Bedroom 3 - Two fitted double wardrobe cupboards with store cupboards above, vanity wash basin with cupboards beneath, access to roof space, radiator, window to front aspect.
Shower Room - Modern suite of level entry shower enclosure with mixer shower and glazed screen, vanity wash basin with cupboards beneath, close coupled w.c., bidet, wall tiling, heated towel rail, window to front aspect.
Cloakroom - Wash basin, close coupled w.c., wall tiling, radiator, window to front aspect.
Outside - Attached brick built GARAGE: With electric roller door, floor mounted oil fired boiler, electric service meters, power points. Timber SUMMER HOUSE.
Gardens - The property is approached over a brick weave driveway leading to the garage and providing additional off-road parking. A gate then leads to the fully enclosed rear garden which enjoys a southerly aspect and is neatly arranged with a generous lawned area interspersed with mature trees and shrubs. There is a paved patio immediately at the rear, also enjoying a southerly aspect.
Agents Note - The property is freehold, has mains electricity, water and drainage are connected. The property has a Council, Tax Rating of Band D.
Brochures
The Street, Aylmerton, NorwichBrochure- COUNCIL TAXA payment made to your local authority in order to pay for local services like schools, libraries, and refuse collection. The amount you pay depends on the value of the property.Read more about council Tax in our glossary page.
- Band: D
- PARKINGDetails of how and where vehicles can be parked, and any associated costs.Read more about parking in our glossary page.
- Garage
- GARDENA property has access to an outdoor space, which could be private or shared.
- Yes
- ACCESSIBILITYHow a property has been adapted to meet the needs of vulnerable or disabled individuals.Read more about accessibility in our glossary page.
- Ask agent
The Street, Aylmerton, Norwich
Add an important place to see how long it'd take to get there from our property listings.
__mins driving to your place
Get an instant, personalised result:
- Show sellers you’re serious
- Secure viewings faster with agents
- No impact on your credit score
Affordability
Notes
Staying secure when looking for property
Ensure you're up to date with our latest advice on how to avoid fraud or scams when looking for property online.
Visit our security centre to find out moreDisclaimer - Property reference 34585827. The information displayed about this property comprises a property advertisement. Rightmove.co.uk makes no warranty as to the accuracy or completeness of the advertisement or any linked or associated information, and Rightmove has no control over the content. This property advertisement does not constitute property particulars. The information is provided and maintained by Arnolds Keys, Coastal. Please contact the selling agent or developer directly to obtain any information which may be available under the terms of The Energy Performance of Buildings (Certificates and Inspections) (England and Wales) Regulations 2007 or the Home Report if in relation to a residential property in Scotland.
*This is the average speed from the provider with the fastest broadband package available at this postcode. The average speed displayed is based on the download speeds of at least 50% of customers at peak time (8pm to 10pm). Fibre/cable services at the postcode are subject to availability and may differ between properties within a postcode. Speeds can be affected by a range of technical and environmental factors. The speed at the property may be lower than that listed above. You can check the estimated speed and confirm availability to a property prior to purchasing on the broadband provider's website. Providers may increase charges. The information is provided and maintained by Decision Technologies Limited. **This is indicative only and based on a 2-person household with multiple devices and simultaneous usage. Broadband performance is affected by multiple factors including number of occupants and devices, simultaneous usage, router range etc. For more information speak to your broadband provider.
Map data ©OpenStreetMap contributors.







