Pows Court, High Street, Midsomer Norton, Somerset

- PROPERTY TYPE
Flat
- BEDROOMS
1
- SIZE
Ask agent
Key features
- 20 May LIVE ONLINE AUCTION
- Ideal buy to let investment
- Ground floor one-bedroom flat
- Let producing £7,176 per annum
- Central location in Midsomer Norton
Description
A ground floor one-bedroom self-contained flat, situated a highly convenient and central location in Midsomer Norton. The property is currently let producing £598 pcm (£7,176 per annum) and would make an ideal continued rental investment.
For Sale By Auction - This property is due to feature in our online auction on 20 May 2026 at 6.00pm. Bidding is via proxy, telephone or online remote bidding.
Viewings - By appointment.
Summary - GROUND FLOOR ONE-BEDROOM FLAT - LET PRODUCING £7,176 PA
Description - A superb investment opportunity comprising a ground floor one-bedroom self-contained flat, ideally positioned in the heart of Midsomer Norton.
The property is currently let and generating an attractive rental income of £598 pcm (£7,176 per annum), making it a ready-made investment for landlords seeking immediate returns.
Conveniently located close to local amenities, transport links, and the town centre, the property is perfectly suited for continued rental use.
Location - The property is situated on the north side of the High Street in Midsomer Norton. A wide range of shops and amenities are readily available and excellent transport links are provided to Bristol via the A37.
Tenancy Details - We understand the property is let on an AST dated 22 October 2022 at a current rent of £598 pcm (£7,176 per annum). Please refer to the legal pack for a full copy of the tenancy agreement.
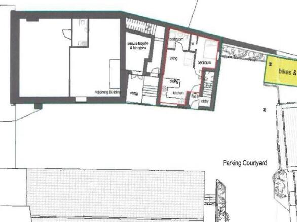
Accommodation - Approx. 30 m² (measurement taken from EPC)
We understand the property comprises an open-plan Kitchen/Living Room, Bedroom and Bathroom.
Notes - Maggs & Allen have not internally inspected or measured the property. The accommodation details and photographs have been taken from historic marketing particulars and the floor plan has been taken from the lease held at Land Registry. Interested parties are to conduct their own investigations with regards to the extent of the property and are deemed to bid accordingly.
Tenure - The property is for sale on a leasehold basis with approximately 111 years remaining. Please refer to the online legal pack for a full copy of the leasehold title.
Ground Rent - We understand the current ground rent payable is £10 per year. Please refer to the legal pack for confirmation and details of any future ground rent increases.
Completion - Completion for this lot will be 4 weeks from exchange of contracts or sooner by mutual agreement.
Energy Performance Certificate (Epc) - Rating: C
Letting - What Can Maggs & Allen Achieve For You? - Maggs & Allen's experienced letting team are happy to discuss the rental of this property and can advise on maximising the investment. We offer Full Management, Let Only and Rent Collection Services. Contact Jessica Archer and her team on or email .
Auction Or Bridging Finance Required? - Do you need a mortgage or loan quickly? Maggs & Allen have specialist Independent Brokers who can arrange residential and commercial finance on all types of property. Contact the Auction Team today to be put through to our mortgage and loan experts on or email
Buyer's Premium - Please be advised that all purchasers are subject to a £1,800 plus VAT (£2,160 inc VAT) buyer’s premium payable upon exchange of contracts.
*Guide Price - Guide Prices are provided as an indication of each seller's minimum expectation. They are not necessarily figures which a property will sell for and may change at any time prior to the auction. Each property will be offered subject to Reserve Price (a figure below which the Auctioneer cannot sell the property during the auction) which we expect will be set within the Guide Range or no more than 10% above a single figure Guide.
Reserve Price - The seller's minimum acceptable price at auction and the figure below which the auctioneer cannot sell. The reserve price is not disclosed and remains confidential between the seller and the auctioneer. Both the guide price and the reserve price can be subject to change up to and including the day of the auction.
Proxy, Telephone & Online Remote Bidding - The auction will be held online via live video stream with buyers able to bid via telephone, online or by submitting a proxy bid. You will need to complete our remote bidding form, which is available to download from our website. The completed form, ID (driving licence or passport and a recent utility bill stating the home address of the purchaser) and a bank transfer for the Preliminary Deposit must be received no later than 24 hours before the date of the auction.
Preliminary Deposits - The Preliminary Deposit required for each lot you wish to bid for is £5,000.
If your bid is successful, the balance of the deposit monies and Buyer’s Premium (£1,800 plus VAT) must be transferred to our client account within 24 hours of the auction sale. If you are unsuccessful at the auction, your Preliminary Deposit will be returned to you within 5 working days.
Rental Estimates - All rental estimates are provided in good faith. They should be verified by your own professional advisors prior to a commitment to purchase.
Brochures
Pows Court, High Street, Midsomer Norton, Somerset- COUNCIL TAXA payment made to your local authority in order to pay for local services like schools, libraries, and refuse collection. The amount you pay depends on the value of the property.Read more about council Tax in our glossary page.
- Ask agent
- PARKINGDetails of how and where vehicles can be parked, and any associated costs.Read more about parking in our glossary page.
- Ask agent
- GARDENA property has access to an outdoor space, which could be private or shared.
- Ask agent
- ACCESSIBILITYHow a property has been adapted to meet the needs of vulnerable or disabled individuals.Read more about accessibility in our glossary page.
- Ask agent
Energy performance certificate - ask agent
Pows Court, High Street, Midsomer Norton, Somerset
Add an important place to see how long it'd take to get there from our property listings.
__mins driving to your place
Get an instant, personalised result:
- Show sellers you’re serious
- Secure viewings faster with agents
- No impact on your credit score
About Maggs & Allen, Auction, Commercial & Investment
60 Northumbria Drive, Henleaze, Bristol, BS9 4HW



Affordability
Notes
Staying secure when looking for property
Ensure you're up to date with our latest advice on how to avoid fraud or scams when looking for property online.
Visit our security centre to find out moreDisclaimer - Property reference 34589223. The information displayed about this property comprises a property advertisement. Rightmove.co.uk makes no warranty as to the accuracy or completeness of the advertisement or any linked or associated information, and Rightmove has no control over the content. This property advertisement does not constitute property particulars. The information is provided and maintained by Maggs & Allen, Auction, Commercial & Investment. Please contact the selling agent or developer directly to obtain any information which may be available under the terms of The Energy Performance of Buildings (Certificates and Inspections) (England and Wales) Regulations 2007 or the Home Report if in relation to a residential property in Scotland.
Auction Fees: The purchase of this property may include associated fees not listed here, as it is to be sold via auction. To find out more about the fees associated with this property please call Maggs & Allen, Auction, Commercial & Investment on 0117 463 0249.
*Guide Price: An indication of a seller's minimum expectation at auction and given as a Guide Price or a range of Guide Prices. This is not necessarily the figure a property will sell for and is subject to change prior to the auction.
Reserve Price: Each auction property will be subject to a Reserve Price below which the property cannot be sold at auction. Normally the Reserve Price will be set within the range of Guide Prices or no more than 10% above a single Guide Price.
*This is the average speed from the provider with the fastest broadband package available at this postcode. The average speed displayed is based on the download speeds of at least 50% of customers at peak time (8pm to 10pm). Fibre/cable services at the postcode are subject to availability and may differ between properties within a postcode. Speeds can be affected by a range of technical and environmental factors. The speed at the property may be lower than that listed above. You can check the estimated speed and confirm availability to a property prior to purchasing on the broadband provider's website. Providers may increase charges. The information is provided and maintained by Decision Technologies Limited. **This is indicative only and based on a 2-person household with multiple devices and simultaneous usage. Broadband performance is affected by multiple factors including number of occupants and devices, simultaneous usage, router range etc. For more information speak to your broadband provider.
Map data ©OpenStreetMap contributors.



