
Rectory Close, Farnham Royal, SL2

- PROPERTY TYPE
Link Detached House
- BEDROOMS
3
- BATHROOMS
2
- SIZE
Ask agent
- TENUREDescribes how you own a property. There are different types of tenure - freehold, leasehold, and commonhold.Read more about tenure in our glossary page.
Freehold
Key features
- BEAUTIFULLY PRESENTED THREE BEDROOM EXTENDED LINK DETACHED
- STUNNING FAMILY/DINING AREA/KITCHEN WITH SPACE FOR ALL OF THE FAMILY TO ENJOY
- SITUATED IN A QUIET CUL-DE-SAC IN FARNHAM ROYAL
- LARGE PRIVATE GARDEN PLUS GARAGE OWN DRIVE
- PLANNING GRANTED FOR A LARGE EXTENSION
Description
This beautifully presented and extended link detached house comes to the market highly recommended as it is beautifully presented with both great sized and light, airy accommodation throughout, which extends to over 1500 square ft.
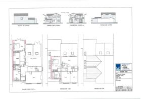
In 2024, planning permission was granted to add a part single/part two storey side/rear extension, which if built would provide a study, shower room, playroom and bedroom on the ground floor, plus a further bedroom and bathroom upstairs. See photos or the 2nd floorplan, to see a copy of the plans.
It's best feature is the stunning 23ft x 16ft kitchen/dining area which offers extensive fitted units, granite work surfaces, full range of integral appliances, a centre isle with breakfast bar plus space for a large dining table, while also offering great views of the garden. There is also enough space to house an American sized fridge freezer.
Also on the ground floor is a double aspect 17'1 x 11'11 living room with feature fireplace, a utility room and a shower room. High quality engineered wooden flooring features in the kitchen/dining area and also the hallway.
Upstairs are three lovely light and airy bedrooms, one being a twin aspect and an impressive 17'2 x 10'3 and another offering a lovely dual aspect. Even the smallest bedroom is over 12ft. A modern and contemporary styled bathroom completes the internal accommodation, which includes a panel bath with shower over and screen.
The South West facing rear garden is laid to lawn with flower borders, has a patio, children's play shed plus a play area. This area is very well kept and is both an excellent size and private. To the front is a driveway with ample off street parking and a single garage.
This quiet cul-de-sac location which is walking distance to St Mary's C of E Primary School, Farnham Royal's amenities plus giving quick access to the M4, M40 and M25.
Brochures
Brochure 1Brochure 2- COUNCIL TAXA payment made to your local authority in order to pay for local services like schools, libraries, and refuse collection. The amount you pay depends on the value of the property.Read more about council Tax in our glossary page.
- Band: E
- PARKINGDetails of how and where vehicles can be parked, and any associated costs.Read more about parking in our glossary page.
- Yes
- GARDENA property has access to an outdoor space, which could be private or shared.
- Yes
- ACCESSIBILITYHow a property has been adapted to meet the needs of vulnerable or disabled individuals.Read more about accessibility in our glossary page.
- Ask agent
Rectory Close, Farnham Royal, SL2
Add an important place to see how long it'd take to get there from our property listings.
__mins driving to your place
Get an instant, personalised result:
- Show sellers you’re serious
- Secure viewings faster with agents
- No impact on your credit score
Affordability
Notes
Staying secure when looking for property
Ensure you're up to date with our latest advice on how to avoid fraud or scams when looking for property online.
Visit our security centre to find out moreDisclaimer - Property reference 27172479. The information displayed about this property comprises a property advertisement. Rightmove.co.uk makes no warranty as to the accuracy or completeness of the advertisement or any linked or associated information, and Rightmove has no control over the content. This property advertisement does not constitute property particulars. The information is provided and maintained by Hilton King & Locke, Farnham Common. Please contact the selling agent or developer directly to obtain any information which may be available under the terms of The Energy Performance of Buildings (Certificates and Inspections) (England and Wales) Regulations 2007 or the Home Report if in relation to a residential property in Scotland.
*This is the average speed from the provider with the fastest broadband package available at this postcode. The average speed displayed is based on the download speeds of at least 50% of customers at peak time (8pm to 10pm). Fibre/cable services at the postcode are subject to availability and may differ between properties within a postcode. Speeds can be affected by a range of technical and environmental factors. The speed at the property may be lower than that listed above. You can check the estimated speed and confirm availability to a property prior to purchasing on the broadband provider's website. Providers may increase charges. The information is provided and maintained by Decision Technologies Limited. **This is indicative only and based on a 2-person household with multiple devices and simultaneous usage. Broadband performance is affected by multiple factors including number of occupants and devices, simultaneous usage, router range etc. For more information speak to your broadband provider.
Map data ©OpenStreetMap contributors.






