
Land adjoining 57 Lytchet Way, Enfield, EN3 5XS
- PROPERTY TYPE
Land
- SIZE
Ask agent
Key features
- To be offered on Wednesday 22 April
- A site of approximately 4,189 sq ft
- Planning permission granted for three houses (1 x four bedroom and 2 x three bedroom)
- Planning conditions discharged
- Vacant possession
- Conveniently located for the amenities of Enfield
Description
StrapLine
Auction Sale - 21/04/2026 - To book viewings, view the legal pack and register to bid please refer to the full sales particulars on the Savills Auctions websiteOf interest to builders and developers
A site of approximately 4,189 sq ft with planning permission granted for the construction of three houses ( 1 x four bedroom and 2 x three bedroom), well located for the Shopping and Recreational amenities of Enfield- Vacant
Location
The site is located between Lytchet Way and Moorfield Road
An extensive range of Shopping facilities are easily accessible in the centre of Enfield
Recreational amenities of Albany Park and Durants Park are within close distance
Transport
Overground- Southbury
National Rail- Brimsdown
Planning
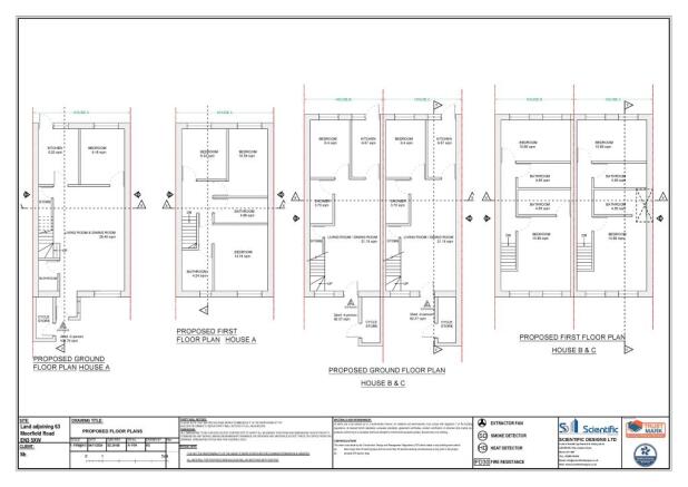
Permission (Ref: 24/02998/FUL) was granted by Enfield Council on 13th December 2024 for "Redevelopment of site by the erection of 3 x two storey dwelling houses".
Proposed accommodation:
House A (approximately 1,171 sq ft):
Ground Floor- Reception Room, Bedroom, Kitchen, Bathroom
First Floor- Three Bedrooms (one en-suite), Bathroom
House B (approximately 994 sq ft):
Ground Floor- Reception Room, Bedroom, Kitchen, Shower
First Floor- Two Bedrooms (one en-suite), Bathroom
House C (approximately 994 sq ft):
Ground Floor- Reception Room, Bedroom, Kitchen, Shower
First Floor- Two Bedrooms (one en-suite), Bathroom
Land adjoining 57 Lytchet Way, Enfield, EN3 5XS
NEAREST STATIONS
Distances are straight line measurements from the centre of the postcode- Turkey Street Station0.8 miles
- Brimsdown Station0.9 miles
- Southbury Station0.9 miles
Notes
Disclaimer - Property reference 221-22205. The information displayed about this property comprises a property advertisement. Rightmove.co.uk makes no warranty as to the accuracy or completeness of the advertisement or any linked or associated information, and Rightmove has no control over the content. This property advertisement does not constitute property particulars. The information is provided and maintained by Savills Auctions, London. Please contact the selling agent or developer directly to obtain any information which may be available under the terms of The Energy Performance of Buildings (Certificates and Inspections) (England and Wales) Regulations 2007 or the Home Report if in relation to a residential property in Scotland.
Auction Fees: The purchase of this property may include associated fees not listed here, as it is to be sold via auction. To find out more about the fees associated with this property please call Savills Auctions, London on 020 3909 6715.
*Guide Price: An indication of a seller's minimum expectation at auction and given as a Guide Price or a range of Guide Prices. This is not necessarily the figure a property will sell for and is subject to change prior to the auction.
Reserve Price: Each auction property will be subject to a Reserve Price below which the property cannot be sold at auction. Normally the Reserve Price will be set within the range of Guide Prices or no more than 10% above a single Guide Price.
Map data ©OpenStreetMap contributors.





