
Trewint, Launceston, Cornwall, PL15
- PROPERTY TYPE
Plot
- SIZE
Ask agent
Key features
- Site located in sought after village position close to open moorland
- Planning in principal for rural exemption site
- Up to 9 homes with no less than 50% low cost affordable
- Approximate plot size of 1.3 acres of level land with
- mature hedge boundaries
- Excellent small scale development opportunity
- Services available in the vicinity
Description
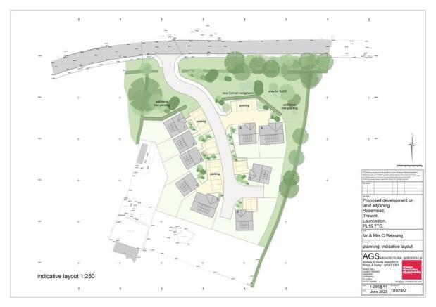
The site is located in a sought after village position close to open moorland and benefits from planning permission in principle, granted in February 2024, for up to nine rural exception homes. Extending to approximately 1.3 acres of level pastureland, the plot forms part of a single field and is enclosed by mature hedge boundaries. It offers an excellent small scale development opportunity, with services available nearby and current access taken from the entrance at Rosemead.
LOCATION
The attractive Moorland village of Altarnun is within one mile, boasting amenities including a Post Office facility, village shop, County Primary School and Parish Church famously known as the "Cathedral On The Moor". From this property miles upon miles of walks can be enjoyed over Bodmin Moor. The ancient former market town of Launceston lies within 10 miles to the East and offers a range of shopping, commercial, education and recreation facilities with the convenience of the A30 trunk road giving access to the city of Truro and West Cornwall in one direction and the city of Exeter with M5 links in the opposite direction.
PLANNING
Planning in principle has been granted under Application Number PA24/00998 dated February 2024 for the proposed erection of up to 9 dwellings (minimum 8) as a rural exceptions site. This will mean no less than 5 low cost affordable homes will have to be part of the scheme with 4 open market. All plans and supporting documents are available on Cornwall Council’s planning portal.
SERVICES
Mains water is available in the far corner of the plot. Electricity and BT connection is available by the road. Main sewerage is understood to be in the vicinity.
Purchasers must make their own enquiries regarding the availability and cost of connection to any main services required for the development.
ARCHITECTS DETAILS
AGS Architectural services LTD, For the attention of Mr Andrew Soady, Dinkie Dell, Lower Tremar, Liskeard, Cornwall, PL14 5EU.
CIL LIABITY
Please note the proposed development set out in this application will be liable for a charge under the Community Infrastructure Levy (CIL) Regulation 2021 (as amended). The amount of the liability will be calculated when the Technical Details Consent application is determined. Further information about CIL is available at:
AGENTS NOTE
The estate road and any service media including utilities must be brought to the boundary off the retained land where the seller will retain a right of access without ransom.
VIEWINGS STRICTLY BY APPOINTMENT ONLY
Please ring to view this property and check availability before incurring travel time/costs. Full details of all our properties are available on our website
TENURE
Freehold
DIRECTIONS
What3Words – notion.fires.including
EASEMENTS, WAYLEAVES AND RIGHTS OF WAY
The property is offered for sale subject to and with the benefit of all existing easements, wayleaves, rights of way and any other matters contained within the registered title.
BOUNDARIES
Any purchaser shall be deemed to have full knowledge of all boundaries. Neither the vendor nor the vendor’s agents shall be responsible for defining the boundaries or their ownership. Any disputes arising shall be referred to the vendor’s agents whose decision shall be final.
Brochures
ParticularsTrewint, Launceston, Cornwall, PL15
NEAREST STATIONS
Distances are straight line measurements from the centre of the postcode- Liskeard Station10.7 miles
Notes
Disclaimer - Property reference LAU240164. The information displayed about this property comprises a property advertisement. Rightmove.co.uk makes no warranty as to the accuracy or completeness of the advertisement or any linked or associated information, and Rightmove has no control over the content. This property advertisement does not constitute property particulars. The information is provided and maintained by Kivells, Launceston. Please contact the selling agent or developer directly to obtain any information which may be available under the terms of The Energy Performance of Buildings (Certificates and Inspections) (England and Wales) Regulations 2007 or the Home Report if in relation to a residential property in Scotland.
Map data ©OpenStreetMap contributors.








