
Lord Street, REDCAR
- PROPERTY TYPE
Commercial Property
- BEDROOMS
3
- BATHROOMS
1
- SIZE
Ask agent
Key features
- AUCTION SALE
- 19 May 2026
- ***FOR SALE BY AUCTION***
- EPC Rating - E
- VIEWINGS CONTACT THE NORTHERN AUCTION CENTRE
Description
SUMMARY
AUCTION SALE 19 May 2026 - Ground floor vacant retail shop.
With a three-bedroom self-contained flat above.
DESCRIPTION
***FOR SALE BY AUCTION***VARIOUS BIDDING OPTIONS AVAILABLE: ONLINE, TELEPHONE, PROXY OR IN PERSON AT THE GRAND CONNAUGHT ROOMS, GREAT QUEEN STREET, 61-65, COVENT GARDEN, LONDON, WC2B 5DA *** 19TH MAY 2026***9.30 am START***CONTACT THE AUCTIONEERS TO REGISTER NOW***
Description:
A vacant, former commercial premises with a three-bedroom, self-contained flat above. The property is in need of refurbishment throughout and offers scope to be redeveloped into a larger retail premises. Please refer to the legal pack, in particular the lease with regards to any restrictions in place as to what would be classed as permitted use of the property. Lord Street runs to the rear of the main High Street with a mix of other residential properties, retail shops and services. Redcar is a seaside resort along the Yorkshire Coast with good transport links, with nearby trains and bus services. It offers a variety of tourist attractions including museums, leisure facilities, traditional amusement arcades and racecourse nearby.
Please Note: The properties were previously referred to as No.s 57 & 59 Lord Strett
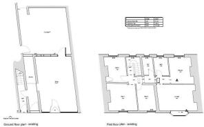
Current Accommodation
Flat
Ground Floor: Entrance & Stairs.
First Floor: Landing, Lounge, Kitchen Area, Three Bedrooms, Bathroom & Separate Wc.
Shop:
Ground Floor: Sales Area.
External: Access.
Tenure:
Leasehold: 999 year lease. Refer to the legal pack for further details.
EPC Ratings:
Flat: E & Shop: D.
Flat Council Tax Band: A
Viewings:
William H Brown Northern Auctions, 26 Market Place, Pontefract, West Yorkshire, WF8 1AT Tel. (Option 1)
***REDUCED GUIDE PRICE NOW: £30,000***
Important Notice:
For each Lot, a contract documentation fee of £1800 (inclusive of VAT) is payable to the Auctioneers by the buyer. The seller may charge additional fees payable upon completion. If applicable, such fees are detailed within the Special Conditions of Sale. Buyers are deemed to bid in full knowledge of this.
The Guide Price quoted must not be relied upon by prospective purchasers as a valuation or assessment of value of the property. It is intended to provide purchasers with an indication of the region at which the reserve may be set at the time of going to press. The guide price may be subject to variation and interested parties are advised to make regular checks for variations and should be aware that the reserve price may be either below or above the quoted guide price.
Prospective purchasers should also be aware that the eventual sale price may be above or below the guide level dependent upon competition, and should therefore not presume the guide to be indicative of the final expected sale price or the price the property is available at.
**PLEASE CONTACT THE AUCTIONEERS AT TO REQUEST A COPY OF THE LEGAL PACK, IF THIS IS AVAILABLE WE CAN EMAIL IT OVER TO YOU**
When setting the guide price, the auctioneers have given consideration to the seller’s instructions in respect of their indicated reserve price at the time of instruction. The reserve price, (the level below which the property will not be sold), remains confidential between the seller and the auctioneer. The guide price therefore, is intended to indicate the region at which the reserve price is intended to be set. The seller will confirm their final reserve price close to the auction date and if appropriate the auctioneers may adjust the guide price to reflect this.
Whilst the auctioneers make every effort to ensure the safety and security of viewers at properties, we have not carried out a detailed Health & Safety inspection of properties in our auctions and cannot therefore guarantee the safety and security of viewers.
Prospective purchasers and bidders attend properties entirely at their own risk. Particular care should be taken when accessing cellars, attics, exterior grounds and outbuildings and boundaries. All non-conducted inspections of vacant sites should be made in daylight hours only and entry into such sites is entirely at the viewers risk.
Registration for bidding online will close the Friday before the auction sale. Please ensure you register and submit all the details and documents required in time. Without authorisation to bid prior to the sale you will be unable to bid in the auction.
1. MONEY LAUNDERING REGULATIONS: Intending purchasers will be asked to produce identification documentation at a later stage and we would ask for your co-operation in order that there will be no delay in agreeing the sale.
2. General: While we endeavour to make our sales particulars fair, accurate and reliable, they are only a general guide to the property and, accordingly, if there is any point which is of particular importance to you, please contact the office and we will be pleased to check the position for you, especially if you are contemplating travelling some distance to view the property.
3. Photographs and Measurements: Some images may have been taken by a wide angled lens camera. These approximate room sizes are only intended as general guidance. You must verify the dimensions carefully before ordering carpets or any built-in furniture.
4. Services: Please note we have not tested the services or any of the equipment or appliances in this property, accordingly we strongly advise prospective buyers to commission their own survey or service reports before finalising their offer to purchase.
5. THESE PARTICULARS ARE ISSUED IN GOOD FAITH BUT DO NOT CONSTITUTE REPRESENTATIONS OF FACT OR FORM PART OF ANY OFFER OR CONTRACT. THE MATTERS REFERRED TO IN THESE PARTICULARS SHOULD BE INDEPENDENTLY VERIFIED BY PROSPECTIVE BUYERS OR TENANTS. NEITHER SEQUENCE (UK) LIMITED NOR ANY OF ITS EMPLOYEES OR AGENTS HAS ANY AUTHORITY TO MAKE OR GIVE ANY REPRESENTATION OR WARRANTY WHATEVER IN RELATION TO THIS PROPERTY.
Brochures
Full DetailsEnergy Performance Certificates
EPCLord Street, REDCAR
NEAREST STATIONS
Distances are straight line measurements from the centre of the postcode- Redcar Central Station0.4 miles
- Redcar East Station0.7 miles
- British Steel Redcar Station2.1 miles


Notes
Disclaimer - Property reference AUC0051280. The information displayed about this property comprises a property advertisement. Rightmove.co.uk makes no warranty as to the accuracy or completeness of the advertisement or any linked or associated information, and Rightmove has no control over the content. This property advertisement does not constitute property particulars. The information is provided and maintained by William H. Brown, Northern Auction Centre. Please contact the selling agent or developer directly to obtain any information which may be available under the terms of The Energy Performance of Buildings (Certificates and Inspections) (England and Wales) Regulations 2007 or the Home Report if in relation to a residential property in Scotland.
Auction Fees: The purchase of this property may include associated fees not listed here, as it is to be sold via auction. To find out more about the fees associated with this property please call William H. Brown, Northern Auction Centre on 01302 490142.
*Guide Price: An indication of a seller's minimum expectation at auction and given as a Guide Price or a range of Guide Prices. This is not necessarily the figure a property will sell for and is subject to change prior to the auction.
Reserve Price: Each auction property will be subject to a Reserve Price below which the property cannot be sold at auction. Normally the Reserve Price will be set within the range of Guide Prices or no more than 10% above a single Guide Price.
Map data ©OpenStreetMap contributors.







