
Balcastle Crescent, Carluke

- PROPERTY TYPE
Detached
- BEDROOMS
3
- BATHROOMS
1
- SIZE
Ask agent
- TENUREDescribes how you own a property. There are different types of tenure - freehold, leasehold, and commonhold.Read more about tenure in our glossary page.
Freehold
Description
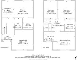
Set over two levels, the property offers generous accommodation throughout. The ground floor comprises a welcoming entrance hallway with a large storage cupboard, a bright and spacious lounge, and a convenient WC. The modern kitchen, open plan to the dining area with French doors leading to the rear garden, forms the heart of the home, while a separate utility room provides additional space for appliances.
The upper level hosts a landing with storage cupboard, a modern family bathroom, and three well-proportioned bedrooms. Two bedrooms benefit from fitted storage, while the master bedroom further enjoys an ensuite shower room.
The property is enhanced by gas central heating and double glazing and has been freshly decorated throughout with new flooring, along with newly installed WC and ensuite facilities.
Externally, the property occupies an enviable position within the development, enjoying open countryside views. To the front, there is a modest lawn and extensive chipped driveway, while the private south-facing rear garden features a generous lawn and a paved patio area.
Carluke remains a highly popular choice for commuters, offering excellent schooling, a wide range of local amenities, recreational facilities, parks, and scenic walkways. The property is within walking distance of Carluke Train Station, providing direct services to Glasgow and Edinburgh, while the nearby M74 and M8 motorways offer convenient access across the Central Belt.
Brochures
Balcastle Crescent, Carluke- COUNCIL TAXA payment made to your local authority in order to pay for local services like schools, libraries, and refuse collection. The amount you pay depends on the value of the property.Read more about council Tax in our glossary page.
- Ask agent
- PARKINGDetails of how and where vehicles can be parked, and any associated costs.Read more about parking in our glossary page.
- Yes
- GARDENA property has access to an outdoor space, which could be private or shared.
- Yes
- ACCESSIBILITYHow a property has been adapted to meet the needs of vulnerable or disabled individuals.Read more about accessibility in our glossary page.
- Ask agent
Balcastle Crescent, Carluke
Add an important place to see how long it'd take to get there from our property listings.
__mins driving to your place
Get an instant, personalised result:
- Show sellers you’re serious
- Secure viewings faster with agents
- No impact on your credit score
Affordability
Notes
Staying secure when looking for property
Ensure you're up to date with our latest advice on how to avoid fraud or scams when looking for property online.
Visit our security centre to find out moreDisclaimer - Property reference 34592745. The information displayed about this property comprises a property advertisement. Rightmove.co.uk makes no warranty as to the accuracy or completeness of the advertisement or any linked or associated information, and Rightmove has no control over the content. This property advertisement does not constitute property particulars. The information is provided and maintained by AB Properties, Lanarkshire. Please contact the selling agent or developer directly to obtain any information which may be available under the terms of The Energy Performance of Buildings (Certificates and Inspections) (England and Wales) Regulations 2007 or the Home Report if in relation to a residential property in Scotland.
*This is the average speed from the provider with the fastest broadband package available at this postcode. The average speed displayed is based on the download speeds of at least 50% of customers at peak time (8pm to 10pm). Fibre/cable services at the postcode are subject to availability and may differ between properties within a postcode. Speeds can be affected by a range of technical and environmental factors. The speed at the property may be lower than that listed above. You can check the estimated speed and confirm availability to a property prior to purchasing on the broadband provider's website. Providers may increase charges. The information is provided and maintained by Decision Technologies Limited. **This is indicative only and based on a 2-person household with multiple devices and simultaneous usage. Broadband performance is affected by multiple factors including number of occupants and devices, simultaneous usage, router range etc. For more information speak to your broadband provider.
Map data ©OpenStreetMap contributors.





