
Beech Road, Alresford

- PROPERTY TYPE
Semi-Detached
- BEDROOMS
3
- BATHROOMS
2
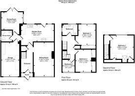
- SIZE
1,403 sq ft
130 sq m
- TENUREDescribes how you own a property. There are different types of tenure - freehold, leasehold, and commonhold.Read more about tenure in our glossary page.
Ask agent
Key features
- Extended Three Double Bedroom Home
- West Facing Garden
- Beautifully Presented Throughout
- Two Bathrooms
- Garage & Driveway Parking
- Convenient Location Within Easy Reach of Town Centre & Shops
Description
Set in a popular and quiet cul-de-sac within easy reach of Alresford Town Centre, a three bedroom semi-detached home presented in immaculate condition throughout. Extended to offer spacious and light accommodation throughout, with a very pretty, West facing garden. The entrance hall leads through to the good sized sitting room with feature fireplace. A spacious kitchen/breakfast room with door to the rear garden and a rear extension provides a further reception room, currently used as a dining room as well as a downstairs shower room and access to the garage.
Upstairs on the first floor, two good sized double bedrooms, both with fitted storage and a study as well as a family bathroom. On the second floor, the loft has been converted to offer another double bedroom with gorgeous views to the West and the countryside beyond.
The garden is laid mainly to lawn with a covered patio providing shelter and a lovely seating area. Raised beds, lawn and a shed to the rear along with a further seating area at the rear of the garden that catches the morning sun.
To the front, a mature and attractive front garden and the block paved driveway provides ample off-road parking and there is also a single garage.
SERVICES
Mains gas with gas fired central heating, mains electricity, water and drainage.
LOCAL AUTHORITY
Winchester City Council
Council Tax Band D
DIRECTIONS
From our offices in Broad Street, turn right onto West Street and then left into Jacklyns Lane. Turn left into Nursery Road and then right into Beech Road and the house is to be found on your right.
What3words: ///punctuate.directs.rezoning
Brochures
Brochure 1- COUNCIL TAXA payment made to your local authority in order to pay for local services like schools, libraries, and refuse collection. The amount you pay depends on the value of the property.Read more about council Tax in our glossary page.
- Band: D
- PARKINGDetails of how and where vehicles can be parked, and any associated costs.Read more about parking in our glossary page.
- Garage,Driveway
- GARDENA property has access to an outdoor space, which could be private or shared.
- Private garden
- ACCESSIBILITYHow a property has been adapted to meet the needs of vulnerable or disabled individuals.Read more about accessibility in our glossary page.
- Ask agent
Energy performance certificate - ask agent
Beech Road, Alresford
Add an important place to see how long it'd take to get there from our property listings.
__mins driving to your place
Get an instant, personalised result:
- Show sellers you’re serious
- Secure viewings faster with agents
- No impact on your credit score
Affordability
Notes
Staying secure when looking for property
Ensure you're up to date with our latest advice on how to avoid fraud or scams when looking for property online.
Visit our security centre to find out moreDisclaimer - Property reference S1682673. The information displayed about this property comprises a property advertisement. Rightmove.co.uk makes no warranty as to the accuracy or completeness of the advertisement or any linked or associated information, and Rightmove has no control over the content. This property advertisement does not constitute property particulars. The information is provided and maintained by Hellards Estate Agents, Alresford. Please contact the selling agent or developer directly to obtain any information which may be available under the terms of The Energy Performance of Buildings (Certificates and Inspections) (England and Wales) Regulations 2007 or the Home Report if in relation to a residential property in Scotland.
*This is the average speed from the provider with the fastest broadband package available at this postcode. The average speed displayed is based on the download speeds of at least 50% of customers at peak time (8pm to 10pm). Fibre/cable services at the postcode are subject to availability and may differ between properties within a postcode. Speeds can be affected by a range of technical and environmental factors. The speed at the property may be lower than that listed above. You can check the estimated speed and confirm availability to a property prior to purchasing on the broadband provider's website. Providers may increase charges. The information is provided and maintained by Decision Technologies Limited. **This is indicative only and based on a 2-person household with multiple devices and simultaneous usage. Broadband performance is affected by multiple factors including number of occupants and devices, simultaneous usage, router range etc. For more information speak to your broadband provider.
Map data ©OpenStreetMap contributors.








