
34 East Argyle Street, Helensburgh, G84 7RR

- PROPERTY TYPE
Flat
- BEDROOMS
1
- BATHROOMS
1
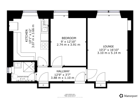
- SIZE
484 sq ft
45 sq m
- TENUREDescribes how you own a property. There are different types of tenure - freehold, leasehold, and commonhold.Read more about tenure in our glossary page.
Freehold
Key features
- Elevated ground floor position within traditional red sandstone building
- Quiet rear-facing aspect with partial water views
- Bright and spacious lounge with flexible furniture layout
- Separate fitted kitchen with dining space
- Integrated appliances included in sale
- Double bedroom with excellent built-in storage
- Modern shower room with wet wall finish
- Additional internal storage provisions
- Well-maintained communal gardens to the rear
- Central location within walking distance of Helensburgh town centre
Description
***CLOSING DATE - MONDAY 27TH APRIL @ 12 NOON *** Situated within a traditional red sandstone tenement, this attractive elevated ground floor flat at 0/1, 34 East Argyle Street offers comfortable accommodation in a highly convenient location. The property enjoys a peaceful rear-facing position, benefiting from open aspects across neighbouring properties with glimpses towards the water, creating a bright and airy living environment.
Accessed via a well-maintained communal entrance, the flat opens into a welcoming reception hallway providing access to all apartments. The generously proportioned lounge offers ample space for a three-piece suite and additional furnishings such as a desk or compact dining area, making it ideal for both relaxation and home working. The separate kitchen is fitted with a range of floor and wall-mounted units and also provides space for a small table and chairs. A selection of integrated appliances—including fridge freezer, washing machine, tumble dryer, and cooker— may be included within the sale price depending on offers made.. The well-appointed bedroom features excellent built-in over-bed storage, maximising practicality. The modern, well appointed shower room comprises a three-piece suite with low-level WC, wash hand basin, and walk-in shower, finished with contemporary wet wall panelling. Additional storage is available within the cellar, enhancing its functionality.
Externally, residents benefit from communal gardens to the rear. The building is self-factored, with a monthly levy covering maintenance of communal areas and buildings insurance. The property is ideally positioned within walking distance of the centre of Helensburgh, a highly desirable coastal town on the Firth of Clyde.
Helensburgh offers an excellent range of amenities including a variety of independent shops, supermarkets, cafés, restaurants, pubs, and leisure facilities. The town is well known for its attractive waterfront, scenic surroundings, and relaxed lifestyle. For commuters, Helensburgh benefits from excellent transport links. Regular rail services provide direct access to Glasgow, while road networks connect easily to the wider Central Belt. The area is also well served by local bus routes. Outdoor enthusiasts are well catered for, with nearby walking routes, coastal paths, and access to the natural beauty of the surrounding countryside, including Loch Lomond & The Trossachs National Park.
EPC Rating: C
- COUNCIL TAXA payment made to your local authority in order to pay for local services like schools, libraries, and refuse collection. The amount you pay depends on the value of the property.Read more about council Tax in our glossary page.
- Band: B
- PARKINGDetails of how and where vehicles can be parked, and any associated costs.Read more about parking in our glossary page.
- Ask agent
- GARDENA property has access to an outdoor space, which could be private or shared.
- Ask agent
- ACCESSIBILITYHow a property has been adapted to meet the needs of vulnerable or disabled individuals.Read more about accessibility in our glossary page.
- Ask agent
34 East Argyle Street, Helensburgh, G84 7RR
Add an important place to see how long it'd take to get there from our property listings.
__mins driving to your place
Affordability
Get an instant, personalised result:
- Show sellers you’re serious
- Secure viewings faster with agents
- No impact on your credit score
Notes
Staying secure when looking for property
Ensure you're up to date with our latest advice on how to avoid fraud or scams when looking for property online.
Visit our security centre to find out moreDisclaimer - Property reference 7446f620-87bb-43f1-8062-bbb517ebf898. The information displayed about this property comprises a property advertisement. Rightmove.co.uk makes no warranty as to the accuracy or completeness of the advertisement or any linked or associated information, and Rightmove has no control over the content. This property advertisement does not constitute property particulars. The information is provided and maintained by Clyde Property, Helensburgh. Please contact the selling agent or developer directly to obtain any information which may be available under the terms of The Energy Performance of Buildings (Certificates and Inspections) (England and Wales) Regulations 2007 or the Home Report if in relation to a residential property in Scotland.
*This is the average speed from the provider with the fastest broadband package available at this postcode. The average speed displayed is based on the download speeds of at least 50% of customers at peak time (8pm to 10pm). Fibre/cable services at the postcode are subject to availability and may differ between properties within a postcode. Speeds can be affected by a range of technical and environmental factors. The speed at the property may be lower than that listed above. You can check the estimated speed and confirm availability to a property prior to purchasing on the broadband provider's website. Providers may increase charges. The information is provided and maintained by Decision Technologies Limited. **This is indicative only and based on a 2-person household with multiple devices and simultaneous usage. Broadband performance is affected by multiple factors including number of occupants and devices, simultaneous usage, router range etc. For more information speak to your broadband provider.
Map data ©OpenStreetMap contributors.








