
22A Colvestone Crescent, Hackney, London, E8

- PROPERTY TYPE
Maisonette
- BEDROOMS
2
- BATHROOMS
1
- SIZE
Ask agent
Description
Key Features
- Lot 15 for sale by auction on 29/04/2026
- To view the property or see a virtual tour please refer to the full sales particulars on the auctioneers website
- New 125 Year Lease
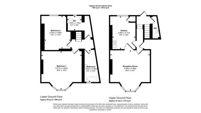
- Raised Ground Floor - Reception Room, Kitchen, WC
- Lower Ground Floor - Two Bedrooms, Bathroom, WC
- Rear Garden
- GIA approximately 100 sq m (1,076 sq ft)
- Virtual Tour available below
- Dalston Kingsland Overground Station approximately 0.2 miles to the south west
Key Locations
- Located on the south side of Colvestone Crescent to the west of its junction with St Mark's Rise
- Shops and amenities located along Kingsland High Street to the west
- Dalston Kingsland Overground Station approximately 0.2 miles to the south west
- A10 to the west
- Hackney Downs Park to the north east
Additional Information
- The Vendor will not accept offers prior to the auction
Viewings
- The property will be open for viewing on Wednesday 15th April, Saturday 18th April, Wednesday 22nd April and Saturday 25th April between 2:30 - 3:00 p.m. These are open viewing times with no need to register.
If you cannot attend the viewing you are advised to view the images and any available virtual tour on our website before bidding.
Brochures
Brochure- COUNCIL TAXA payment made to your local authority in order to pay for local services like schools, libraries, and refuse collection. The amount you pay depends on the value of the property.Read more about council Tax in our glossary page.
- Ask agent
- PARKINGDetails of how and where vehicles can be parked, and any associated costs.Read more about parking in our glossary page.
- Ask agent
- GARDENA property has access to an outdoor space, which could be private or shared.
- Yes
- ACCESSIBILITYHow a property has been adapted to meet the needs of vulnerable or disabled individuals.Read more about accessibility in our glossary page.
- Ask agent
Energy performance certificate - ask agent
22A Colvestone Crescent, Hackney, London, E8
Add an important place to see how long it'd take to get there from our property listings.
__mins driving to your place
Get an instant, personalised result:
- Show sellers you’re serious
- Secure viewings faster with agents
- No impact on your credit score
Affordability
Notes
Staying secure when looking for property
Ensure you're up to date with our latest advice on how to avoid fraud or scams when looking for property online.
Visit our security centre to find out moreDisclaimer - Property reference R260430_278. The information displayed about this property comprises a property advertisement. Rightmove.co.uk makes no warranty as to the accuracy or completeness of the advertisement or any linked or associated information, and Rightmove has no control over the content. This property advertisement does not constitute property particulars. The information is provided and maintained by Allsop, Auction. Please contact the selling agent or developer directly to obtain any information which may be available under the terms of The Energy Performance of Buildings (Certificates and Inspections) (England and Wales) Regulations 2007 or the Home Report if in relation to a residential property in Scotland.
Auction Fees: The purchase of this property may include associated fees not listed here, as it is to be sold via auction. To find out more about the fees associated with this property please call Allsop, Auction on 020 3879 5993.
*Guide Price: An indication of a seller's minimum expectation at auction and given as a Guide Price or a range of Guide Prices. This is not necessarily the figure a property will sell for and is subject to change prior to the auction.
Reserve Price: Each auction property will be subject to a Reserve Price below which the property cannot be sold at auction. Normally the Reserve Price will be set within the range of Guide Prices or no more than 10% above a single Guide Price.
*This is the average speed from the provider with the fastest broadband package available at this postcode. The average speed displayed is based on the download speeds of at least 50% of customers at peak time (8pm to 10pm). Fibre/cable services at the postcode are subject to availability and may differ between properties within a postcode. Speeds can be affected by a range of technical and environmental factors. The speed at the property may be lower than that listed above. You can check the estimated speed and confirm availability to a property prior to purchasing on the broadband provider's website. Providers may increase charges. The information is provided and maintained by Decision Technologies Limited. **This is indicative only and based on a 2-person household with multiple devices and simultaneous usage. Broadband performance is affected by multiple factors including number of occupants and devices, simultaneous usage, router range etc. For more information speak to your broadband provider.
Map data ©OpenStreetMap contributors.




