
26 Baberton Crescent, JUNIPER GREEN, EH14 5BP

- PROPERTY TYPE
Detached Bungalow
- BEDROOMS
4
- BATHROOMS
2
- SIZE
Ask agent
- TENUREDescribes how you own a property. There are different types of tenure - freehold, leasehold, and commonhold.Read more about tenure in our glossary page.
Freehold
Description
Enjoying a cul de sac setting and excellent views, this delightful home offers family sized accommodation arranged over two levels. The ground floor comprises; entrance vestibule, impressive reception hall, bay windowed sitting room with an attractive fireplace housing a gas living flame fire, dining room, substantial conservatory, breakfasting kitchen with French doors to the rear garden, modern downstairs bathroom including a separate shower, two double bedrooms – one with a bay window. Upstairs has a master bedroom with an en suite shower room and another bedroom. The house has gas central heating and double glazing. The property enjoys a lovely, enclosed and screened rear garden, grassed and with a generous patio. There is a side garden which has a green house and there is a pretty front garden. An extensive driveway leads to a single garage.
Juniper Green lies to the south west of the city centre close to Currie and Balerno. The area is ideal for commuters with the City Bypass, Curriehill Railway Station and regular buses to and from the city centre close at hand. There is a selection of local shops providing everyday requirements with a number of larger supermarkets close by including Sainsbury's at Inglis Green Road. The Gyle shopping centre and Hermiston Gait retail park are also within easy reach. Excellent leisure and recreational facilities are available locally as are both primary and secondary schools. The Riccarton campus of Heriot Watt University, the RBS HQ at Gogar Park, and the Edinburgh Business Park at South Gyle are all readily accessible, as is the central motorway network, the Forth Road Bridge and Edinburgh International Airport.
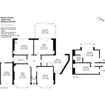
Reception Hall
Sitting room
3.81m x 5.18m
Dining room
3.33m x 4.32m
Conservatory
3.38m x 4.62m
Breakfasting kitchen
3.94m x 6.07m
Downstairs bathroom
Master bedroom
3.94m x 5.46m
En suite shower room
Bedroom 2
3.66m x 4.57m
Bedroom 3
3.33m x 4.29m
Bedroom 4
2.41m x 5.49m
Brochures
Brochure- COUNCIL TAXA payment made to your local authority in order to pay for local services like schools, libraries, and refuse collection. The amount you pay depends on the value of the property.Read more about council Tax in our glossary page.
- Band: F
- PARKINGDetails of how and where vehicles can be parked, and any associated costs.Read more about parking in our glossary page.
- Yes
- GARDENA property has access to an outdoor space, which could be private or shared.
- Yes
- ACCESSIBILITYHow a property has been adapted to meet the needs of vulnerable or disabled individuals.Read more about accessibility in our glossary page.
- Ask agent
Energy performance certificate - ask agent
26 Baberton Crescent, JUNIPER GREEN, EH14 5BP
Add an important place to see how long it'd take to get there from our property listings.
__mins driving to your place
Get an instant, personalised result:
- Show sellers you’re serious
- Secure viewings faster with agents
- No impact on your credit score
Affordability
Notes
Staying secure when looking for property
Ensure you're up to date with our latest advice on how to avoid fraud or scams when looking for property online.
Visit our security centre to find out moreDisclaimer - Property reference 269383. The information displayed about this property comprises a property advertisement. Rightmove.co.uk makes no warranty as to the accuracy or completeness of the advertisement or any linked or associated information, and Rightmove has no control over the content. This property advertisement does not constitute property particulars. The information is provided and maintained by Campbell Smith LLP, Edinburgh. Please contact the selling agent or developer directly to obtain any information which may be available under the terms of The Energy Performance of Buildings (Certificates and Inspections) (England and Wales) Regulations 2007 or the Home Report if in relation to a residential property in Scotland.
*This is the average speed from the provider with the fastest broadband package available at this postcode. The average speed displayed is based on the download speeds of at least 50% of customers at peak time (8pm to 10pm). Fibre/cable services at the postcode are subject to availability and may differ between properties within a postcode. Speeds can be affected by a range of technical and environmental factors. The speed at the property may be lower than that listed above. You can check the estimated speed and confirm availability to a property prior to purchasing on the broadband provider's website. Providers may increase charges. The information is provided and maintained by Decision Technologies Limited. **This is indicative only and based on a 2-person household with multiple devices and simultaneous usage. Broadband performance is affected by multiple factors including number of occupants and devices, simultaneous usage, router range etc. For more information speak to your broadband provider.
Map data ©OpenStreetMap contributors.





