Mirlaw Road, Cramlington, NE23 6TZ

- PROPERTY TYPE
Link Detached House
- BEDROOMS
4
- BATHROOMS
3
- SIZE
1,776 sq ft
165 sq m
- TENUREDescribes how you own a property. There are different types of tenure - freehold, leasehold, and commonhold.Read more about tenure in our glossary page.
Freehold
Key features
- Central heating
- Double glazed
- Garden
- Parking
- Conservatory
Description
We are delighted to present this generously spacious and immaculately presented family home to the market, occupying a prominent end plot with ample parking, front and rear gardens and private access to back. The house is pleasantly decorated with neutral greige/champagne tones which are seamless throughout. The whole property is beautifully flooded with natural light offering a fresh and natural warmth!
This 4/5 bedroom link detached house is ideally situated in the heart of Cramlington town, within 5 minutes walking distance to all essential amenities including Manor Walks Shopping Centre, restaurants, cinema and entertainment facilities, sports centre and gyms, doctor surgeries and the trainline connecting Newcastle to Morpeth. The location also boasts direct access to Cramlington’s recently updated cycle network, which leads to further park and recreational areas, play fields, dog walking areas and public open spaces.
Very importantly, both Cramlington JLV secondary school as well as one of the towns top rated primary schools are within a 3–5-minute walk but uniquely positioned to be sheltered from any complications that would usually arise from living near a school! It would be a stretch to find a better situated property location for a growing family.
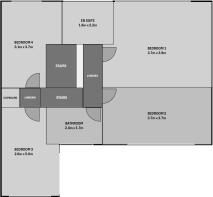
The house itself is exceptionally well proportioned having been substantially extended, offering 4 large double bedrooms, one with large ensuite, and a fair-sized family bathroom as well as a storage cupboard and access to 2 loft spaces all on the first floor.
Ground floor entry is light and spacious with a generous sized hallway and an extensive lounge/diner area leading onto a further versatile snug/sunroom. The ground floor also boasts another WC taking the total to 3! Furthermore, the garage has been professionally converted to provide a further generously sized room which has potential to be used for a variety of purposes from a 5th bedroom to a games room, cinema room, office space etc. The current owners have a versatile layout providing handy storage as well as a professional workspace. Finally, moving into the kitchen area: there is so much potential for this vast amount of space, currently it is laid out to a cosy snug seating area on entry, following into a large, country style fitted kitchen with ample storage, fitted hob/oven, inbuilt fridge etc. There is also the welcome addition of a great sized utility room which houses the newly installed combi boiler, fitted floor to ceiling storage and plumed for washing machine and drier!
This house is in beautiful condition, it has been very well looked after and modernised, we have been informed the owners have had the complete heating system replaced including all pipework within the last 2 years, a newly fitted family bathroom, plasterwork throughout as well as new architraves, skirting boards and it is literally ready to move into and enjoy with the opportunity to put your own stamp where/when wanted.
Externally, the property is ideally located at the end of a quiet cul-de-sac and offers ample street parking, as well as driveway space for 2 cars, there is also scope to extend the driveway, if necessary, due to the plot size. The property offers private gated side and rear access to the garden, laid to lawn, and houses a substantial new decorative shed and fence which again has been professionally installed within the last 2 years and provides additional storage options. The property is boundaried by a wall which offers a lovely character feature and the property also has the added benefit of not being overlooked.
Overall, we anticipate this freehold property will be extremely popular with growing families due to the combination of size, condition and location as it is a rare gem to the market. We expect a high level of interest so don’t hang around on this one!
Internal Hallway
2.2m x 4.9m
Entering the property feels spacious, light and fresh – the hallway offers access to the downstairs WC, Office/bedroom 5, lounge areas, kitchen and stairs to the first floor. There is a newly fitted radiator with wall hung pipework.
Downstairs WC
0.9m x 1.4m
Toilet and sink with upvc and radiator, tiled floor.
Office/Bedroom
5 2.1m x 4.8m
This is a large fresh and airy carpeted room, fitted with ceiling height storage units and an extensive desk/working area for 2.
Lounge/Diner
4.0m x 7.6m
Again, flooded with light from the huge three-sided upvc bay window offering a full open view to the front elevation. Fitted carpeted throughout with 4 wall hung decorative radiators and finished to a high level with real wood panelling, this room is a large and welcoming space for families to enjoy day and night.
Sunroom/Snug
3.0m x 3.2m
Beautifully calming and airy, the snug room is an escape from everything, accessed via French doors from the lounge, this room offers a warm and neutral space and opens up into the rear garden.
Kitchen/Snug
5.3m x 5.8m
Entering the snug from the hallway, it is an ideal pitstop to put shoes/coat on/off, unwind whist waiting for the oven to beep or just sit with the morning coffee brewing! This space is versatile and has potential to be incorporated into the main kitchen or utilised in other ways! The area is wood panelled and pleasantly decorated.
The main kitchen is enormous, with tall, fitted units, floor and wall hung units, glass fronted units, refrigerator, hob and over units and so much general storage! The room is tastefully decorated with a tiled floor and contrasting worktops, ample workspace and a Belfast sink area. There is an abundance of natural light from the large upvc fitted windows and also offers a wall hung towel rail.
Utility
2.1m x 1.7m
Fitted with floor to ceiling storage, washing machine, drier, a fridge freezer and combi boiler – this space is amazing for storage, hoovers, mops and everything else you can think of!
Upstairs Hallway
Beautifully lit up with natural light from the sun tube rooflight, the hallway splits from a mid-landing into left and right. Right offers access to the storage cupboard, loft 2, bedrooms 3 & 4. Going left leads to the family bathroom, bedroom 1, ensuite, bedroom 2 and loft 1 access. Carpeted throughout.
Family Bathroom
2.3m x 1.7m
Newly installed with fitted units offering ample storage, toilet, wall hung decorative radiator, sink, bath with shower fitting and matching fluted glass upvc window/bath screen. This is a lovely, fresh room, tiled to most walls and floor.
Bedroom 1
3.7m x 3.9m
The main bedroom is generously proportioned, it currently houses a king size bed, large sliding wardrobes, 3 sets of drawers, a cot and yet still feels spacious! The room is tastefully decorated matching the rest of the property, is fully carpeted, floods natural light and has open access to the attached ensuite.
Ensuite
1.8m x 2.2m
The ensuite is a large, bright, tiled space with decorative radiator/towel rail, a toilet, corner access shower and fitted sink with internal storage. Again, upvc and an overall pleasant room.
Bedroom 2
3.7m x 2.7m
Currently decorated for a small child, this room offers a lovely bright, airy space with plenty of room, it is easily big enough for a king size bed and fitted wardrobes! There is currently plenty of furniture in this room and space for more! Large upvc window looking onto back garden and above kitchen extension. Fully carpeted.
Bedroom 3
2.6m x 5.0m
Bedroom 3 is the favourite bedroom of the house, offering dual aspect upvc windows the room floods natural light! There is an abundance of space and currently houses a king size bed, large sliding wardrobes plus a computer desk/workspace, this room is also carpeted to match the rest of the house!
Bedroom 4
3.1m x 3.7m
This room is also carpeted and with upvc. Yet another generous room which has a double bed and plenty of wardrobe space as well as a desk area and arcade machine for idea of size, even though this is technically the smallest room!
- COUNCIL TAXA payment made to your local authority in order to pay for local services like schools, libraries, and refuse collection. The amount you pay depends on the value of the property.Read more about council Tax in our glossary page.
- Ask agent
- PARKINGDetails of how and where vehicles can be parked, and any associated costs.Read more about parking in our glossary page.
- Yes
- GARDENA property has access to an outdoor space, which could be private or shared.
- Yes
- ACCESSIBILITYHow a property has been adapted to meet the needs of vulnerable or disabled individuals.Read more about accessibility in our glossary page.
- Ask agent
Energy performance certificate - ask agent
Mirlaw Road, Cramlington, NE23 6TZ
Add an important place to see how long it'd take to get there from our property listings.
__mins driving to your place
Get an instant, personalised result:
- Show sellers you’re serious
- Secure viewings faster with agents
- No impact on your credit score
Affordability
Notes
Staying secure when looking for property
Ensure you're up to date with our latest advice on how to avoid fraud or scams when looking for property online.
Visit our security centre to find out moreDisclaimer - Property reference 53347. The information displayed about this property comprises a property advertisement. Rightmove.co.uk makes no warranty as to the accuracy or completeness of the advertisement or any linked or associated information, and Rightmove has no control over the content. This property advertisement does not constitute property particulars. The information is provided and maintained by Visum, Nationwide. Please contact the selling agent or developer directly to obtain any information which may be available under the terms of The Energy Performance of Buildings (Certificates and Inspections) (England and Wales) Regulations 2007 or the Home Report if in relation to a residential property in Scotland.
*This is the average speed from the provider with the fastest broadband package available at this postcode. The average speed displayed is based on the download speeds of at least 50% of customers at peak time (8pm to 10pm). Fibre/cable services at the postcode are subject to availability and may differ between properties within a postcode. Speeds can be affected by a range of technical and environmental factors. The speed at the property may be lower than that listed above. You can check the estimated speed and confirm availability to a property prior to purchasing on the broadband provider's website. Providers may increase charges. The information is provided and maintained by Decision Technologies Limited. **This is indicative only and based on a 2-person household with multiple devices and simultaneous usage. Broadband performance is affected by multiple factors including number of occupants and devices, simultaneous usage, router range etc. For more information speak to your broadband provider.
Map data ©OpenStreetMap contributors.






