
NN14, Halford Street, Thrapston

- PROPERTY TYPE
End of Terrace
- BEDROOMS
2
- BATHROOMS
2
- SIZE
Ask agent
- TENUREDescribes how you own a property. There are different types of tenure - freehold, leasehold, and commonhold.Read more about tenure in our glossary page.
Freehold
Description
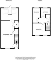
The property boasts a spacious and light-filled living/dining room, perfect for both relaxing and entertaining, alongside a convenient cloakroom/WC. The kitchen/breakfast room is a standout feature, designed with both style and practicality in mind, complete with elegant Velux windows that flood the space with natural light and doors opening directly onto the garden—creating a seamless indoor-outdoor flow.
Upstairs, the first floor offers two generously sized double bedrooms and a well-appointed family bathroom. Further enhancing the home is a partially converted loft space, providing a highly versatile area ideal for use as a home office, hobby room, or additional storage. This space benefits from Velux windows, an enlarged loft opening, and a fitted ladder for easy access.
Externally, the property features a mature and well-established rear garden, predominantly laid to lawn, offering a peaceful outdoor retreat. There is also access leading to the front of the property, where on-street parking is available on a first-come, first-served basis.
Combining space, style, and flexibility, this delightful home is ideal for a wide range of buyers. Early viewing is strongly recommended to fully appreciate all that this property has to offer.
Living Dining Room - 3.332 x 6.742 (10'11" x 22'1") -
Kitchen Breakfast Room - 3.725 x 3.785 (12'2" x 12'5") -
Cloakroom W/C -
Bedroom 1 - 3.341 x 4.440 (10'11" x 14'6") -
Bedroom 2 - 3.229 x 2.572 (10'7" x 8'5") -
Bathroom -
Brochures
NN14, Halford Street, Thrapston- COUNCIL TAXA payment made to your local authority in order to pay for local services like schools, libraries, and refuse collection. The amount you pay depends on the value of the property.Read more about council Tax in our glossary page.
- Ask agent
- PARKINGDetails of how and where vehicles can be parked, and any associated costs.Read more about parking in our glossary page.
- Ask agent
- GARDENA property has access to an outdoor space, which could be private or shared.
- Yes
- ACCESSIBILITYHow a property has been adapted to meet the needs of vulnerable or disabled individuals.Read more about accessibility in our glossary page.
- Ask agent
Energy performance certificate - ask agent
NN14, Halford Street, Thrapston
Add an important place to see how long it'd take to get there from our property listings.
__mins driving to your place
Get an instant, personalised result:
- Show sellers you’re serious
- Secure viewings faster with agents
- No impact on your credit score
Affordability
Notes
Staying secure when looking for property
Ensure you're up to date with our latest advice on how to avoid fraud or scams when looking for property online.
Visit our security centre to find out moreDisclaimer - Property reference 34600402. The information displayed about this property comprises a property advertisement. Rightmove.co.uk makes no warranty as to the accuracy or completeness of the advertisement or any linked or associated information, and Rightmove has no control over the content. This property advertisement does not constitute property particulars. The information is provided and maintained by Simpson & Partners, Thrapston. Please contact the selling agent or developer directly to obtain any information which may be available under the terms of The Energy Performance of Buildings (Certificates and Inspections) (England and Wales) Regulations 2007 or the Home Report if in relation to a residential property in Scotland.
*This is the average speed from the provider with the fastest broadband package available at this postcode. The average speed displayed is based on the download speeds of at least 50% of customers at peak time (8pm to 10pm). Fibre/cable services at the postcode are subject to availability and may differ between properties within a postcode. Speeds can be affected by a range of technical and environmental factors. The speed at the property may be lower than that listed above. You can check the estimated speed and confirm availability to a property prior to purchasing on the broadband provider's website. Providers may increase charges. The information is provided and maintained by Decision Technologies Limited. **This is indicative only and based on a 2-person household with multiple devices and simultaneous usage. Broadband performance is affected by multiple factors including number of occupants and devices, simultaneous usage, router range etc. For more information speak to your broadband provider.
Map data ©OpenStreetMap contributors.






