
Beaumont, Clacton-on-Sea

- PROPERTY TYPE
Barn Conversion
- BEDROOMS
3
- BATHROOMS
2
- SIZE
2,147 sq ft
199 sq m
- TENUREDescribes how you own a property. There are different types of tenure - freehold, leasehold, and commonhold.Read more about tenure in our glossary page.
Freehold
Key features
- BARN CONVERSION
- 2147 SQ FT
- THREE BEDROOMS
- FAMILY BATHROOMS
- TWO ALLOCATED COURTYARD PARKING SPACES
- ONE CART LODGE SPACE
- UNDERFLOOR HEATING
- ENSUITE TO MASTER BEDROOM
- CONVERTED TO A HIGH SPECIFICATION
- UNIQUE PROPERTY
Description
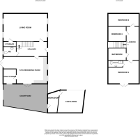
STEP INSIDE Upon entering the property, you are welcomed by a spacious hallway that leads to a generous kitchen/dining room. This standout feature boasts beautiful exposed wooden beams and a spacious, light-filled layout. Double doors open onto the garden, allowing natural light to flood the room, creating an inviting atmosphere perfect for both cooking and entertaining. Adjacent to the kitchen, a utility room provides extra storage and facilities, while a downstairs cloakroom adds further convenience.
The ground floor of this property seamlessly blends modern elegance with rustic charm. The living area, with its cosy yet contemporary ambiance, is enhanced by rich, neutral carpeting and large windows that invite an abundance of natural light. Underfloor heating manifolds ensure comfort and efficiency throughout.
Upstairs, the thoughtfully designed layout includes three cosy bedrooms, each featuring exposed beams and vaulted ceilings. The master bedroom offers an en-suite that combines ample space with soothing décor, while the luxurious bathroom boasts a freestanding bathtub and sleek fixtures, marrying functionality with a touch of indulgence.
Outside, step into a secluded courtyard, an ideal space for relaxation and gatherings. With its charming brick exterior and idyllic surroundings, this property exudes a warm and welcoming ambiance that is sure to captivate you.
STEP OUTSIDE The property features a charming walled courtyard with rustic red brickwork, creating a cosy, private space. The smooth stone paving adds sophistication, perfect for gatherings or relaxation. Large sliding glass doors connect the indoors and outdoors, enhancing the flow of natural light and emphasizing space and tranquillity. Ample parking is to the front of the property within the charming courtyard. The property benefits from a cart lodge and workshop providing extra storage and working space.
LOCATION The property is located on Church Lane in the quaint village of Beaumont, CO16 0AZ. Nestled in the scenic countryside, it offers a peaceful and picturesque setting, ideal for those seeking tranquility. The village itself is rich in charm and history, providing a friendly community atmosphere. Despite its rural setting, Beaumont offers convenient access to nearby towns and amenities, striking a perfect balance between serene village life and accessibility to modern conveniences. For train services to London Liverpool Street, stations are available at Thorpe Le Soken, Wrabness, Mistley, and Manningtree, with direct trains taking approximately 55 minutes.
Brochures
Brochure- COUNCIL TAXA payment made to your local authority in order to pay for local services like schools, libraries, and refuse collection. The amount you pay depends on the value of the property.Read more about council Tax in our glossary page.
- Ask agent
- PARKINGDetails of how and where vehicles can be parked, and any associated costs.Read more about parking in our glossary page.
- Covered
- GARDENA property has access to an outdoor space, which could be private or shared.
- Yes
- ACCESSIBILITYHow a property has been adapted to meet the needs of vulnerable or disabled individuals.Read more about accessibility in our glossary page.
- Ask agent
Energy performance certificate - ask agent
Beaumont, Clacton-on-Sea
Add an important place to see how long it'd take to get there from our property listings.
__mins driving to your place
Get an instant, personalised result:
- Show sellers you’re serious
- Secure viewings faster with agents
- No impact on your credit score
Affordability
Notes
Staying secure when looking for property
Ensure you're up to date with our latest advice on how to avoid fraud or scams when looking for property online.
Visit our security centre to find out moreDisclaimer - Property reference 103646014685. The information displayed about this property comprises a property advertisement. Rightmove.co.uk makes no warranty as to the accuracy or completeness of the advertisement or any linked or associated information, and Rightmove has no control over the content. This property advertisement does not constitute property particulars. The information is provided and maintained by Fine & Country, Colchester. Please contact the selling agent or developer directly to obtain any information which may be available under the terms of The Energy Performance of Buildings (Certificates and Inspections) (England and Wales) Regulations 2007 or the Home Report if in relation to a residential property in Scotland.
*This is the average speed from the provider with the fastest broadband package available at this postcode. The average speed displayed is based on the download speeds of at least 50% of customers at peak time (8pm to 10pm). Fibre/cable services at the postcode are subject to availability and may differ between properties within a postcode. Speeds can be affected by a range of technical and environmental factors. The speed at the property may be lower than that listed above. You can check the estimated speed and confirm availability to a property prior to purchasing on the broadband provider's website. Providers may increase charges. The information is provided and maintained by Decision Technologies Limited. **This is indicative only and based on a 2-person household with multiple devices and simultaneous usage. Broadband performance is affected by multiple factors including number of occupants and devices, simultaneous usage, router range etc. For more information speak to your broadband provider.
Map data ©OpenStreetMap contributors.






