Kokkino Chorio Apokoronas, Chania, Crete, Greece
- PROPERTY TYPE
Villa
- BEDROOMS
3
- BATHROOMS
2
- SIZE
1,076 sq ft
100 sq m
Key features
- Solar panel 160L
- Heat pump for heating + cooling
- Built in wardrobes
- Fully equipped kitchen excluding electrical appliances
- Aluminium double-glazed windows & Flyscreens and tilt and turn windows
- Walled with stone-built walls
- Aluminium pergolas covered with tarpaulin
- Immersion heater
- Parking from industrial concrete
- Private pool 32m2
Description
The detached residences come with spacious plots, parking spots, solar panels, private swimming pools and great sea views.
They all feature comfortable indoor and outdoor areas.
Project description:
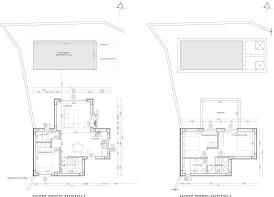
Villa 2 is a 100m2 property built on a 411,17m2 plot and on 2 floors.
On the ground floor, one can find a bedroom, a living room, the kitchen area and a shower room.
The top floor consists of 2 bedrooms and a common shower room.
This property comes with a 30,80m2 private pool and a stone wall surrounding the private plot.
Minor internal changes and adaptations can be made to the floor plans if one wants.
The buyer will have the option of choosing his own colors for the internal woodwork, kitchen, tiles etc, to personalize his property to his own taste.
Excavation work is done, and the concrete floor has been poured.
The next phase is the building of the concrete frame (columns) for the ground and top floors.
The properties correspond to all regulations required under Greek and European Union law regarding insulation, earthquake, thermal and water, fire safety and electrical installations.
Special attention will be given in Thermal & Water insulation of the roof and the terraces, according to the KENAK study of the Civil Engineer.
Each property has a private parking space made of industrial concrete.
The land has a gentle slope which protects the wonderful views towards Souda Bay and the Akrotiri Peninsula.
Access is via a dirt-road, water and electricity are available on site.
Delivery one year from the date of the sales agreement.
THE AREA
There is a taverna and a well-stocked local shop in the village of Kokkino Chorio which is just a 2-minute drive from the villas. For more choice, the lively village of Plaka where you will find tavernas, a couple of bars and a good mini market is only 25 minutes' walk or 3 minutes' drive.
The famous beach resort of Almirida is a little further (35 mins walk or 5 mins drive) offering white sandy beaches, shops, taverns and plenty of restaurants serving local delicacies.
IDEAL TO BUILD A VILLAGE HOME IN A VERY QUIET LOCATION!!!
DISTANCES
* From mini market: 800m / 3 min drive
* From tavern: 800m / 3 min drive
* From beach: 3km / 7 min drive
* From nearest town: 3km / 7 min drive
* From Chania: 28km / 37 min drive
* From the airport: 34,6km / 45 min drive
Brochures
Brochure 1Kokkino Chorio Apokoronas, Chania, Crete, Greece
NEAREST AIRPORTS
Distances are straight line measurements- Chania(International)8.2 miles
- Heraklion(International)53.6 miles
Advice on buying Greek property
Learn everything you need to know to successfully find and buy a property in Greece.
Notes
This is a property advertisement provided and maintained by Your Home On Crete, Chania (reference CDB-013) and does not constitute property particulars. Whilst we require advertisers to act with best practice and provide accurate information, we can only publish advertisements in good faith and have not verified any claims or statements or inspected any of the properties, locations or opportunities promoted. Rightmove does not own or control and is not responsible for the properties, opportunities, website content, products or services provided or promoted by third parties and makes no warranties or representations as to the accuracy, completeness, legality, performance or suitability of any of the foregoing. We therefore accept no liability arising from any reliance made by any reader or person to whom this information is made available to. You must perform your own research and seek independent professional advice before making any decision to purchase or invest in overseas property.




