Halton Road, Newton Hall, Durham, DH1

- PROPERTY TYPE
Semi-Detached
- BEDROOMS
3
- BATHROOMS
1
- SIZE
Ask agent
- TENUREDescribes how you own a property. There are different types of tenure - freehold, leasehold, and commonhold.Read more about tenure in our glossary page.
Freehold
Key features
- Three Bedroom
- Semi Detached House
- South Facing Rear Garden
- Well Presented Throughout
- EPC Rating TBC
- Driveway and Garage
- Front and Rear Gardens
- Modern Fitted Kitchen/Diner
- Viewings Highly Recommended
Description
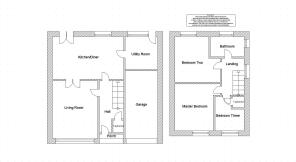
This three bedroom semi detached house is located in the Halton Road cul-de-sac in Newton Hall, Durham. The property would make an ideal family home and is well presented throughout. The property comprises: a porch, an entrance hall, spacious living room, modern fitted kitchen/diner and a utility room. To the first floor there are three bedrooms and a bathroom. Externally there is a lawn garden to the front with a drive leading to a single garage. To the rear is a South facing garden mostly laid to lawn.
Halton Road is situated on the Newton Hall Estate, which benefits from excellent schools and is located close to the Arnison Retail Park where there are excellent everyday facilities and amenities available and approximately 2 miles from Durham City Centre. It also lies within easy reach of the A(167) Highway which provides good road links to both North and South. Viewings are highly recommended.
Front External
To the front of the property is a garden mostly laid to lawn with a paved driveway leading to an attached single garage.
Porch
Entrance Hall
Including solid wood flooring, a radiator, a built in storage cupboard and an under stairs storage cupboard.
Living Room
4.427m x 3.519m
Spacious living room with solid wood flooring, a radiator and a double glazed bay window to the front.
Kitchen/Diner
5.415m x 3.237m
Modern kitchen including fitted wall and base units with a contrasting work surface, sink/drainer with a mixer tap, an integrated electric oven with four ring hob and stainless steel feature extractor fan above, vinyl flooring, a radiator, tiled splash back, breakfast bar, a double glazed window to the rear and French doors to the rear. The dining area has laminate flooring.
Utility Room
2.695m x 2.657m
Including plumbing for a washing machine, plumbing for a dishwasher, fitted wall units with a wood work top, Belfast sink with mixer tap, tiled flooring, a radiator, double glazed window to the rear and a door leading to the rear garden.
Stairs
With carpet flooring.
Landing
Including access via a drop down ladder to a partially boarded loft, carpet flooring and a double glazed window to the side.
Master Bedroom
3.594m x 3.013m
Master bedroom including laminate flooring, a radiator and a double glazed window to the front.
Bedroom Two
3.556m x 3.528m
Bedroom with laminate flooring, a radiator and a double glazed window to the rear.
Bedroom Three
2.706m x 2.329m
Bedroom including a built in cupboard, laminate flooring, a radiator and a double glazed window to the front.
Bathroom
2.658m x 1.692m
Bathroom including a bath with a mains shower above, low level WC, pedestal wash hand basin, tiled flooring, tiled walls. a chrome towel heater and double glazed windows to the side and rear.
Garage
5.083m x 2.729m
With power and light.
Rear Garden
South facing rear garden mostly laid to lawn with a paved patio, outside tap and side access to the front.
Agent Notes
1. The property is in council tax band B. 2. The seller has informed us that the property is freehold. 3. Utilities - Mains water, sewerage, electricity and gas. 4. Superfast broadband available to this property (checker.ofcom.org.uk) 5. Flood Risk - Rivers and Sea - very low, Surface Water - very low (gov.uk)
Disclaimer
The preceding details have been sourced from the seller and the websites listed above. Verification and clarification of this information, along with any further details concerning Material Information parts A, B & C, should be sought from a legal representative or appropriate authorities. Newfield Estates cannot accept liability for any information provided.
- COUNCIL TAXA payment made to your local authority in order to pay for local services like schools, libraries, and refuse collection. The amount you pay depends on the value of the property.Read more about council Tax in our glossary page.
- Ask agent
- PARKINGDetails of how and where vehicles can be parked, and any associated costs.Read more about parking in our glossary page.
- Yes
- GARDENA property has access to an outdoor space, which could be private or shared.
- Yes
- ACCESSIBILITYHow a property has been adapted to meet the needs of vulnerable or disabled individuals.Read more about accessibility in our glossary page.
- Ask agent
Energy performance certificate - ask agent
Halton Road, Newton Hall, Durham, DH1
Add an important place to see how long it'd take to get there from our property listings.
__mins driving to your place
Get an instant, personalised result:
- Show sellers you’re serious
- Secure viewings faster with agents
- No impact on your credit score
Affordability
Notes
Staying secure when looking for property
Ensure you're up to date with our latest advice on how to avoid fraud or scams when looking for property online.
Visit our security centre to find out moreDisclaimer - Property reference NES260045. The information displayed about this property comprises a property advertisement. Rightmove.co.uk makes no warranty as to the accuracy or completeness of the advertisement or any linked or associated information, and Rightmove has no control over the content. This property advertisement does not constitute property particulars. The information is provided and maintained by Newfield Estates, Durham. Please contact the selling agent or developer directly to obtain any information which may be available under the terms of The Energy Performance of Buildings (Certificates and Inspections) (England and Wales) Regulations 2007 or the Home Report if in relation to a residential property in Scotland.
*This is the average speed from the provider with the fastest broadband package available at this postcode. The average speed displayed is based on the download speeds of at least 50% of customers at peak time (8pm to 10pm). Fibre/cable services at the postcode are subject to availability and may differ between properties within a postcode. Speeds can be affected by a range of technical and environmental factors. The speed at the property may be lower than that listed above. You can check the estimated speed and confirm availability to a property prior to purchasing on the broadband provider's website. Providers may increase charges. The information is provided and maintained by Decision Technologies Limited. **This is indicative only and based on a 2-person household with multiple devices and simultaneous usage. Broadband performance is affected by multiple factors including number of occupants and devices, simultaneous usage, router range etc. For more information speak to your broadband provider.
Map data ©OpenStreetMap contributors.




