Chieftain Way, Cambridge

- PROPERTY TYPE
Flat
- BEDROOMS
2
- BATHROOMS
1
- SIZE
Ask agent
Key features
- Two Bedroom
- Located in the popular Orchard Park area
- Open Plan Living Room / Kitchen
- Double Glazed Windows
- Gas Central Heating
- Allocated Parking
- No Upward Chain
- Council Tax Band C
- EPC Rating B
Description
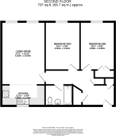
ENTRANCE HALL Double glazed window to rear aspect, three storage cupboards, double panel radiator.
LIVING ROOM 17' 1" x 11' 11" (5.22m x 3.64m) Two double glazed windows to front aspect, double panel radiator, open to:
KITCHEN 11' 11" x 5' 8" (3.64m x 1.74m) Double glazed window to rear aspect, range of base and wall mounted units with work surfaces over, stainless steel sink and drainer unit with mixer tap over, integrated electric oven and hob, extractor fan, integrated dishwasher, washing machine and fridge freezer, ceramic tiled floor.
BEDROOM ONE 13' 1" x 9' 2" (4.0m x 2.8m) Double glazed window to front aspect, double panel radiator, double fitted wardrobe.
BEDROOM TWO 13' 1" x 9' 6" (4.0m x 2.9m) Double glazed window to front aspect, double panel radiator.
BATHROOM Obscured double glazed window to rear aspect, heated towel rail, side panel bath with shower over, glazed shower screen, pedestal mounted wash hand basin, low level wc, ceramic tiled floor, inset spotlights.
OUTSIDE One allocated parking space.
LEASE DETAILS AND CHARGES Lease Length - 111 years remaining
Service Charge - £2245.60 p/a
Ground Rent - £200 p/a
Council Tax Band - C
EPC Rating Band - B
- COUNCIL TAXA payment made to your local authority in order to pay for local services like schools, libraries, and refuse collection. The amount you pay depends on the value of the property.Read more about council Tax in our glossary page.
- Band: C
- PARKINGDetails of how and where vehicles can be parked, and any associated costs.Read more about parking in our glossary page.
- Allocated
- GARDENA property has access to an outdoor space, which could be private or shared.
- Yes
- ACCESSIBILITYHow a property has been adapted to meet the needs of vulnerable or disabled individuals.Read more about accessibility in our glossary page.
- Ask agent
Chieftain Way, Cambridge
Add an important place to see how long it'd take to get there from our property listings.
__mins driving to your place
Get an instant, personalised result:
- Show sellers you’re serious
- Secure viewings faster with agents
- No impact on your credit score
Affordability
Notes
Staying secure when looking for property
Ensure you're up to date with our latest advice on how to avoid fraud or scams when looking for property online.
Visit our security centre to find out moreDisclaimer - Property reference 101219006568. The information displayed about this property comprises a property advertisement. Rightmove.co.uk makes no warranty as to the accuracy or completeness of the advertisement or any linked or associated information, and Rightmove has no control over the content. This property advertisement does not constitute property particulars. The information is provided and maintained by Vincent Shaw, Cambridge. Please contact the selling agent or developer directly to obtain any information which may be available under the terms of The Energy Performance of Buildings (Certificates and Inspections) (England and Wales) Regulations 2007 or the Home Report if in relation to a residential property in Scotland.
*This is the average speed from the provider with the fastest broadband package available at this postcode. The average speed displayed is based on the download speeds of at least 50% of customers at peak time (8pm to 10pm). Fibre/cable services at the postcode are subject to availability and may differ between properties within a postcode. Speeds can be affected by a range of technical and environmental factors. The speed at the property may be lower than that listed above. You can check the estimated speed and confirm availability to a property prior to purchasing on the broadband provider's website. Providers may increase charges. The information is provided and maintained by Decision Technologies Limited. **This is indicative only and based on a 2-person household with multiple devices and simultaneous usage. Broadband performance is affected by multiple factors including number of occupants and devices, simultaneous usage, router range etc. For more information speak to your broadband provider.
Map data ©OpenStreetMap contributors.







