
62A Osborne Road, Wisbech, Cambridgeshire PE13 3JW
- PROPERTY TYPE
Residential Development
- SIZE
Ask agent
Key features
- Development Opportunity
- Planning Number: F/YR21/1448/O
- Planning to erect 4 x Dwellings - involving the demolition of an existing dwelling
- Sale by livestream auction
- Unless previously sold or withdrawn prior
- 10:00am, Thursday 7th May
- Guide Price: £50,000
Description
FOR SALE BY LIVESTREAM AUCITON ON THURSDAY 7 MAY AT 10AM
TO REGISTER FOR LEGAL PACKS AND BIDDING INSTRUCTIONS PLEAE VISIT OUR WEBSITE
A site with Outline Planning Permission – Approx. 0.3 Acres (STS)
A development site extending to approximately 0.3 acres (STS) with outline planning permission granted under Fenland District Council reference F/YR21/1448/O for the erection of up to four dwellings, following the demolition of the existing dwelling.
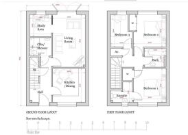
Proposed Accommodation for the 4 Dwellings: Ground Floor: Entrace Hall, Kitchen/Dining room, Living room, Study area & Shower
First Floor: Bedroom 1, Bedroom 2, Bedroom 3, Ensuite & Bathroom
Tenure: Freehold
EPC Rating: N/A
Administration Fee: £1200 inc VAT payable on exchange of contracts.
Buyer's Premium Fee: £1500 inc VAT payable on exchange of contracts.
Disbursements: Please see the legal pack for any disbursements listed that may become payable by the purchaser on completion.
62A Osborne Road, Wisbech, Cambridgeshire PE13 3JW
NEAREST STATIONS
Distances are straight line measurements from the centre of the postcode- March Station8.4 miles


Notes
Disclaimer - Property reference 202604161253sq_smhu. The information displayed about this property comprises a property advertisement. Rightmove.co.uk makes no warranty as to the accuracy or completeness of the advertisement or any linked or associated information, and Rightmove has no control over the content. This property advertisement does not constitute property particulars. The information is provided and maintained by Auction House, East Anglia. Please contact the selling agent or developer directly to obtain any information which may be available under the terms of The Energy Performance of Buildings (Certificates and Inspections) (England and Wales) Regulations 2007 or the Home Report if in relation to a residential property in Scotland.
Auction Fees: The purchase of this property may include associated fees not listed here, as it is to be sold via auction. To find out more about the fees associated with this property please call Auction House, East Anglia on 01603 361653.
*Guide Price: An indication of a seller's minimum expectation at auction and given as a Guide Price or a range of Guide Prices. This is not necessarily the figure a property will sell for and is subject to change prior to the auction.
Reserve Price: Each auction property will be subject to a Reserve Price below which the property cannot be sold at auction. Normally the Reserve Price will be set within the range of Guide Prices or no more than 10% above a single Guide Price.
Map data ©OpenStreetMap contributors.






