
Oakmead Road, Point Clear, St Osyth
- PROPERTY TYPE
Plot
- SIZE
Ask agent
Key features
- Development Site
- Full Planning Permission
- S106 Contributions Paid
- Approx. 2.9 Acres
- 4x Detached Houses
- GDV - £2.4m
- Point Clear
- Distant Creek Views
- Additional Land Available By Separate Negotiation
Description
The Site - A site of approximately 2.9 acres mainly laid to grass and enclosed by hedgerow to front. Title number: EX141816
Planning - Planning was originally obtained under reference 19/00610/FUL. An application to vary the design was later approved under 22/01483/VOC. We have received confirmation from Tendring District Council that the development commenced in 2023 and the permission is extant.
A copy of plans and associated documents can be made available upon request.
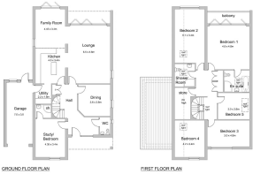
The Scheme - A development of 4x five bedroom detached houses with garages (approx. 2,400 Sq Ft), served by a new private road. We anticipate finished units to achieve in the region of £550,000 each giving a projected GDV of £2.4m.
S106 - The required contributions under the Unilateral Undertaking of £11,714.66 have been paid.
Services - There are currently no services connected to the site but we understand electricity, water and mains drainage are available in Oakmead Road.
Additional Land - Additional land can be purchased by separate negotiation. Field - approx. 6.7 acres. Field 2 - approx. 10.05 acres.
Brochures
Oakmead Road, Point Clear, St OsythBrochureOakmead Road, Point Clear, St Osyth
NEAREST STATIONS
Distances are straight line measurements from the centre of the postcode- Great Bentley Station4.1 miles
- Alresford (Essex) Station4.5 miles
- Clacton Station4.9 miles
About Lamb & Co, Tendring
Unit 2, Crusader Business Park, Stephenson Road West, Clacton-On-Sea, CO15 4TN

Notes
Disclaimer - Property reference 34611270. The information displayed about this property comprises a property advertisement. Rightmove.co.uk makes no warranty as to the accuracy or completeness of the advertisement or any linked or associated information, and Rightmove has no control over the content. This property advertisement does not constitute property particulars. The information is provided and maintained by Lamb & Co, Tendring. Please contact the selling agent or developer directly to obtain any information which may be available under the terms of The Energy Performance of Buildings (Certificates and Inspections) (England and Wales) Regulations 2007 or the Home Report if in relation to a residential property in Scotland.
Map data ©OpenStreetMap contributors.





